Eladó jó állapotú lakás - Szigethalom
- INGYENES HIRDETÉS FELADÁS
Ingatlan adatai
- Eladó vagy kiadó:Eladó
- Település:Szigethalom
- Kategória:Lakás
- Alkategória:Tégla
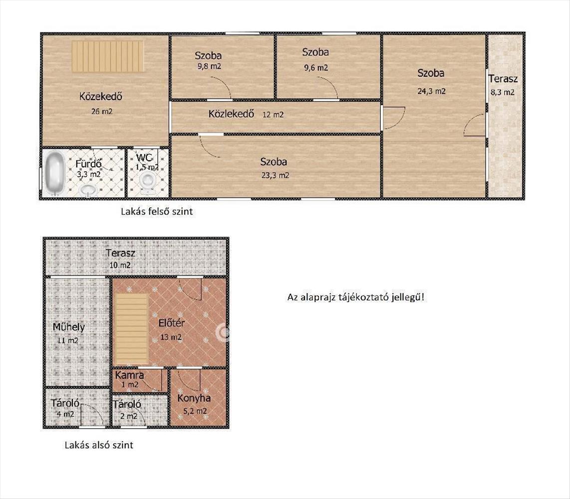
- Alapterület:120 m2
- Csere is:Nem
- Hirdető:Cég
- Élő videón megtekinthető:Nem
- Szobaszám:4
- Állapot:Jó állapotú
- Hány szintes az ingatlan:Földszintes
- Komfortosság:nincs megadva
- Hányadik emeleti:1
- Erkély:Van
- Lift:Nincs
- Parkolási lehetőség:Udvaron
- Fűtés:Gáz (cirko)
- Bútorozottság:nincs megadva
- Fényviszony:Jó
- Tájolás:nincs megadva
- Kilátás:nincs megadva
- Internet:nincs megadva
- Klíma:nincs megadva
- Akadálymentesített:nincs megadva
- Energiatanúsítvány:nincs megadva
- Villany:Van
- Víz:Van
- Gáz:nincs megadva
- Csatorna:Van
- Közös költség:10 Ft
- Kapcsolatfelvétel

Major Katalin Tünde
+36-(30)-324-8000
Mondd meg a hirdetőnek, hogy a megveszLAK-on találtad a hirdetést.
Referencia szám: M320645
Hitel ajánlatok
Ingatlan hirdetés leírása
Eladó Lakás, Szigethalom
***Különálló lakás saját kerttel***
Szigethalom egyik jól megközelíthető, központi részén eladó egy tágas, világos, külön bejáratú lakás, egy régen családi házként épült ingatlan emeleti részén. a teljes ingatlan eredetileg egy nagy ház volt, ma társasházi szerződéssel megosztva, jogilag rendezett formában két külön lakásként működik, az egyik a földszinten, a másik (az eladásra kínált) az emeleten, melyet külön külső lépcsőn keresztül lehet megközelíteni. a bruttó 165 m2-es alapterületből 120 m2 lett igényesen felújítva három évvel ezelőtt, ami a lakótér. a fennm aradó rész a földszinten található, jelenleg mosókonyhaként és műhelyként használható, viszont ez a terület még nem esett át felújításon, ugyanakkor remek lehetőséget kínál a későbbiekben például hobbitér, tároló vagy akár iroda kialakítására. a lakásban négy különnyíló, tágas szoba található, napfényes terek, jó elosztás, kellemes hangulat jellemzi. a felújítás során modern burkolatok, új nyílászárók és korszerű elektromos hálózat is kiépítésre került, így valóban költözhető állapotban van. Az ingatlanhoz 280 m2-es, kizárólagos használatú saját kert tartozik, amely ritkaság ilyen elhelyezkedés mellett. Itt jut hely pihenésnek, kertészkedésnek, vagy akár családi, baráti összejöveteleknek is. Bár az utca forgalmasabb, a HÉV-megálló néhány perc sétával elérhető, így a főváros gyorsan megközelíthető akár autó nélkül is. a közelben minden fontos szolgáltatás megtalálható iskola, óvoda, bevásárlási lehetőségek és egészségügyi ellátás. a lakás saját helyrajzi számmal rendelkezik, valamennyi közmű külön mérőórán keresztül történik, tehát valóban önálló otthonról beszélhetünk. Ez a lakás tökéletes választás lehet azoknak, akik szeretnének városi közelségben élni, de nem akarnak lemondani a kert nyújtotta szabadságról és egy valóban különálló, saját tulajdonú lakás kényelméről.
Amennyiben felkeltettem érdeklődését, hívjon bizalommal a hét bármely napján!
Az OTP Bankcsoport teljeskörű ügyintézéssel áll az eladók és a vevők rendelkezésére! a kínálatunkból választott ingatlan finanszírozásához kedvezményes hitelkonstrukciókat kínálunk. Az adásvételi szerződés megkötéséhez igény szerint megbízható ügyvédi közreműködést biztosítunk és segítséget nyújtunk az adásvételhez kapcsolódó ügyek intézéséhez.
Referenciaszám: m320645 FIX 3% lakáshitelre megvehető
Tetszett ez az eladó Szigethalomi jó állapotú 4 szobás tégla lakás? Hívd fel a hirdetőt most, és tudj meg mindent erről az eladó tégla lakásról! Ha gondolod nézelődj tovább az eladó lakás Szigethalom oldal hirdetései között. Ennek az eladó lakásnak az ára 79900000 Ft és mivel az alapterülete 120 négyzetméter, ezért az átlagos négyzetméterára 665833 HUF/m2.
Az eladó lakások menüpontban további hirdetések között is böngészhetsz. Ha van kedved, akkor böngészhetsz a Major Katalin Tünde összes hirdetése között, vagy akár a/az OTPip Szigetszentmiklós Tököli út 19.B - OTP Ingatlanpont Iroda összes hirdetése között is.

