Eladó új építésű lakás - Szigethalom
- INGYENES HIRDETÉS FELADÁS
Ingatlan adatai
- Feladva:83 napja a megveszLAK-on
- Eladó vagy kiadó:Eladó
- Település:Szigethalom
- Kategória:Lakás
- Alkategória:Tégla
- Alapterület:110 m2
- Csere is:Nem
- Hirdető:Cég
- Élő videón megtekinthető:Nem
- Szobaszám:nincs megadva
- Állapot:Új építésű
- Hány szintes az ingatlan:Földszintes
- Komfortosság:nincs megadva
- Hányadik emeleti:nincs megadva
- Erkély:nincs megadva
- Lift:nincs megadva
- Parkolási lehetőség:Udvaron
- Fűtés:nincs megadva
- Bútorozottság:nincs megadva
- Fényviszony:nincs megadva
- Tájolás:nincs megadva
- Kilátás:nincs megadva
- Internet:Szélessávú (>10Mbps)
- Klíma:nincs megadva
- Akadálymentesített:nincs megadva
- Energiatanúsítvány:nincs megadva
- Villany:Van
- Víz:Van
- Gáz:nincs megadva
- Csatorna:Van
- Kapcsolatfelvétel

Nagy Attila
+36-(30)-465-9065
Mondd meg a hirdetőnek, hogy a megveszLAK-on találtad a hirdetést.
Hitel ajánlatok
Ingatlan hirdetés leírása
Eladó Új építési családi ház Szigethalmon
Eladásra kínálunk 2026 nyári átadással egy nagy méretű telken Szigethalom központi részén egy új építésű 110 m2-es családi házat. Kedvező lokációval rendelkezik, iskola, óvoda, cukrászda, boltok mind elérhető közelségre.
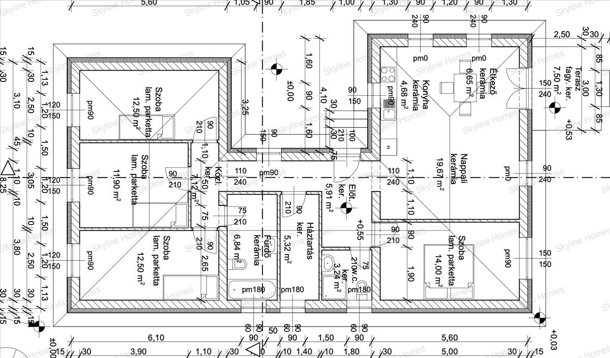
Főbb műszaki tudnivalók az ingatlanról:
Nettó alapterület: 110 m² + terasz
Szobák száma: 4 szoba + nappali
Duplakomfortos kivitel
Falazat: 30 cm Porotherm tégla
Homlokzati szigetelés: 15 cm dryvit
Aljzatszigetelés: 15 cm
Födémszigetelés: 25 cm
Nyílászárók: 3 rétegű fehér színű műanyag ablakok
Helyiséglista:
Előtér kerámia 5, 91 m2
Közlekedő kerámia 7, 12 m2
Szoba laminált parketta 12, 50 m2
Szoba laminált parketta 11, 90 m2
Szoba laminált parketta 12, 50 m2
Fürdő kerámia 6, 84 m2
Háztartás kerámia 5, 32 m2
W. C. Kerámia 3, 24 m2
Szoba laminált parketta 14, 00 m2
Konyha kerámia 4, 68 m2
Nappali kerámia 19, 67 m2
Étkező kerámia 6, 65 m2
Alapterület összesen 110, 33 m2
Hideg meleg burkolatok választhatók műszaki tartalom szerinti áron. 1 Db klíma kiállás és elektromos kapu kiállás a vételár részét képezi. a kocsibeállók, járdák simított betonból készülnek.
Jöjjön el nézzük meg együtt ezt a nagyszerű lehetőséget, a hét minden napján elérhetőek vagyunk! Hitel.hu - Hasonlítsa össze a bankok lakáshitel ajánlatait
Tetszett ez az eladó Szigethalomi új építésű tégla lakás? Hívd fel a hirdetőt most, és tudj meg mindent erről az eladó tégla lakásról! Ha gondolod nézelődj tovább az eladó lakás Szigethalom oldal hirdetései között. Ennek az eladó lakásnak az ára 119900000 Ft és mivel az alapterülete 110 négyzetméter, ezért az átlagos négyzetméterára 1090000 HUF/m2.
Az eladó lakások menüpontban további hirdetések között is böngészhetsz. Ha van kedved, akkor böngészhetsz a Nagy Attila összes hirdetése között, vagy akár a/az Skyline Homes összes hirdetése között is.

