Eladó átlagos állapotú lakás - Szolnok
- INGYENES HIRDETÉS FELADÁS
Ingatlan adatai
- Eladó vagy kiadó:Eladó
- Település:Szolnok
- Kategória:Lakás
- Alkategória:Tégla
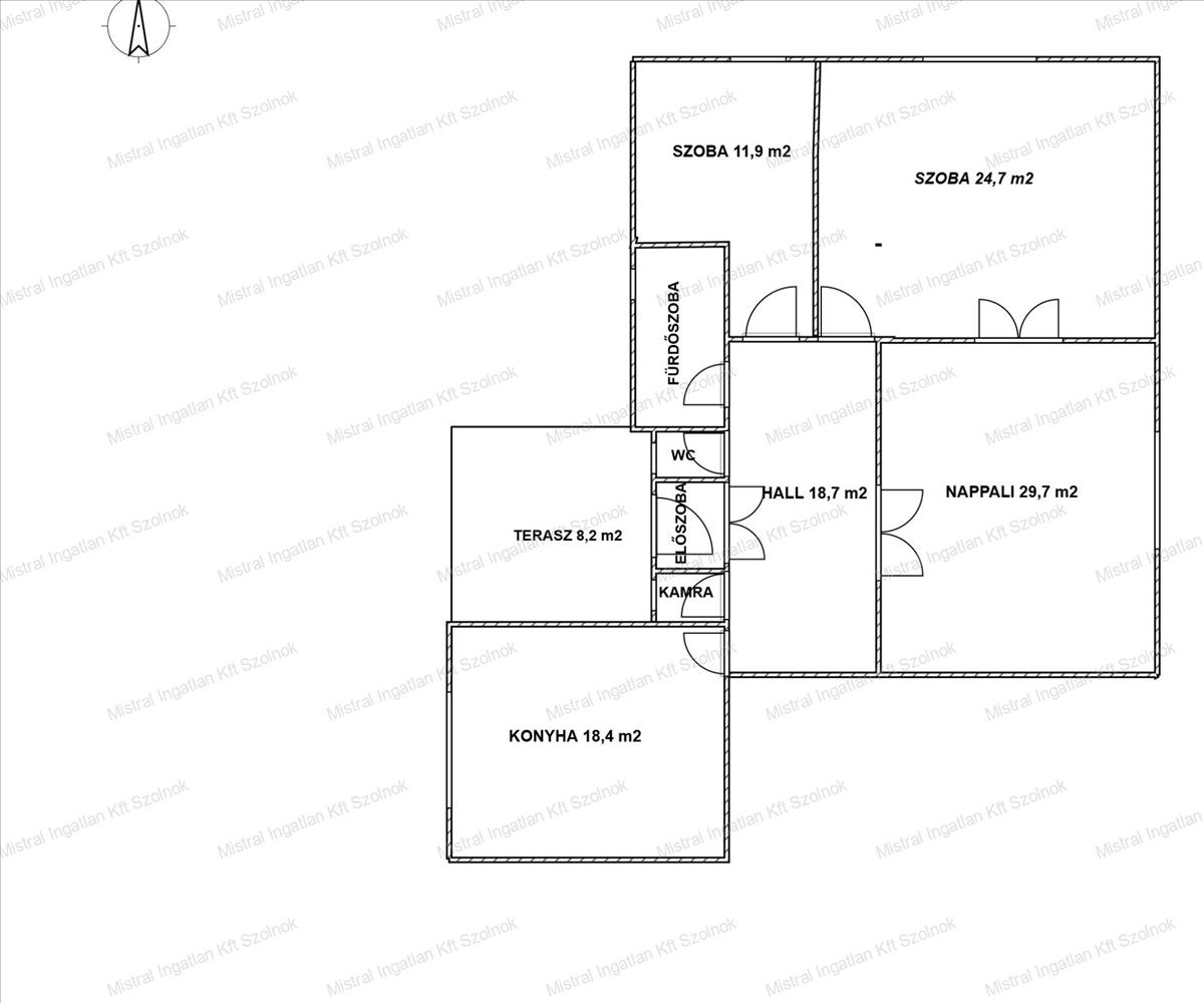
- Alapterület:113 m2
- Csere is:Nem
- Hirdető:Cég
- Élő videón megtekinthető:Nem
- Szobaszám:3
- Állapot:Átlagos állapotú
- Hány szintes az ingatlan:Földszintes
- Komfortosság:nincs megadva
- Hányadik emeleti:Földszint
- Erkély:nincs megadva
- Lift:nincs megadva
- Parkolási lehetőség:Udvaron
- Fűtés:Gáz (konvektor)
- Bútorozottság:nincs megadva
- Fényviszony:nincs megadva
- Tájolás:nincs megadva
- Kilátás:nincs megadva
- Internet:nincs megadva
- Klíma:nincs megadva
- Akadálymentesített:Nem akadálymentesített
- Energiatanúsítvány:nincs megadva
- Villany:Van
- Víz:Van
- Gáz:Van
- Csatorna:Van
- Közös költség:37 010 Ft
- Kapcsolatfelvétel

Kun Mariann
+36-(70)-320-9880
Mondd meg a hirdetőnek, hogy a megveszLAK-on találtad a hirdetést.
Hitel ajánlatok
Ingatlan hirdetés leírása
Parkosított , kertkapcsolatos , 3 szobás , napfényes lakás ela...
Fedezze fel ezt a tágas, 113 négyzetméteres téglalakást Szolnok déli városrészében, a Cukorgyári lakótelep parkosított, zárt udvarában, ahol a városi élet kényelme és a nyugalom találkozik.
Az ingatlan 1912-ben épült, és átlagos állapotának köszönhetően remek lehetőséget biztosít a saját ízlésének megfelelő átalakításra.
A társasház igényes, folyamatos a karbantartás, így az elmúlt években : teljes tetőcsere ; villamos fővezeték és ivóvíz hálózat csere volt.
A lakás három jól elosztott szobával rendelkezik, melyek ideálisak családok számára. A lakás kelet-nyugati tájolásának köszönhetően világos és napfényes, a kertre néző ablakok pedig kellemes kilátást biztosítanak.
A fűtés konvektorral megoldott, amely biztosítja a téli hónapokban is a kellemes hőmérsékletet.
Az udvarban parkolási lehetőség biztosított, ami nagy előny a városi környezetben.
Ne hagyja ki ezt a remek lehetőséget, hogy saját otthona legyen egy nyugodt, de mégis központi elhelyezkedésű környezetben!
Az irányár 29 900 000 Ft, mely egy nagyszerű befektetés lehet a jövőjébe.
Kérjük, lépjen kapcsolatba velem a további részletekért és a megtekintés időpontjának egyeztetéséért!
Kun Mariann : 06 70/320-9880 FIX 3% lakáshitelre megvehető

