Eladó új építésű lakás - Szolnok
- INGYENES HIRDETÉS FELADÁS
Ingatlan adatai
- Eladó vagy kiadó:Eladó
- Település:Szolnok
- Kategória:Lakás
- Alkategória:Tégla
- Alapterület:73 m2
- Csere is:Nem
- Hirdető:Cég
- Élő videón megtekinthető:Nem
- Szobaszám:3
- Állapot:Új építésű
- Hány szintes az ingatlan:nincs megadva
- Komfortosság:nincs megadva
- Hányadik emeleti:nincs megadva
- Erkély:nincs megadva
- Lift:nincs megadva
- Parkolási lehetőség:Garázsban
- Fűtés:Házközponti egyedi mérővel
- Bútorozottság:nincs megadva
- Fényviszony:nincs megadva
- Tájolás:NY
- Kilátás:nincs megadva
- Internet:ISDN
- Klíma:nincs megadva
- Akadálymentesített:Részben akadálymentes
- Energiatanúsítvány:A+
- Villany:nincs megadva
- Víz:Van
- Gáz:nincs megadva
- Csatorna:Van
- Kapcsolatfelvétel

Kiss Katalin
+36-(20)-407-7144
Mondd meg a hirdetőnek, hogy a megveszLAK-on találtad a hirdetést.
Hitel ajánlatok
Ingatlan hirdetés leírása
Szolnok belvárosában exkluzív lakások 34-108 nm-ig eladók!
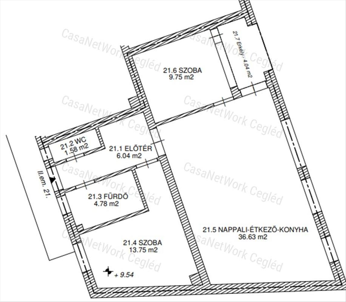
A CasaNetWork Ingatlanhálózat ceglédi irodája eladásra kínálja 174602194 id számú lakást liftes társasházban.
ELADÓ Szolnokon belvárosában, exkluzív 32 lakásos társasház 21. Számú lakása, melynek átadása 2026. II. Negyedévében várható. Jelen ingatlan a 2. emeleten helyezkedik el és 73 m² fűtött lakótérrel rendelkezik + 4, 04 nm erkély.
A ház tégla falazattal (60 cm vastag) és 15 cm hőszigeteléssel készült.
A fűtésről házközponti kazán gondoskodik, a lakások padlófűtésűek. a melegvizet villanybojler biztosítja.
Nyílászárói 3 rétegű hőszigetelt műanyag nyílászárók, antracit színben. a lakások központi részén a Konyha-Nappali-Étkezőben távirányítású elektromos zsalugáterek kaptak helyet, hálószobáiban távirányítású elektromos redőny biztosítja a kellő árnyékolást.
Klíma berendezés és pára elszívás lehetősége kiépítve.
A lakásokhoz külön helyrajzi számmal rendelkező garázs vásárolható, mérete 17 nm . Ára: 12. 000. 000 Ft, vagy udvari beálló 6. 000. 000 Ft. Továbbá tárolók is rendelkezésre állnak, megvásárolhatóak.
A társasházban több méretű ingatlan elérhető 34 nm -től egészen 108 nm -es lakásig.
Az ingatlan modern, energiatakarékos kialakítású, ideális választás egyedülállók, párok, családok számára, akik jól megközelíthető környezetben keresnek új otthont a belvárosban. a lakás kulcsrakész állapotban kerül átadásra 2026 II. Negyedévében.
100 Méterre a városközpont, másik irányba 500 méterre a Tisza part található.
Ügyfeleink számára díjmentes, bankfüggetlen hitelügyintézést biztosítunk. Irodánk teljes körű segítséget tud nyújtani hitelekhez és az összes államilag finanszírozott családi támogatásokhoz!
Megtekintése kizárólag előre egyeztetett időpontban lehetséges!
Amennyiben a CasaNetWork – Cegléd kínálatában szereplő, 174602194 azonosítószámú új építésű szolnoki lakás vagy bármely más ingatlan felkeltette érdeklődését, forduljon hozzánk bizalommal a megadott elérhetőségeken!
Felhívjuk figyelmét, hogy a hirdetésben szereplő információk megbízónktól származnak, ezért azok pontosságáért felelősséget nem tudunk vállalni.
CasaNetWork – Ingatlanban otthon vagyunk. FIX 3% lakáshitelre megvehető
Tetszett ez az eladó Szolnoki új építésű 3 szobás tégla lakás? Hívd fel a hirdetőt most, és tudj meg mindent erről az eladó tégla lakásról! Ha gondolod nézelődj tovább az eladó lakás Szolnok oldal hirdetései között. Ennek az eladó lakásnak az ára 83900000 Ft és mivel az alapterülete 73 négyzetméter, ezért az átlagos négyzetméterára 1149315 HUF/m2.
Az eladó lakások menüpontban további hirdetések között is böngészhetsz. Ha van kedved, akkor böngészhetsz a Kiss Katalin összes hirdetése között, vagy akár a/az CasaNetWork Cegléd összes hirdetése között is.

