Eladó jó állapotú lakás - Tapolca
- INGYENES HIRDETÉS FELADÁS
Ingatlan adatai
- Eladó vagy kiadó:Eladó
- Település:Tapolca
- Kategória:Lakás
- Alkategória:Tégla
- Alapterület:80 m2
- Csere is:Nem
- Hirdető:Cég
- Élő videón megtekinthető:Nem
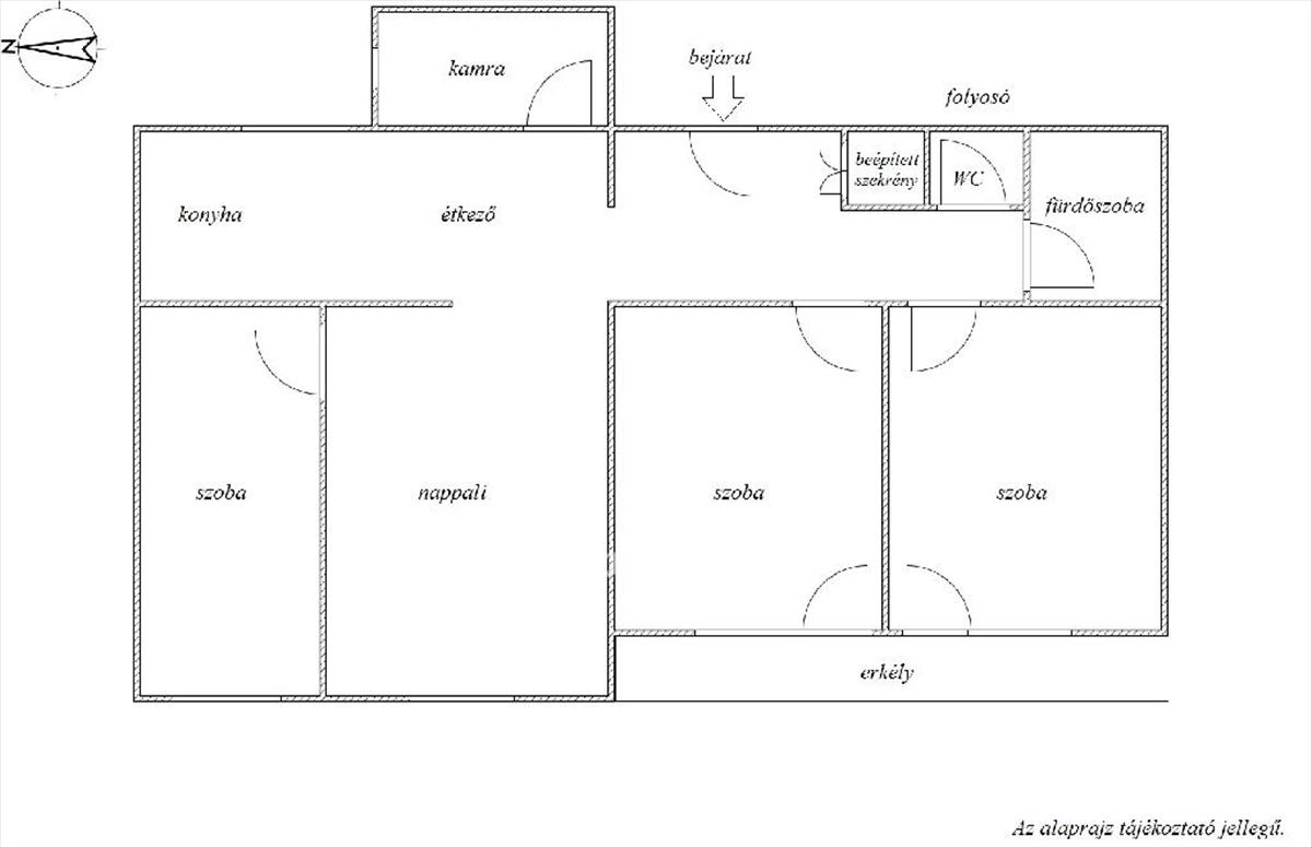
- Szobaszám:3
- Állapot:Jó állapotú
- Hány szintes az ingatlan:3 szintes
- Komfortosság:nincs megadva
- Hányadik emeleti:1
- Erkély:nincs megadva
- Lift:Nincs
- Parkolási lehetőség:Garázsban
- Fűtés:Gáz (cirko)
- Bútorozottság:nincs megadva
- Fényviszony:nincs megadva
- Tájolás:nincs megadva
- Kilátás:nincs megadva
- Internet:nincs megadva
- Klíma:nincs megadva
- Akadálymentesített:nincs megadva
- Energiatanúsítvány:nincs megadva
- Villany:nincs megadva
- Víz:nincs megadva
- Gáz:Telken belül
- Csatorna:Telken belül
- Kapcsolatfelvétel

Czyntula Tamás
+36-70-941-0936
Mondd meg a hirdetőnek, hogy a megveszLAK-on találtad a hirdetést.
Hitel ajánlatok
Ingatlan hirdetés leírása
Balaton északi partján, Tapolca belvárosában ? tágas, erkélyes...
Balaton északi partján, Tapolca belvárosában? Tágas, erkélyes, első emeleti lakás eladó!
Tapolca kedvelt belvárosi részén kínálunk megvételre egy 92 m2-es, első emeleti, kiváló állapotú tégla lakást, amely ideális választás családoknak, pároknak vagy akár idősebb korosztálynak is.
Az ingatlan 3 különnyíló szobával rendelkezik, a nappali, konyha és étkező egy légtérben kapott helyet, így világos és barátságos életteret biztosít. a lakásban továbbá külön fürdőszoba és wc, valamint egy 4 m2-es kamra is található.
Felújítások, műszaki tartalom:
- 2018-ban a fürdőszoba és a külön wc teljes felújításon esett át (vízvezetékek, burkolatok, gázkazán cseréje)
- 2022-ben megújult a konyha, egyedileg gyártott, gépesített konyhabútorral (mosogatógép, sütő, elektromos főzőlap)
- Az erkély szintén 2022-ben lett felújítva wpc burkolattal és acél trapézlemez korláttal
A lakás fűtése gáz-cirkó kazánnal és radiátorokkal megoldott, emellett kandalló, valamint wifi-s hűtő-fűtő klíma is rendelkezésre áll. a melegvíz ellátás alapvetően a gázkazánról történik, a konyhában azonban külön elektromos bojler biztosítja az azonnali melegvizet.
Burkolatok és nyílászárók:
- Szobák: parketta
- Konyha és folyosó: vinyl padló
- Fürdő, wc, kamra: járólap
- Bejárati és beltéri ajtók: fa
- Ablakok: műanyag, redőnnyel és szúnyoghálóval felszerelve
A három szobából kettő egy közös, 8 m2-es, nyugati fekvésű erkélyre nyílik. a lakás további ablakai szintén nyugati irányba tájoltak, az épület északi oldalról védett.
Parkolás és tárolás:
- Parkolás az épület előtt, a társasház saját parkolójában
- a lakáshoz opcionálisan megvásárolható egy 22 m? -Es tároló, amely garázsnak is alkalmas, külön helyrajzi számon
- Ára: 4. 000. 000 Ft
- Közös költsége: 1. 600 Ft/hó
- a tárolóhoz saját, fedett parkolóhely is tartozik
A társasház közös költsége: 14. 500 Ft/hó.
Elhelyezkedés:
Az ingatlan kiváló infrastruktúrával rendelkezik: iskola, óvoda, bevásárlási lehetőségek pár perc sétával elérhetők, a helyi buszmegálló mindössze 50 méterre található.
A lakás megfelel a 3%-os Otthon Start Program feltételeinek, így finanszírozási szempontból is kiváló választás.
További információért vagy megtekintésért várom hívását! FIX 3% lakáshitelre megvehető

