Eladó átlagos állapotú lakás - Tatabánya
- INGYENES HIRDETÉS FELADÁS
Ingatlan adatai
- Eladó vagy kiadó:Eladó
- Település:Tatabánya
- Kategória:Lakás
- Alkategória:Tégla
- Alapterület:45 m2
- Csere is:Nem
- Hirdető:Cég
- Élő videón megtekinthető:Nem
- Szobaszám:1
- Állapot:Átlagos állapotú
- Hány szintes az ingatlan:nincs megadva
- Komfortosság:nincs megadva
- Hányadik emeleti:3
- Erkély:nincs megadva
- Lift:nincs megadva
- Parkolási lehetőség:nincs megadva
- Fűtés:Távfűtés
- Bútorozottság:nincs megadva
- Fényviszony:nincs megadva
- Tájolás:nincs megadva
- Kilátás:nincs megadva
- Internet:nincs megadva
- Klíma:nincs megadva
- Akadálymentesített:nincs megadva
- Energiatanúsítvány:nincs megadva
- Villany:nincs megadva
- Víz:nincs megadva
- Gáz:nincs megadva
- Csatorna:nincs megadva
- Kapcsolatfelvétel

Ádám Csaba
+36-(70)-677-0893
Mondd meg a hirdetőnek, hogy a megveszLAK-on találtad a hirdetést.
Hitel ajánlatok
Ingatlan hirdetés leírása
Lakáskulcs ingatlan, és hitel iroda eladásra kínálja az alábbi...
Lakáskulcs ingatlan, és hitel iroda eladásra kínálja az alábbi ingatlant.
FIGYELEM ritkaság a PIACON!
Eladó lakásunk kiváló zöldövezeti lokációban fekszik, Újvárosban, a Komáromi utcában-.
Séta távolságban piac, Interspar, Vértes Center Bevásárlóközpont, autóbusz - vonatállomás, üzletek, bankok, Általános iskolák, óvodák, bölcsi, Gimnázium, Egyetem.
Akinek nincs autója, vagy nem szeret vezetni, azoknak ez a környezet a legjobb, hiszen gyalogosan mindent elérünk rövid idő alatt, ami a napi életvitelhez szükséges.
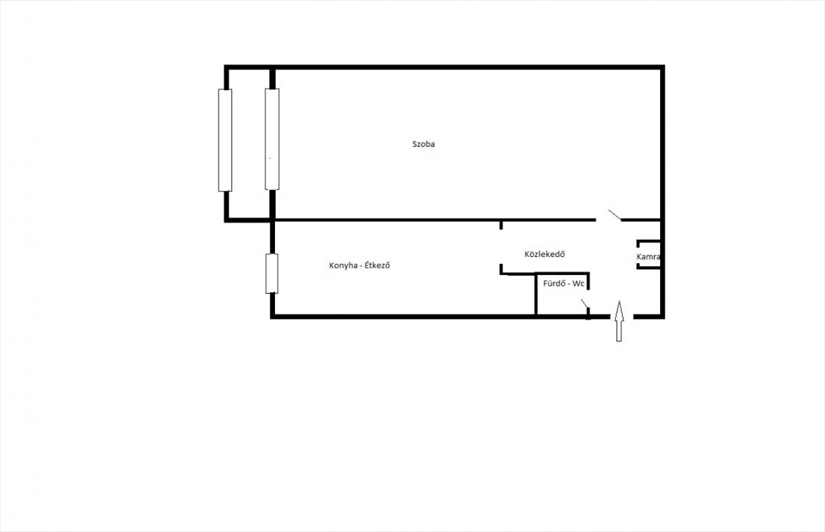
Ingatlanunk egy szobából, konyha - étkezőből, kamrából, fürdőből, és közlekedőből áll. Méretét tekintve 45 nm, de elosztását nézve, egy tágas 1 szobás lakásról van szó.
Továbbá a lakáshoz tartozik 2 db saját, zárható tároló is, ami sokszor óriási segítség a minden napokban.
Amennyiben felkeltettem az érdeklődését, kérem hívjon, és nézzük meg közösen!
Irodánk ingyenes szolgáltatásai:
- Banki hitelügyintézés vezető partner bankjaink termékeivel
- CSOK ügyintézés
- Ingyenes felmérés, tanácsadás.
Irodánk egyéb szolgáltatásai: Ingatlan teljes körű felújítása- átalakítása profin, szakszerűen.
Kérem tekintse meg további hirdetéseimet is, várom hívását!
Ádám Csaba az Ön ingatlan szakértője: +36(70)677 0893 FIX 3% lakáshitelre megvehető

