- >>
- eladó ingatlanok
- >>
- eladó lakás
- >>
- eladó lakás Tiszafüred
- >>
Eladó új építésű lakás - Tiszafüred
| | |||
| Kedvencnek jelölöm | Elküldöm emailben | Megosztás | Szavazás |
| Kedvezményes lakáshitel ajánlatok | |||
| 130 000 000 HUF | |||
Ingatlan adatai
- Eladó vagy kiadó:Eladó
- Település:Tiszafüred
- Kategória:Lakás
- Alkategória:Tégla
- Alapterület:176 m2
- Csere is:Nem
- Hirdető:Cég
- Élő videón megtekinthető:Nem
- Szobaszám:2 + 2 fél
- Állapot:Új építésű
- Hány szintes az ingatlan:2 szintes
- Komfortosság:nincs megadva
- Kertkapcsolatos:Igen
- Hányadik emeleti:2
- Lift:Van
- Parkolási lehetőség:Beállóban
- Fűtés:Gáz (cirko)
- Bútorozottság:nincs megadva
- Fényviszony:nincs megadva
- Tájolás:nincs megadva
- Kilátás:nincs megadva
- Internet:nincs megadva
- Akadálymentesített:nincs megadva
- Energiatanúsítvány:nincs megadva
- Villany:nincs megadva
- Víz:nincs megadva
- Gáz:Telken belül
- Csatorna:Telken belül
- Üzenetküldés
- Hívás


Hitel ajánlat
Ingatlan hirdetés leírása
KITŰNŐ BEFEKTETÉSI LEHETŐSÉG TISZAFÜREDEN!!! A Kikötő körút és...
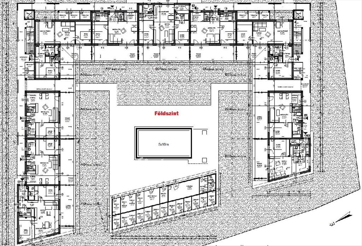
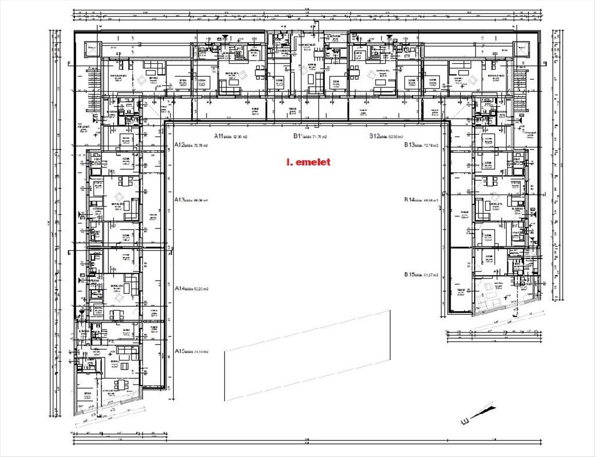
Kitűnő befektetési lehetőség tiszafüreden! ! ! a Kikötő körút és a Tisza-tó partján, az Albatrosz kikötő mellett igényes, elegáns kivitelezésű, új építésű vízparti luxus társasházban, a "Tisza Terasz" házban, 2+2 szobás, teraszos 2. emeleti lakás eladó (b24. Sz. )! ! ! a lakás hasznos alapterülete 87, 60 m2 (bruttó: 176, 70 m2 a 55, 91 m2-es terasszal + 33, 19 m2-es tetőterasszal együtt). a társasház 29 lakásos, háromszintes (földszint+két emelet), Ytong lambda 37, 5 cm pórusbeton falazóelemből épül, fokozott hőszigetelésű műanyag nyílászárókkal! ! !A belső kert felé az összes egység 3 m mélységű saját teraszkapcsolattal rendelkezik. a földszinti lakások kertkapcsolatosak. a külső oldal felé az egységeket kiszolgáló függőfolyosós közlekedők találhatók. a ház egyedi kialakítással hatalmas üvegfelületekkel és szellős, világos terekkel biztosítja a tulajdonosok kényelmét! ! !
Az épületben két lépcsőház és 2 db 4 személyes 480 kg teherbírású lift kerül kialakításra! ! !
A gát felé kerti építmény készül, ahol tárolók kerülnek kialakításra. Az épület előtti területen kerülnek kialakításra a felszíni gépkocsi parkolók.
A Tisza Terasz ház a Tiszafüred első prémium kategóriás környezetbe illő örök panorámás ingatlan fejlesztése! ! ! Elhelyezkedéséből adódóan egyedi értéket képvisel, szerethető környezetet biztosít a tudatos, igényes otthon keresők számára. Kikapcsolódást a zöld környezet, a közvetlen vízpart, szabadstand, kerékpárút, Tisza tavi vízi túrák, kikötők, pecázás, páratlan szépségű, felejthetetlen Tisza tavi naplementék garantálják!
A kétemeletes épületben a 40 m2-es nagy teraszos lakástól a penthouse-ig mindenki megtalálja a számára ideális otthont! ! !
A lakásokat kiegészíti udvaron található saját tulajdonú tárolok, parkolók, a biztonságot beléptető rendszer és kamerák biztosítják.
Az építkezés 2025. Októberében indul és kb. 12 Hónapig tart.
A társasházi telek területe: 4. 255 m2. a lakásokhoz 1 db parkolóhely és tároló vásárlása kötelező (a társasház 29 lakásához 30 parkolóhely, 29 tárolóhely készül), földszinten 10 lakás, az i. emeleten 10 lakás, II. emeleten 9 lakás kerül kialakításra.
A 30 parkolóhelyből 29 db 12, 05 m2-es és 3, 2 millió Ft, 1 db 19, 8 m2-es és 4, 5 millió Ft, a 29 db tároló mérete és ára változó: 1, 9 milliótól 3, 2 millió Ft-ig (parkolóhelyek és tárolók méretekkel és árakkal a képek között).
Az U alakban elhelyezkedő nagy teraszos ház öleli közre a belső udvart, ahol feszített víztükrű fűtött medence, napozó, szolgálja a lakók pihenését otthont teremtve a tudatosan gondolkozó, igényes otthon keresők részére! ! !
Kivitelezéssel kapcsolatos részletes információkkal, műszaki dokumentációval készséggel állok rendelkezésére.
Az OTP Ingatlanpont Kft. Az OTP bankcsoport hátterével ingyenesen biztosítja ügyfeleinek kedvezményes kamatozású lakásvásárlási hitel, CSOK és/vagy Babaváró hitel ügyintézését! ! !
Közelben: Szabadvízi strand, Tisza-tó, kerékpárút, Albatrosz kikötő, üdülőterület, kikötő körúti szolgáltatások.
Helyiségek: nappali, konyha+étkező, 3 szoba, előtér, közlekedő, 2fürdő, wc, terasz.
Fűtés-hűtés: kombi gázkazán padlófűtéssel, fürdőben törölközőszárító, minden lakás főhelyiségeiben hűtő-fűtő inverteres klíma kerül elhelyezésre.
Melegvíz: kombi gázcirkó.
Közművek: minden lakáshoz egyedi mérővel víz, villany, gáz, valamint szennyvízrákötés a városi csatornára; az internethez, telefonhoz, tévéhez ki lesz alakítva a vezetékelés lehetősége.
Az épület lakóházként épül, így is van engedélyezve, így CSOK is igényelhető, de az egyes lakások luxus apartmanként, nyaralóként is használhatók lesznek, Tiszafüreden a kerékpár-, horgászturizmus, vadászat, folyamatos beruházások (vannak tervezettek is) amelyek által a szezon már nem csak a nyárra korlátozódik! ! ! Tiszafüred és Poroszló között 2020-ban készült el a kerékpárút, ezáltal teljesen körbe lehet kerékpározni a Tisza-tavat, a kerékpárút e telek előtti gátszakasszal is össze van kötve tovább Tiszacsege irányába. a távolsági busz és vonatközlekedés kiváló a településen (pályaudvarok), a város közúti megközelíthetősége szintén, 33-as, 34-es főút, M3-as autópálya 30 km-re (25 perc). Tiszafüred tisza-tavi kisváros, a Tisza-tó fővárosa, idegenforgalmi és térségi központ a Hortobágy kapujában, igen széleskörű infrastrukturális ellátottsággal: bölcsőde, óvoda, általános iskolák, gimnázium, szakközépiskola, szakmunkásképző, gyógyszertárak, nagy áruházak (tesco, lidl, spar, Penny), szakorvosi ellátások, fizioterápiás szolgáltatások, benzinkutak (mol, shell, oil), hivatalok, járási hivatal, okmányiroda, rövidesen megújuló termálstrand, kiváló szabadvizi strand, kerékpáros centrum, kitűnő éttermek, szolgáltatások, közeli nagyobb városok Eger (50 km), Debrecen (67 km), Karcag (40 km), de Budapest is 150 km-re (1, 5 óra), szomszédos Poroszlón Ökocentrum.
Amennyiben hirdetésem felkeltette érdeklődését, keressen bizalommal bármikor (hétvégén is! ), Lehetőleg a +36 30 299 74 16 telefonszámon, ha nem tudom azonnal felvenni, visszahívom, ha a számát kijelzi. További kérdéseire is készséggel válaszolok. a tiszafüredi OTP Ingatlanpont és OTP Pénzügyi Pont teljes körű ügyintézéssel áll az eladók és a vevők rendelkezésére! ! ! a kínálatunkból választott ingatlan finanszírozásához kedvezményes hitelkonstrukciókat kínálunk! Az adásvételi szerződés megkötéséhez - igény szerint - megbízható ügyvédi közreműködést biztosítunk, és segítséget nyújtunk az adásvételhez kapcsolódó ügyek intézéséhez, hiteligényléshez és CSOK-hoz teljes körűen (igazolások igénylése, nyomtatványok kitöltése, benyújtása, kérelem gondozása stb. ).
Irányár: 130 000 000 Ft
Referenciaszám: m247547 (2. emelet b24. Sz. )
További részletek a Tisza Terasz Házról és e lakásról: https://tiszaterasz. Hu/ Hitel.hu - Hasonlítsa össze a bankok lakáshitel ajánlatait

