Eladó új építésű lakás - Tököl
- INGYENES HIRDETÉS FELADÁS
Ingatlan adatai
- Eladó vagy kiadó:Eladó
- Település:Tököl
- Kategória:Lakás
- Alkategória:Tégla
- Alapterület:66 m2
- Csere is:Nem
- Hirdető:Cég
- Élő videón megtekinthető:Nem
- Szobaszám:2 + 1 fél
- Állapot:Új építésű
- Hány szintes az ingatlan:2 szintes
- Komfortosság:nincs megadva
- Kertkapcsolatos:Igen
- Hányadik emeleti:nincs megadva
- Erkély:nincs megadva
- Lift:Nincs
- Parkolási lehetőség:Beállóban
- Fűtés:nincs megadva
- Bútorozottság:nincs megadva
- Fényviszony:nincs megadva
- Tájolás:nincs megadva
- Kilátás:nincs megadva
- Internet:nincs megadva
- Klíma:nincs megadva
- Akadálymentesített:nincs megadva
- Energiatanúsítvány:nincs megadva
- Villany:nincs megadva
- Víz:nincs megadva
- Gáz:nincs megadva
- Csatorna:nincs megadva
- Kapcsolatfelvétel

Kozák Andor
+36-30-674-6389
Mondd meg a hirdetőnek, hogy a megveszLAK-on találtad a hirdetést.
Hitel ajánlatok
Ingatlan hirdetés leírása
Tököl csendes, nyugodt részén eladó egy 4 lakásos sorház egyik...
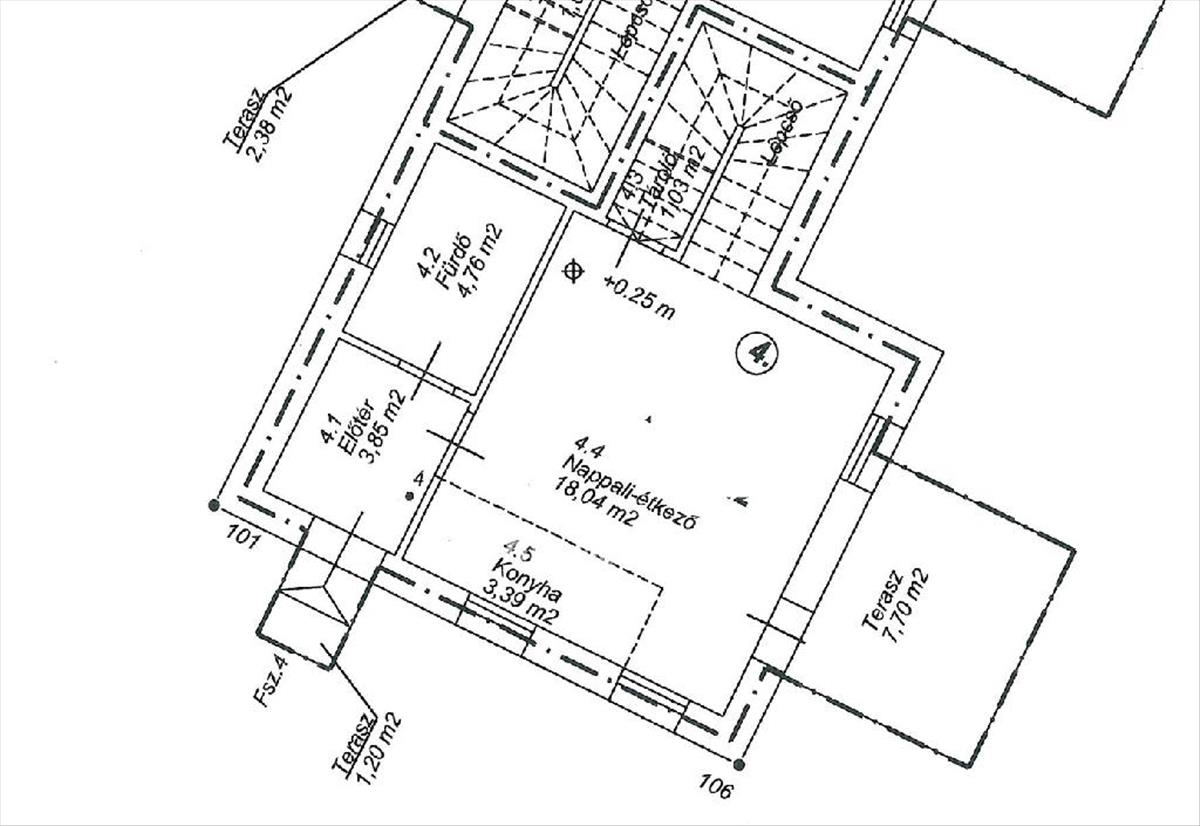
Tököl csendes, nyugodt részén eladó egy 4 lakásos sorház egyik nettó 66 nm -es, kétszintes lakása, amely ideális választás lehet mindazok számára, akik modern, kertkapcsolatos otthont keresnek. Az ingatlan teljesen elszeparált, saját telekrésszel rendelkezik, így valódi családi ház érzetét nyújtja, miközben a társasházi forma előnyeit is élvezheti. a nappali közvetlen kertkapcsolattal rendelkezik, így a természet közelsége a mindennapok részévé válik.
Az új építésű ingatlan társasházi alapító okirattal rendelkezik, megfelel az Otthon Start hitel feltételeinek, valamint CSOK Plusz is igényelhető, ami kiváló lehetőséget nyújt az otthonteremtéshez. a lakás világos, jól átgondolt elosztású, élhető terekkel.
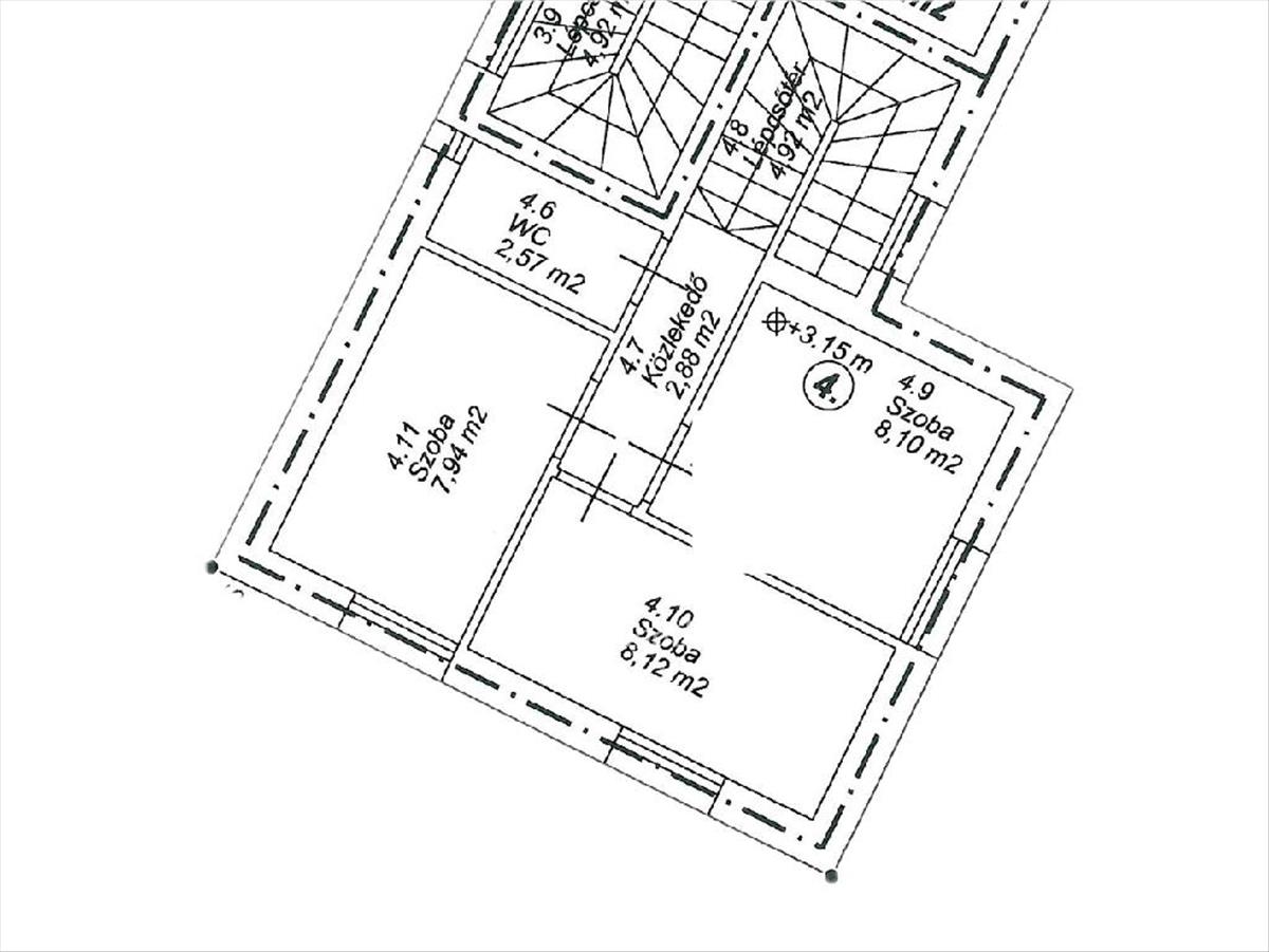
A földszinten előszoba, nappali-konyha-étkező egy légtérben, fürdőszoba és tároló található. Az emeleten közlekedő, három külön nyíló szoba és külön wc kapott helyet.
A modern műszaki tartalomról kondenzációs gázkazán gondoskodik padlófűtéses hő leadással, az oldalfalakon 12 cm grafitos szigetelés található, a korszerű műanyag hőszigetelt nyílászárók pedig hozzájárulnak az energiatakarékos működéshez. Az udvaron autóbeállási lehetőség biztosított. Az ingatlan rövid időn belül költözhető, a fizetési feltételek pedig rugalmasak, így ideális választás lehet mindazok számára, akik gyorsan szeretnének új, modern otthonukba költözni.
A vásárlást teljes körű, díjmentes tanácsadás és helyben történő, gyors és egyszerű hitelügyintézés segíti. Ne maradjon le erről a kedvező lehetőségről, érdeklődjön bizalommal. FIX 3% lakáshitelre megvehető
Tetszett ez az eladó Tököli új építésű 2 egész és 1 fél szobás tégla lakás? Hívd fel a hirdetőt most, és tudj meg mindent erről az eladó tégla lakásról! Ha gondolod nézelődj tovább az eladó lakás Tököl oldal hirdetései között. Ennek az eladó lakásnak az ára 79900000 Ft és mivel az alapterülete 66 négyzetméter, ezért az átlagos négyzetméterára 1210606 HUF/m2.
Az eladó lakások menüpontban további hirdetések között is böngészhetsz. Ha van kedved, akkor böngészhetsz a Kozák Andor összes hirdetése között, vagy akár a/az Monor Kossuth Lajos utca 71 - OTP Ingatlanpont Iroda összes hirdetése között is.

