Eladó új építésű lakás - Tolna
- INGYENES HIRDETÉS FELADÁS
Ingatlan adatai
- Eladó vagy kiadó:Eladó
- Település:Tolna
- Kategória:Lakás
- Alkategória:Tégla
- Alapterület:518 m2
- Csere is:Nem
- Hirdető:Cég
- Élő videón megtekinthető:Nem
- Szobaszám:20
- Állapot:Új építésű
- Hány szintes az ingatlan:nincs megadva
- Komfortosság:Összkomfortos
- Hányadik emeleti:1
- Erkély:Nincs
- Lift:Nincs
- Parkolási lehetőség:Nincs
- Fűtés:nincs megadva
- Bútorozottság:nincs megadva
- Fényviszony:nincs megadva
- Tájolás:nincs megadva
- Kilátás:Utcai
- Internet:nincs megadva
- Klíma:nincs megadva
- Akadálymentesített:nincs megadva
- Energiatanúsítvány:nincs megadva
- Villany:nincs megadva
- Víz:nincs megadva
- Gáz:nincs megadva
- Csatorna:nincs megadva
- Kapcsolatfelvétel

Görög Zoltán
+36-(30)-517-2623
Mondd meg a hirdetőnek, hogy a megveszLAK-on találtad a hirdetést.
Hitel ajánlatok
Ingatlan hirdetés leírása
Eladó Tégla lakás, Tolna-Mözs, 518nm, 295000000 Ft
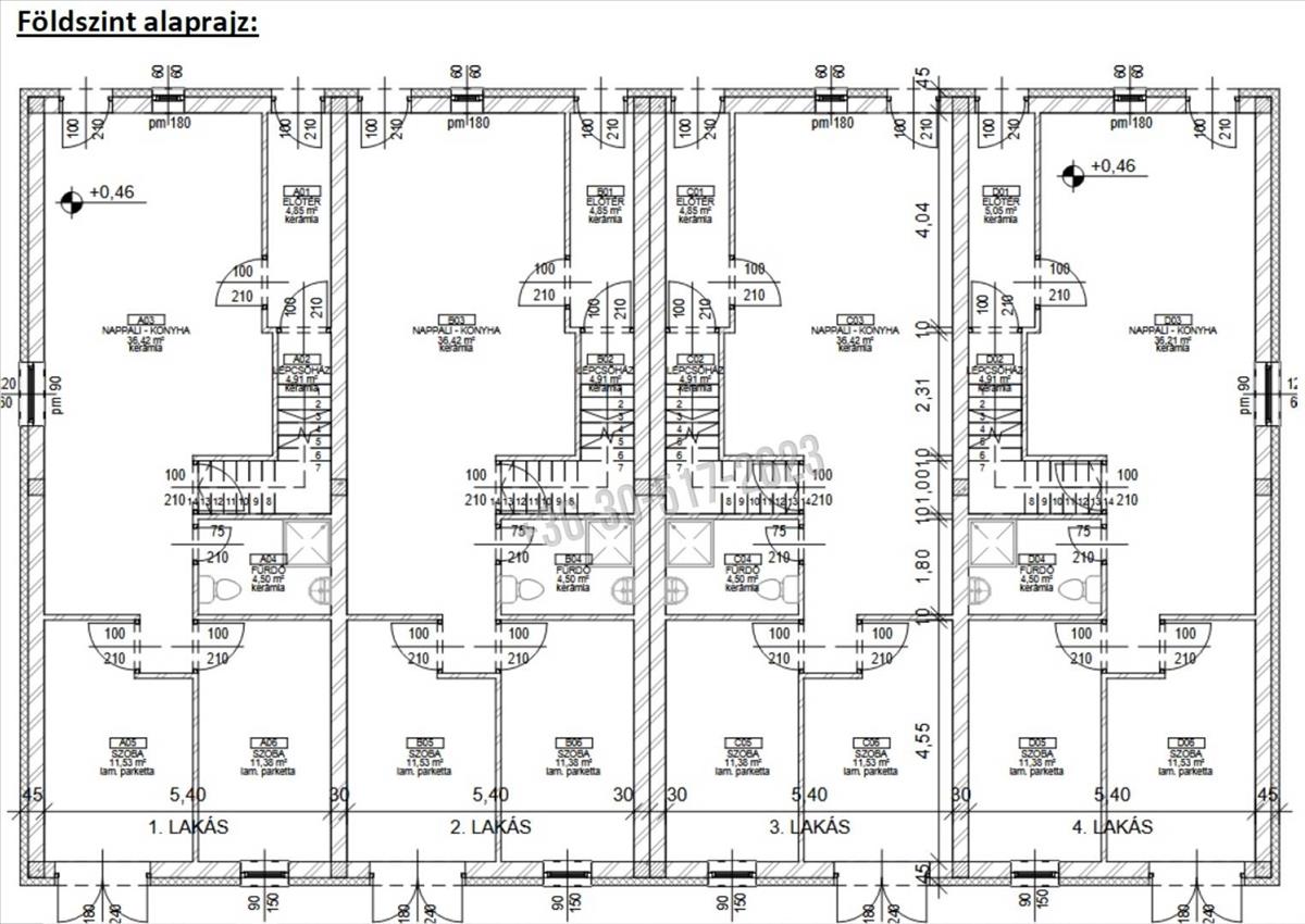
Tolna-Mözsön 8 lakásos társasház ELADÓ!
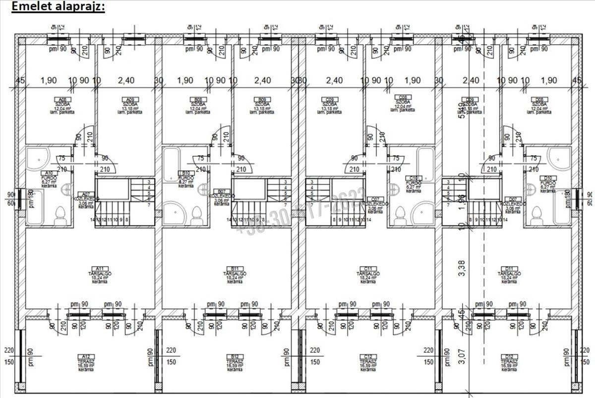
A jelenleg emelt szerkezetkész állapotban lévő 518 m2-es társasházban összesen 8 db lakás lett kialakítva, melyből 4 db két hálószoba plusz nappalis 71, 61 m2-es lakás a fölszinten, 4 db két hálószoba plusz amerikai konyhás 65, 91 m2-es lakás pedig az emeleten található.
Helyiségekre bontva
a földszint:
Nappali-konyha: 36, 2 m2
Fürdő: 4, 5 m2
Szoba: 11, 53 m2
Szoba: 11, 38 m2
Előkert és hátsó kertkapcsolat.
Az emelet:
Nappali-konyha : 16, 49 m2
Fürdő: 6, 27 m2
Szoba: 11, 53 m2
Szoba: 11, 38 m2
Közlekedő: 3, 17 m2
Lépcsőház: 4, 91 m2
Terasz: 16 m2
Műszaki tartalom:
Az épület 3 réteg üvegezéssel ellátott, műanyag nyílászárókat és 15 cm-es homlokzati szigetelést kapott.
Fűtést lakásonként saját kondenzációs gázkazán fogja biztosítja padlófűtés segítségével, a hűtést fali klímák fogják segíteni.
A kiváló elhelyezkedésnek és a kedvező ár/érték arányénak köszönhetően jelenleg a legjobb választás új otthonának és befektetési szándék esetén is.
Az ingatlan egy csendes családi házas utcában helyezkedik el, így az itt élők zavartalan pihenése biztosított.
Sétáló távolságon belül minden fontosabb intézmény megtalálható, úgy mint iskola, óvoda, bolt, orvosi rendelő.
A társasház a Paksi Atomerőműtől és a Paks II. Építési beruházástól 21 km-re található, melynek köszönhetően bérbeadási szándék esetén gyors megtérülés várható. Hitel.hu - Hasonlítsa össze a bankok lakáshitel ajánlatait
Tetszett ez az eladó Tolnai új építésű 20 szobás tégla lakás? Hívd fel a hirdetőt most, és tudj meg mindent erről az eladó tégla lakásról! Ha gondolod nézelődj tovább az eladó lakás Tolna oldal hirdetései között. Ennek az eladó lakásnak az ára 295000000 Ft és mivel az alapterülete 518 négyzetméter, ezért az átlagos négyzetméterára 569498 HUF/m2.
Az eladó lakások menüpontban további hirdetések között is böngészhetsz. Ha van kedved, akkor böngészhetsz a Görög Zoltán összes hirdetése között, vagy akár a/az Paksi Ingatlanhasznosító Kft. összes hirdetése között is.

