Eladó felújított lakás - Törökbálint
- INGYENES HIRDETÉS FELADÁS
Ingatlan adatai
- Eladó vagy kiadó:Eladó
- Település:Törökbálint
- Kategória:Lakás
- Alkategória:Tégla
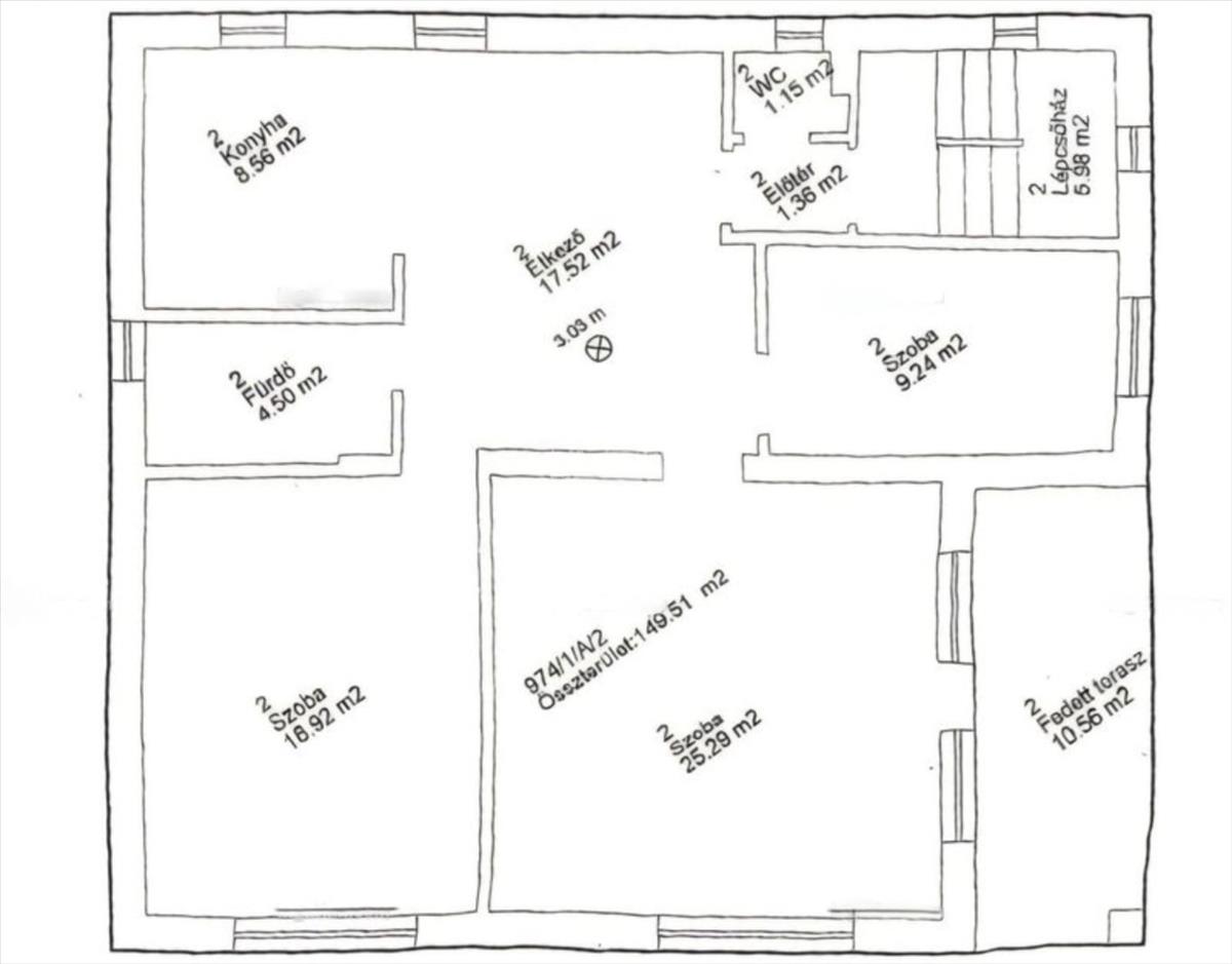
- Alapterület:86 m2
- Csere is:Nem
- Hirdető:Cég
- Élő videón megtekinthető:Nem
- Szobaszám:4
- Állapot:Felújított
- Hány szintes az ingatlan:2 szintes
- Komfortosság:nincs megadva
- Hányadik emeleti:1
- Erkély:nincs megadva
- Lift:nincs megadva
- Parkolási lehetőség:Beállóban
- Fűtés:Gáz (cirko)
- Bútorozottság:nincs megadva
- Fényviszony:nincs megadva
- Tájolás:nincs megadva
- Kilátás:nincs megadva
- Internet:nincs megadva
- Klíma:nincs megadva
- Akadálymentesített:nincs megadva
- Energiatanúsítvány:nincs megadva
- Villany:nincs megadva
- Víz:nincs megadva
- Gáz:nincs megadva
- Csatorna:nincs megadva
- Kapcsolatfelvétel

Forster Tamás
+36-(30)-887-7351
Mondd meg a hirdetőnek, hogy a megveszLAK-on találtad a hirdetést.
Hitel ajánlatok
Ingatlan hirdetés leírása
TÖRÖKBÁLINTI OTTHON, AMI NEM KÉR KOMPROMISSZUMOT Van az a pon...
Törökbálinti otthon, ami nem kér KOMPROMISSZUMOT
Van az a pont, amikor már nem csak egy lakást keresel, hanem egy helyet, ahol minden a helyén van. Ez az ingatlan pontosan ilyen.
Törökbálint csendes, mégis jól megközelíthető részén kínáljuk ezt a 86 négyzetméteres, átgondoltan felújított téglalakást, amely valódi otthonérzetet ad már az első pillanatban.
A térérzet azonnal érezhető. a több mint három méteres belmagasság és a világos terek olyan nyitottságot adnak, amit kevés hasonló ingatlan tud.
Az elrendezés a mai élethez igazodik
amerikai konyhás nappali, ahol együtt lehet a család
három külön nyíló szoba, amelyek valóban használhatók
külön gardrób, ami rendet teremt a mindennapokban
külön wc a kényelmesebb hétköznapokért
Ami viszont igazán megkülönbözteti ezt a lakást a piacon, az a fenntarthatóság. a teljes rezsi mindössze havi húszezer forint körül alakul, ami ma kivételesen ritka. Ez nem csak most előny, hanem hosszú távon is komoly érték.
A komfort minden évszakban adott
gázkazán biztosítja a stabil fűtést és melegvizet
hűtő fűtő klíma gondoskodik a kellemes hőmérsékletről
És ami igazán élhetővé teszi
saját, 104 négyzetméteres udvar, ahol van tér levegőt venni
erkély, ami tényleg használható, nem csak papíron létezik
nagy méretű pince, benne egy külön hangszigetelt helyiséggel, ami lehet dolgozószoba, hobbitér vagy akár saját stúdió
A környék nyugodt és barátságos, miközben minden fontos dolog elérhető távolságon belül van. Ez az a kombináció, amit sokan keresnek, de kevesen találnak meg.
Irányár 118. 000. 000 Ft
Ez az ingatlan nem akar többnek látszani, mint ami. Egyszerűen csak jól működik. És pont ezért érték.
Ha olyan otthont keresel, ahol a számok és az érzés is stimmel, akkor ezt látni kell. Hitel.hu - Hasonlítsa össze a bankok lakáshitel ajánlatait
Tetszett ez az eladó Törökbálinti felújított 4 szobás tégla lakás? Hívd fel a hirdetőt most, és tudj meg mindent erről az eladó tégla lakásról! Ha gondolod nézelődj tovább az eladó lakás Törökbálint oldal hirdetései között. Ennek az eladó lakásnak az ára 118000000 Ft és mivel az alapterülete 86 négyzetméter, ezért az átlagos négyzetméterára 1372093 HUF/m2.
Az eladó lakások menüpontban további hirdetések között is böngészhetsz. Ha van kedved, akkor böngészhetsz a Forster Tamás összes hirdetése között, vagy akár a/az GDN Ingatlanhálózat összes hirdetése között is.

