Eladó új építésű lakás - Vác
- INGYENES HIRDETÉS FELADÁS
Ingatlan adatai
- Feladva:4 hónapja a megveszLAK-on
- Eladó vagy kiadó:Eladó
- Település:Vác
- Kategória:Lakás
- Alkategória:Tégla
- Alapterület:92 m2
- Csere is:Nem
- Hirdető:Cég
- Élő videón megtekinthető:Nem
- Szobaszám:2 + 1 fél
- Állapot:Új építésű
- Hány szintes az ingatlan:2 szintes
- Komfortosság:nincs megadva
- Hányadik emeleti:2
- Erkély:nincs megadva
- Lift:nincs megadva
- Parkolási lehetőség:Utcán
- Fűtés:Egyéb
- Bútorozottság:nincs megadva
- Fényviszony:nincs megadva
- Tájolás:nincs megadva
- Kilátás:nincs megadva
- Internet:nincs megadva
- Klíma:nincs megadva
- Akadálymentesített:nincs megadva
- Energiatanúsítvány:nincs megadva
- Villany:nincs megadva
- Víz:nincs megadva
- Gáz:nincs megadva
- Csatorna:nincs megadva
- Kapcsolatfelvétel

Harmati Attila
+36-(70)-520-2966
Mondd meg a hirdetőnek, hogy a megveszLAK-on találtad a hirdetést.
Hitel ajánlatok
Ingatlan hirdetés leírása
Eladó Vácon, Deákvár frekventált részén lévő, beépítésre váró ...
Eladó Vácon, Deákvár frekventált részén lévő, beépítésre váró tetőtér!
A víz és szennyvíz kiállást már felvitték, az áramot még nem.
Az ingatlan külön helyrajzi számon található, tulajdon lapi besorolása tetőtér, tehermentes, azonnal birtokba vehető.
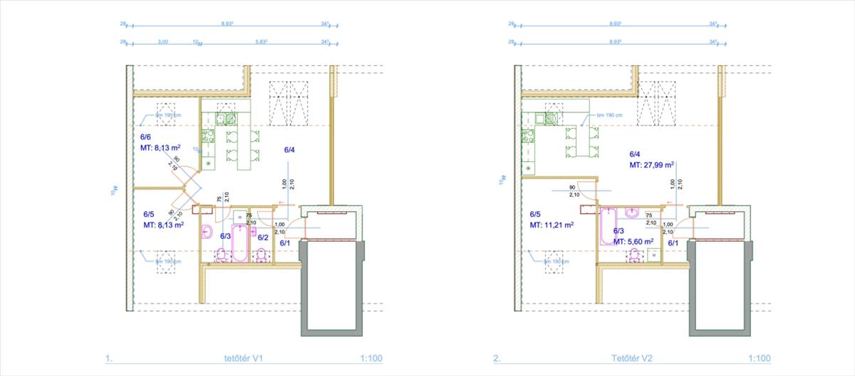
Már készültek tervek a beépítésre, két féle alaprajz (1 vagy 2 hálós) is látható a képek között, persze a belső elrendezésen még lehet alakítani, saját ízlés szerint.
Készült statikai terv az e-gerendás födém teherbíróvá kialakítására, valamint a korábbi állószékes tetőszerkezet helyett fogópáras, közbenső megtámasztás nélküli
tetőszerkezetre (nincs tetőteher a meglévő födémre, nincs zavaró oszlop).
A középen lévő kémény bontható, nincs rá szüksége senkinek.
Igény szerint a statikai munkákat meg tudja csinálni a Tulajdonos cég (födém megerősítés, tetőszerkezet, tűzfal újrarakás), így az új Tulajdonosnak már csak a belső munkákra kell koncentrálnia.
A vételár a jelenlegi állapotot tartalmazza és a már elkészült terveket.
Mindent megtalálunk a közelben, amire szükségünk lehet!
(Pl: bolt, hentes, zöldséges, óvoda, iskola, gyógyszertár, orvosi rendelő, stb. )
Az ingatlan elhelyezkedése tömegközlekedés szempontjából KIVÁLÓ!
A lakás befektetésnek is tökéletes, ha elkészül, könnyen kiadható!
További információért forduljon Hozzám bizalommal!
Amivel segítjük az Ön ingatlanvásárlását:
-ingyenes, bankfüggetlen hitelügyintézés (csok és Babaváró ügyintézése is. )
-Jogi háttér
-földhivatali ügyintézés
-energetikai tanúsítvány elkészítése
-biztosítás FIX 3% lakáshitelre megvehető
Tetszett ez az eladó Váci új építésű 2 egész és 1 fél szobás tégla lakás? Hívd fel a hirdetőt most, és tudj meg mindent erről az eladó tégla lakásról! Ha gondolod nézelődj tovább az eladó lakás Vác oldal hirdetései között. Ennek az eladó lakásnak az ára 18500000 Ft és mivel az alapterülete 92 négyzetméter, ezért az átlagos négyzetméterára 201087 HUF/m2.
Az eladó lakások menüpontban további hirdetések között is böngészhetsz. Ha van kedved, akkor böngészhetsz a Harmati Attila összes hirdetése között, vagy akár a/az GDN Ingatlanhálózat összes hirdetése között is.

