Eladó luxus lakás Velence
| Kedvencbe | Megosztás | Árfigyelő |
| Kedvezményes lakáshitel ajánlatok | ||
| 300 000 000 HUF | ||
Ingatlan adatai
- Eladó vagy kiadó:Eladó
- Település:Velence
- Kategória:Lakás
- Alkategória:Tégla
- Alapterület:60 m2
- Csere is:Nem
- Hirdető:Cég
- Élő videón megtekinthető:Nem
- Szobaszám:3
- Állapot:Luxus
- Hány szintes az ingatlan:nincs megadva
- Komfortosság:Luxus
- Hányadik emeleti:nincs megadva
- Erkély:Nincs
- Lift:Nincs
- Parkolási lehetőség:Nincs
- Fűtés:nincs megadva
- Bútorozottság:nincs megadva
- Fényviszony:nincs megadva
- Tájolás:nincs megadva
- Kilátás:nincs megadva
- Internet:nincs megadva
- Akadálymentesített:nincs megadva
- Energiatanúsítvány:nincs megadva
- Villany:nincs megadva
- Víz:nincs megadva
- Gáz:nincs megadva
- Csatorna:nincs megadva
- Üzenetküldés
- Hívás

Magyarné Jarcsó Edit
Mondd meg a hirdetőnek, hogy a megveszLAK-on találtad a hirdetést.

Hitel ajánlat
Ingatlan hirdetés leírása
Eladó Tégla lakás, Velence, Újtelep, 60nm, 300000000 Ft
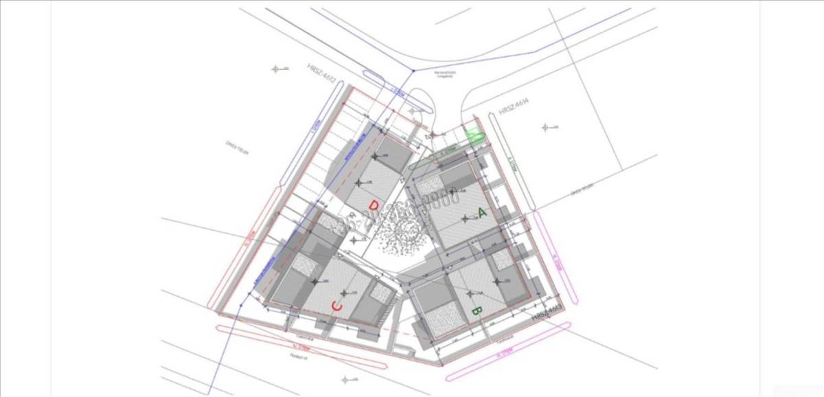
Exkluzív velencei fejlesztési lehetőség eladó!Velence egyik legígéretesebb lakóövezetének központi részén kínáljuk megvételre egy 21 lakásos prémium társasház teljes projektcégét, jogerős építési engedéllyel és komplett kiviteli tervcsomaggal. a projekt minden engedélye rendelkezésre áll, így azonnal folytatható a kivitelezés.
A fejlesztés már megkezdődött:
– az első épület alapozása elkészült, a beruházás így nemcsak papíron létezik, hanem tényleges, előrehaladott státuszban várja új tulajdonosát.
A projekt mérete és prémium jellege kiváló lehetőséget teremt mind hosszú távú befektetőknek, mind olyan szakmai szereplőknek, akik egy kész, átvételre kész, elegánsan megtervezett lakófejlesztést keresnek.
A projekt átadásához szükséges további beruházás összege: 300 millió Ft.
Velence folyamatosan fejlődő környezete, a természetközeli életmód és a kedvező közlekedési kapcsolatok együttesen biztosítják, hogy a 21 lakásos társasház könnyen értékesíthető, magas presztízsű fejlesztés legyen.
Ritka lehetőség a luxuspiacon — olyan befektetők számára, akik kész projekttel, minimális adminisztrációval és azonnali folytathatósággal keresnek prémium portfólióbővítést. Hitel.hu - Hasonlítsa össze a bankok lakáshitel ajánlatait

