Eladó új építésű lakás - Velence
- INGYENES HIRDETÉS FELADÁS
Ingatlan adatai
- Feladva:41 napja a megveszLAK-on
- Eladó vagy kiadó:Eladó
- Település:Velence
- Kategória:Lakás
- Alkategória:Tégla
- Alapterület:220 m2
- Csere is:Nem
- Hirdető:Cég
- Élő videón megtekinthető:Nem
- Szobaszám:5
- Állapot:Új építésű
- Hány szintes az ingatlan:nincs megadva
- Komfortosság:nincs megadva
- Hányadik emeleti:nincs megadva
- Erkély:Van
- Lift:nincs megadva
- Parkolási lehetőség:nincs megadva
- Fűtés:nincs megadva
- Bútorozottság:nincs megadva
- Fényviszony:nincs megadva
- Tájolás:D
- Kilátás:Udvari
- Internet:nincs megadva
- Klíma:nincs megadva
- Akadálymentesített:nincs megadva
- Energiatanúsítvány:nincs megadva
- Villany:Van
- Víz:Van
- Gáz:Van
- Csatorna:Van
- Kapcsolatfelvétel

Nagy Zoltán
+36-(70)-628-7088
Mondd meg a hirdetőnek, hogy a megveszLAK-on találtad a hirdetést.
Hitel ajánlatok
Ingatlan hirdetés leírása
Egy újépítésű lakás 4 lakásos társasházban saját 227 nm privát...
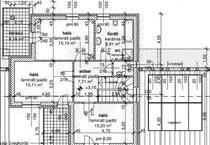
Egy új építésű lakás 4 lakásos társasházban saját 227 nm privát kerttel került eladásra Fejér megyében, Velencén, a felkapott Nadapi úton. Az ingatlan 154 nm lakóterületből, 36 nm dupla garázsból, és 52 nm teraszból áll.
TERVEZETT átadás 2024. 07. 15.
A kivitelező kizárólag magas minőségű anyagfelhasználással dolgozik, hószivattyús technológia, minden helyiségben padlófűtés és légkondicionálás külön termosztáttal. Részletes műszaki tartalomért forduljon hozzám bizalommal.
Ez a modern és exkluzív ingatlan egyedi tervezésű, és minden olyan funkcióval rendelkezik, amelyet egy család igényelhet. Az ingatlan állapota új építésű, és minden részletre figyeltek a tervezés során. a lakóterület összesen 5 szobával és 2 fürdőszobával egy külön wc vel és egy mosókonyhával rendelkezik. Az ingatlan központi elhelyezkedése miatt könnyen elérhető minden fontosabb helyszín a környéken. a kertvárosi lakás csendes környezetben található, így a nyugodt életet keresők számára ideális választás. a hőszivattyúval fűtött és légkondicionált ingatlan egyedi tervezése és modern kialakítása miatt kiváló választás azok számára, akik egy kivételes otthont keresnek. Az ingatlan környezete biztonságos és csendes, így a családok számára ideális választás. a környék előnyös adottságai közé tartozik a kitűnő közlekedés, amely lehetővé teszi az ingatlantulajdonosok számára, hogy azonnal elérjék az m7 autópályát is. . a közeli tömegközlekedési lehetőségeknek köszönhetően az ingatlan könnyen megközelíthető.
Az ingatlan bemutatása után szeretnénk megemlíteni, hogy minden kérdéssel és észrevétellel kapcsolatban bizalommal fordulhatnak hozzánk. Az ügyfelek számára fontos, hogy megfelelő információkkal rendelkezzenek, és mi mindent megteszünk azért, hogy segítsünk nekik a legjobb döntés meghozatalában. Ha szeretné megtekinteni az ingatlant, vagy bármilyen kérdése van, kérjük, vegye fel velünk a kapcsolatot. Hitel.hu - Hasonlítsa össze a bankok lakáshitel ajánlatait
Tetszett ez az eladó Velencei új építésű 5 szobás tégla lakás? Hívd fel a hirdetőt most, és tudj meg mindent erről az eladó tégla lakásról! Ha gondolod nézelődj tovább az eladó lakás Velence oldal hirdetései között. Ennek az eladó lakásnak az ára 149999000 Ft és mivel az alapterülete 220 négyzetméter, ezért az átlagos négyzetméterára 681814 HUF/m2.
Az eladó lakások menüpontban további hirdetések között is böngészhetsz. Ha van kedved, akkor böngészhetsz a Nagy Zoltán összes hirdetése között, vagy akár a/az Nagy Ingatlan Powered by RH összes hirdetése között is.

