Eladó felújított lakás - Veresegyház
- INGYENES HIRDETÉS FELADÁS
Ingatlan adatai
- Eladó vagy kiadó:Eladó
- Település:Veresegyház
- Kategória:Lakás
- Alkategória:Tégla
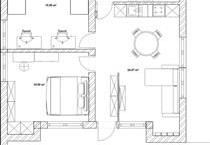
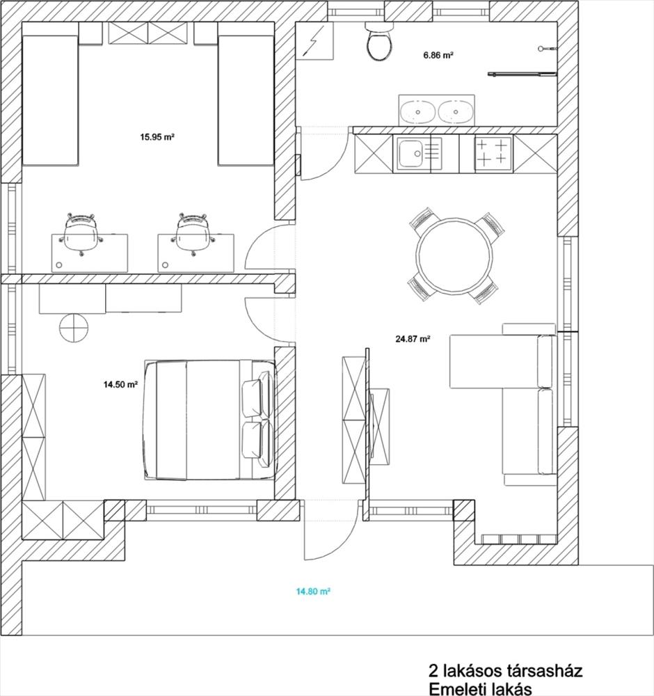
- Alapterület:62 m2
- Csere is:Nem
- Hirdető:Cég
- Élő videón megtekinthető:Nem
- Szobaszám:2
- Állapot:Felújított
- Hány szintes az ingatlan:2 szintes
- Komfortosság:nincs megadva
- Kertkapcsolatos:Igen
- Hányadik emeleti:1
- Erkély:nincs megadva
- Lift:nincs megadva
- Parkolási lehetőség:Beállóban
- Fűtés:nincs megadva
- Bútorozottság:nincs megadva
- Fényviszony:nincs megadva
- Tájolás:nincs megadva
- Kilátás:nincs megadva
- Internet:nincs megadva
- Klíma:nincs megadva
- Akadálymentesített:nincs megadva
- Energiatanúsítvány:nincs megadva
- Villany:nincs megadva
- Víz:nincs megadva
- Gáz:nincs megadva
- Csatorna:nincs megadva
- Kapcsolatfelvétel

Jenei Szilvia
+36-(20)-203-8566
Mondd meg a hirdetőnek, hogy a megveszLAK-on találtad a hirdetést.
Hitel ajánlatok
Ingatlan hirdetés leírása
Felújítás alatt álló, kertkapcsolatos lakások eladók Veresegyh...
Felújítás alatt álló, kertkapcsolatos lakások eladók Veresegyházon!
Eladásra kínálok egy kétlakásos társasház földszinti és emeleti lakását Veresegyházon, a vasúti megálló közelében, csendes, jól megközelíthető környezetben.
Az ingatlan egy 400 m²-es telken helyezkedik el. a ház teljes körű felújítás alatt áll:
✔ új tetőszerkezet
✔ 10 cm külső hőszigetelés
✔ modern, energia hatékony műszaki megoldások
Várható költözés: 2026. Április
Műszaki tartalom:
• hőszivattyús rendszer
• teljes padlófűtés
• klíma minden lakásban
• korszerű, energia hatékony kialakítás
Kertkapcsolat:
Mindkét lakáshoz kb. 200 M² saját kertrész tartozik.
A kerítés a ház sarkával egy vonalba kerül kialakításra, így autóbeállási lehetőség biztosított telken belül.
A lakások a ház két oldalán helyezkednek el, teljesen külön bejárattal, ügyvéd általi megosztással.
Amit kínálunk:
✔ praktikus térkialakítás
✔ modern, energiatakarékos műszaki megoldások
✔ saját kertkapcsolat
✔ klíma a lakásokban
✔ egyedi igények figyelembe vétele a kivitelezés során
Ideális választás családoknak, első otthonnak vagy akár befektetésnek is.
Várom hívását a hét bármely napján. FIX 3% lakáshitelre megvehető
Tetszett ez az eladó Veresegyházi felújított 2 szobás tégla lakás? Hívd fel a hirdetőt most, és tudj meg mindent erről az eladó tégla lakásról! Ha gondolod nézelődj tovább az eladó lakás Veresegyház oldal hirdetései között. Ennek az eladó lakásnak az ára 69990000 Ft és mivel az alapterülete 62 négyzetméter, ezért az átlagos négyzetméterára 1128871 HUF/m2.
Az eladó lakások menüpontban további hirdetések között is böngészhetsz. Ha van kedved, akkor böngészhetsz a Jenei Szilvia összes hirdetése között, vagy akár a/az GDN Ingatlanhálózat összes hirdetése között is.

