Eladó új építésű lakás Zamárdi
| Kedvencbe | Megosztás | Árfigyelő |
| Kedvezményes lakáshitel ajánlatok | ||
| 144 190 000 HUF | ||
Ingatlan adatai
- Eladó vagy kiadó:Eladó
- Település:Zamárdi
- Kategória:Lakás
- Alkategória:Tégla
- Alapterület:90 m2
- Csere is:Nem
- Hirdető:Cég
- Élő videón megtekinthető:Nem
- Szobaszám:3
- Állapot:Új építésű
- Hány szintes az ingatlan:2 szintes
- Komfortosság:nincs megadva
- Hányadik emeleti:Földszint
- Lift:Van
- Parkolási lehetőség:Beállóban
- Fűtés:nincs megadva
- Bútorozottság:nincs megadva
- Fényviszony:nincs megadva
- Tájolás:nincs megadva
- Kilátás:nincs megadva
- Internet:nincs megadva
- Akadálymentesített:Akadálymentesített
- Energiatanúsítvány:nincs megadva
- Villany:nincs megadva
- Víz:nincs megadva
- Gáz:nincs megadva
- Csatorna:nincs megadva
- Üzenetküldés
- Hívás


Hitel ajánlat
Ingatlan hirdetés leírása
Prémium lakásokat kínálunk megvételre Zamárdi szívében, a Bala...
Prémium lakásokat kínálunk megvételre Zamárdi szívében, a Balaton partjától mindössze 100 m távolságra.A lakások terasszal, kertkapcsolattal, napozó terasszal, autó beállóval + autótöltési lehetőséggel, tárolóval épülnek.
A házban 8 személyes felvonó működik, az épület akadálymentesített.
Az udvar parkosított.
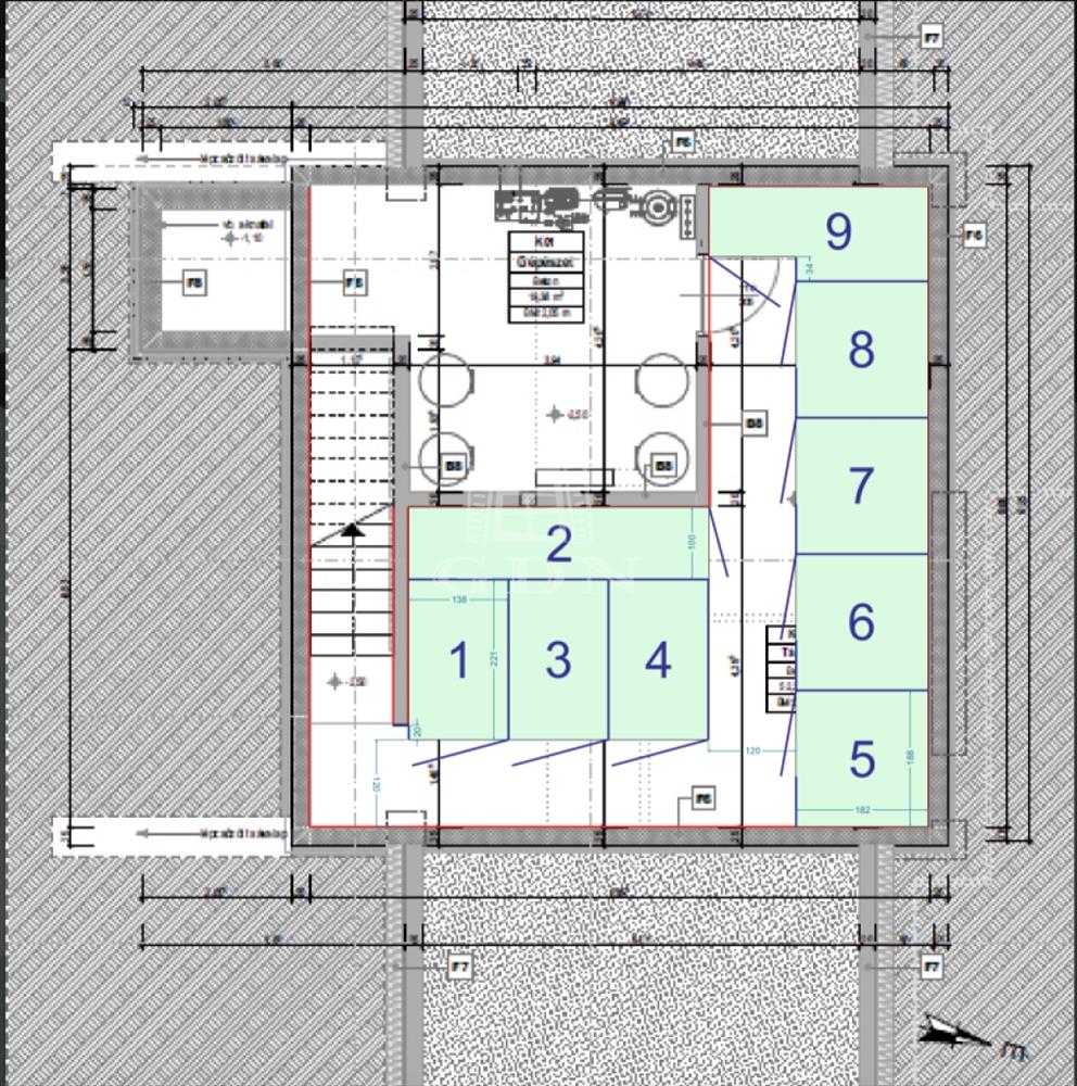
Az ingatlanban 9 db lakás épül.
Földszint 1-es lakás beosztása és vételára:
- Nappali 20, 88 nm,
- Konyha+étkező 10, 77 nm,
- Gardrób 7, 66 nm,
- Szoba 10, 92 nm,
- Szoba 10, 92 nm,
- Fürdőszoba 4, 38 nm,
- wc 1, 18 nm,
-------------------------------
Lakás nettó alapterülete: 66, 71 nm
+ Terasz 12 nm,
+ Saját kertrész 104 nm,
+ Tároló 3, 24 nm,
+ Napozó terasz 10, 32 nm,
+ Autó beálló 20, 47 nm,
--------------------------------
Összesen: 144. 190. 000 Ft
Az ingatlan ideális választás mindazok számára, akik modern, energiatakarékos otthont, illetve hosszú távon is értékálló befektetést keresnek a Balaton közvetlen közelében.
Főbb jellemzők:
•Letisztult, modern megjelenés, magas színvonalú kivitelezés
•A+++ energiaosztály – alacsony rezsiköltség, fenntartható működés
•Már csak 7 apartman, különböző méretekben, átgondolt alaprajzokkal
Műszaki tartalom:
- vasbeton tartószerkezet, külső falak 25 cm silka tégla+ 30 cm Multipor szigetelés, belső válaszfalak 12 cm,
- 3 rétegű fehér nyílászáró + elektromos alumínium redőny+
szunyogháló ( távolról vezérelhető)
- többponton záródó bejárati ajtók + elegáns kilincsgarnitúra,
- minden lakás saját főmérővel rendelkezik 1x 32 a kapacitással,
- tv+ lan csatlakozó, riasztó előkészítés,
- Napelemekkel működő hőszivattyú rendszere biztosítja a hűtést-fűtést
( fan-coil), melegvíz ellátást, közös területek, felvonó áramellátását,
elektromos autó töltést,
- egyedi hőmennyiségmérők + programozható szobatermosztátok,
- a lakások előkészítve vannak okosotthon rendszerek teljes skálájára.
Birtokbaadás 2 hónap
Irodánk 30 éves szakmai tapasztalattal áll ügyfelei rendelkezésére!
Várom szíves megkeresését! Hitel.hu - Hasonlítsa össze a bankok lakáshitel ajánlatait

