- >>
- eladó ingatlanok
- >>
- eladó telek
- >>
- eladó telek Budapest XIV. kerület
- >>
Eladó telek - Budapest XIV. kerület
| | |||
| Kedvencnek jelölöm | Elküldöm emailben | Megosztás | Szavazás |
| Kedvezményes lakáshitel ajánlatok | |||
| 480 000 000 HUF | |||
Ingatlan adatai
- Eladó vagy kiadó:Eladó
- Település:Budapest XIV. kerület
- Kategória:Telek
- Alkategória:Egyéb
- Alapterület:nincs megadva
- Telekterület:1077 m2
- Csere is:Nem
- Hirdető:Cég
- Élő videón megtekinthető:Nem
- Villany:Van
- Víz:nincs megadva
- Gáz:Van
- Csatorna:Van
- Üzenetküldés
- Hívás


Hitel ajánlat
Ingatlan hirdetés leírása
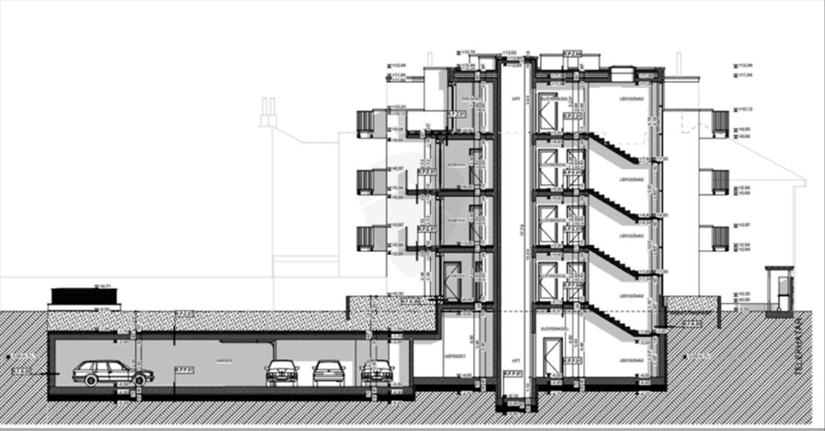
Megvételre kínálunk páratlan lehetőséget Zugló frekventált rés...
Megvételre kínálunk páratlan lehetőséget Zugló frekventált részén, Alsórákoson.Eladó egy 1077 nm-es építési telek, melyre már elkészült és érvényes építési engedély áll rendelkezésre egy 13 lakásos társasház és hozzá tartozó 13 állásos mélygarázs megvalósítására.
A projekt fő paraméterei:
- Földszint + 3 emelet.
- Összesen 13 lakás alakítható ki.
- 13 Gépkocsi-beállós mélygarázs.
- Teljes hasznos alapterület: 1399 m², nettó eladható lakás négyzetméter: 846 m².
- Teraszok és erkélyek: 203 m².
- Tárolók: 17 m².
A telek beépítetlen, növényzettel borított – az építkezés akár azonnal megkezdhető! Természetesen a további dokumentumok, mint az alaprajz, építési engedély és engedélyezési terv, rendelkezésre állnak, így minden jogi és műszaki háttér biztosított.
Az építkezés azonnal megkezdhető, mivel az engedélyezési folyamat már lezárult, így időt spórolhat a beruházással. a telek kiváló helyszín a gyorsan értékesíthető és értékálló lakások építésére, így biztosítva a projekt sikerét. Emellett ideális választás kis- és középfejlesztők számára, akik stabil hozamra számíthatnak. Hitel.hu - Hasonlítsa össze a bankok lakáshitel ajánlatait

