- >>
- eladó ingatlanok
- >>
- eladó telek
- >>
- eladó telek Miskolc
- >>
Eladó telek - Miskolc
| | |||
| Kedvencnek jelölöm | Elküldöm emailben | Megosztás | Szavazás |
| Kedvezményes lakáshitel ajánlatok | |||
| 48 900 000 HUF | |||
Ingatlan adatai
- Eladó vagy kiadó:Eladó
- Település:Miskolc
- Kategória:Telek
- Alkategória:Egyéb
- Alapterület:nincs megadva
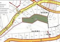
- Telekterület:7740 m2
- Csere is:Nem
- Hirdető:Cég
- Élő videón megtekinthető:Nem
- Villany:nincs megadva
- Víz:nincs megadva
- Gáz:nincs megadva
- Csatorna:nincs megadva
- Üzenetküldés
- Hívás


Hitel ajánlat
Ingatlan hirdetés leírása
Eladó építési telek Miskolc-Tapolcán – Kivételes lehetőség!
K...
Eladó építési telek Miskolc-Tapolcán – Kivételes lehetőség! Kiváló helyszínen, Miskolc-Tapolca szívében kínálunk egy 7740 m²-es telket, amely tökéletes választás álmai otthonának megépítéséhez. Az ingatlan egy privát úton megközelíthető, így biztosítva a nyugodt és csendes környezetet, közel a híres Barlangfürdőhöz és egyéb kikapcsolódási lehetőségekhez.
Közművek:
Víz: utcában
Villany: telken belül
Gáz: utcában
Szennyvíz: utcában
Szabályozási terv:
-Kertvárosias lakóterület
- Legmagasabb épületmagasság 4, 5 m
- Oldalhatáron álló beépítési mód
- Megengedett legnagyobb beépítettség 20%
- Megengedett legkisebb zöldfelület 60%
- Kialakítható legkisebb telekterület 600 m²
Kiváló befektetési lehetőség!
Ez a telek ideális választás azoknak, akik a természet közelségében, de a város kényelme mellett szeretnének élni.
Ne hagyja ki ezt a remek lehetőséget – hívjon most, és nézze meg személyesen! Hitel.hu - Hasonlítsa össze a bankok lakáshitel ajánlatait

