Eladó telek - Pilisszentiván
- INGYENES HIRDETÉS FELADÁS
Ingatlan adatai
- Eladó vagy kiadó:Eladó
- Település:Pilisszentiván
- Kategória:Telek
- Alkategória:Egyéb
- Alapterület:nincs megadva
- Telekterület:940 m2
- Csere is:Nem
- Hirdető:Cég
- Élő videón megtekinthető:Nem
- Villany:nincs megadva
- Víz:nincs megadva
- Gáz:nincs megadva
- Csatorna:nincs megadva
- Kapcsolatfelvétel

Őri Klaudia
+36202532522
Mondd meg a hirdetőnek, hogy a megveszLAK-on találtad a hirdetést.
Hitel ajánlatok
Ingatlan hirdetés leírása
Vállalkozók, befektetők figyelem! Pilisszentivánon eladó egy ...
Vállalkozók, befektetők figyelem!
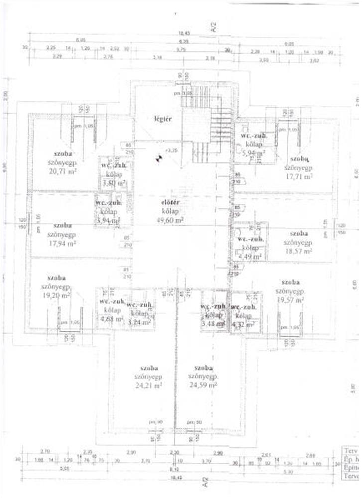
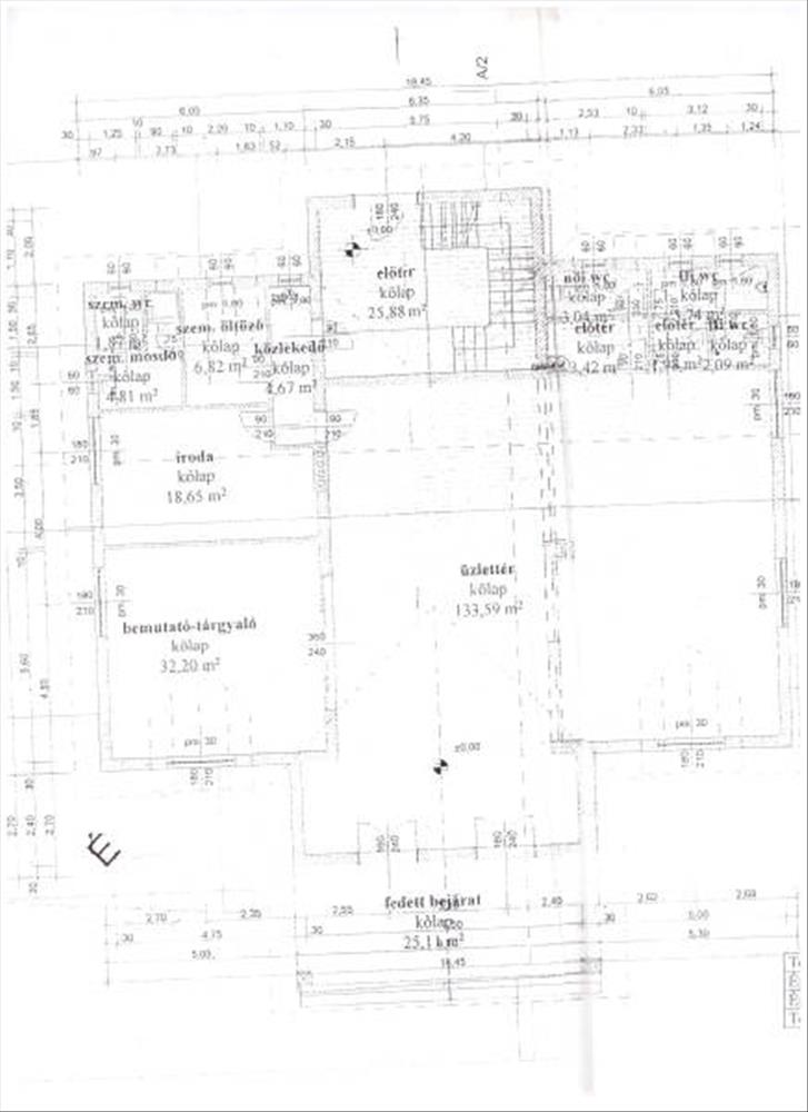
Pilisszentivánon eladó egy 940 nm -es, összközműves telek, amin van egy megkezdett építkezés. Ennek bruttó alapterülete: 296 nm . Az épület tervezett funkciója vállalkozáshoz bemutatóterem, üzlethelyiség, plusz az emeleti szinten kiadó helyiségek. a tervdokumentáció rendelkezésre áll. Az üzlethelyiség tervezése során olyan kialakítást kapott, mely esetlegesen tevékenységi kör változása esetén is több lehetőséget biztosít! Üzlettérből női, férfi vizesblokkok, személyzeti hátsó bejárat, személyzeti wc, öltöző, főzősarok, iroda, tárgyaló stb. Az emeleten külön szobák kialakítása van tervezve. Az épület alápincézésre kerül, ami már el is van kezdve. Itt egy széles lejárón lehet majd lemenni az utca felől, ahol tárolás, raktározás lehetséges. Ha lát benne fantáziát, hívjon mielőbb! ! ! Sokfajta célra hasznosítható az ingatlan (kereskedelmi, oktatási, kulturális, sport, de akár lakhatásra is). Hitel.hu - Hasonlítsa össze a bankok lakáshitel ajánlatait
Tetszett ez az eladó Pilisszentiváni telek? Hívd fel a hirdetőt most, és tudj meg mindent erről az eladó telekről! Ha gondolod nézelődj tovább az eladó telek Pilisszentiván oldal hirdetései között.
Az eladó telkek menüpontban további hirdetések között is böngészhetsz. Ha van kedved, akkor böngészhetsz a Őri Klaudia összes hirdetése között, vagy akár a/az Szőnyi Home 2020 Bt. összes hirdetése között is.

