- >>
- eladó ingatlanok
- >>
- eladó ipari ingatlan
- >>
- eladó ipari ingatlan Lengyeltóti
- >>
Eladó telephely - Lengyeltóti
| | |||
| Kedvencnek jelölöm | Elküldöm emailben | Megosztás | Szavazás |
| Kedvezményes lakáshitel ajánlatok | |||
| 235 229 992 HUF | |||
Ingatlan adatai
- Eladó vagy kiadó:Eladó
- Település:Lengyeltóti
- Kategória:Ipari ingatlan
- Alkategória:Telephely
- Alapterület:770 m2
- Telekterület:2693 m2
- Csere is:Nem
- Hirdető:Cég
- Élő videón megtekinthető:Nem
- Hány szintes az ingatlan:nincs megadva
- Hányadik emeleti:nincs megadva
- Parkolási lehetőség:nincs megadva
- Energiatanúsítvány:nincs megadva
- Villany:nincs megadva
- Víz:nincs megadva
- Gáz:nincs megadva
- Csatorna:nincs megadva
- Üzenetküldés
- Hívás


Hitel ajánlat
Ingatlan hirdetés leírása
DECEMBER 15-IG FÉLÁRON!
Üzlet- Raktár- Irodaház ELADÓAz ingatlan a Balatontót 12 km-re Lengyeltóti belterületén, forgalmas főút mellett, a 4000 lakosú kisváros központjától gyalogosan 5 percre található.
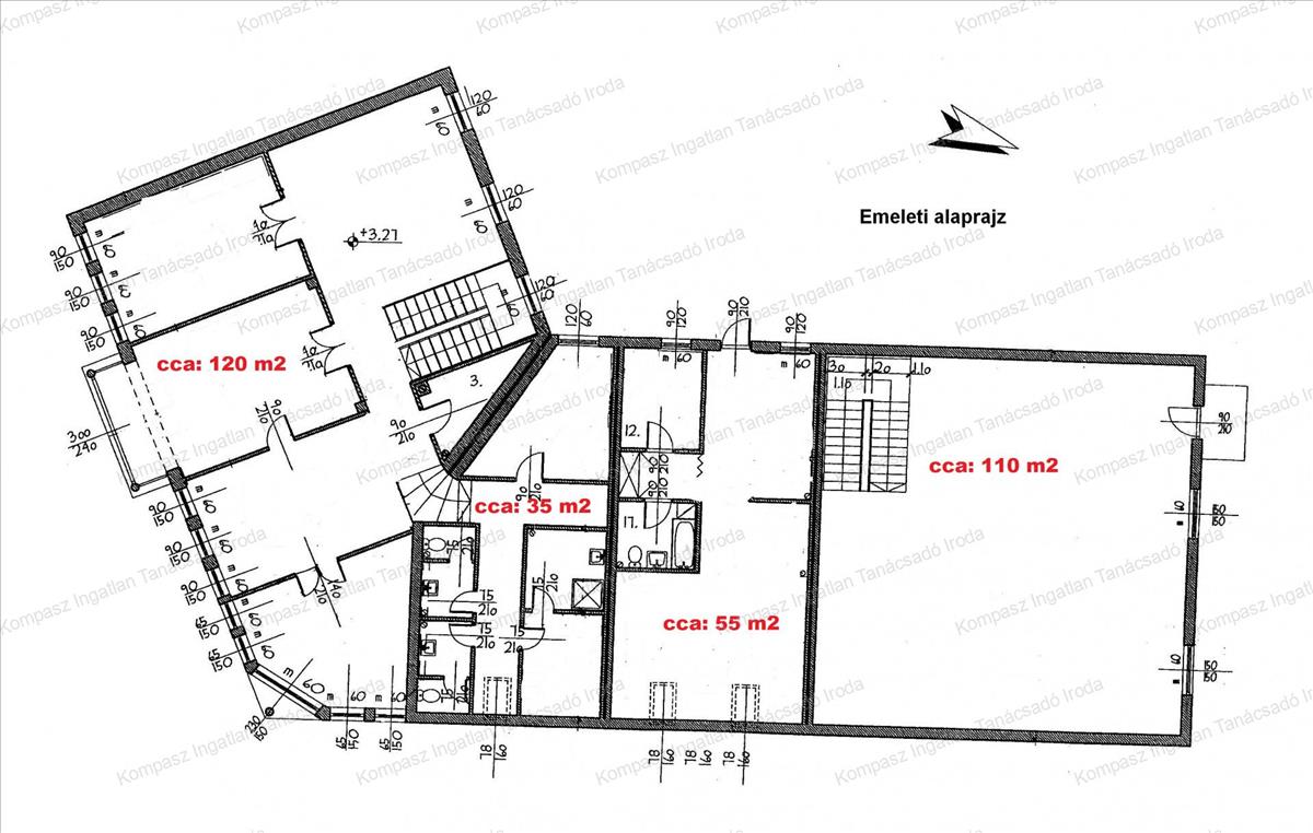
A 2639 nm telken található főépület cca 720 nm alapterületű, minden közművel ellátott, méreténél és elhelyezkedésénél fogva kereskedelmi, szolgáltató és termelő tevékenységre egyaránt hasznosítható. Az épülethez cca 50 m2 bővítmény is csatlakozik, Az épületben irodák, tárgyalók, szociális és kiszolgáló helységek raktárak és egy önálló bejárattal rendelkező lakás található. a 2002-ben épült és használatba vett épület korszerű technológiával készült.
Raktárak 340 nm, Irodák Tárgyaló 120 nm, Üzlettér 110 nm, Egyéb kiszolgáló helység 90 nm Lakás 55 nm, tároló 50 nm
A főbejárat előtt személygépkocsik számára 16 db parkoló került kialakításra, a nagykereskedelmi tevékenység végzéséhez az autómata raktárkapuk előtt 4 tehergépjárműnek is megfelelő várakozó hely áll rendelkezésre.
További fejlesztési lehetőségekre a terület nagysága biztosít lehetőséget.
Az ingatlan bármikor megtekinthető.
TISZTELT ÉRDEKLŐDŐ!
E-mailben történő érdeklődését bizalmasan kezelem, a nevet, és telefonszámot tartalmazó megkeresésre az ingatlan publikus információit tartalmazó anyagot küldök.
Az ingatlannal és a vásárlás lehetőségével kapcsolatban minden részletre kiterjedő információt -telefonos időpont egyeztetést követően-, irodánkban személyesen kaphat.
• Ha önnek fontos, hogy csak jogilag fedhetetlen, ellenőrzött, problémamentes ingatlant vásároljon,
• ha önnek fontos, hogy szakember segítse a megfelelő ingatlan felkutatásában és kedvező áron történő megvásárlásában,
• ha önnek fontos, hogy adózási-, illetékfizetési-, és jogi kérdésekben is tájékoztatást kapjon.
• Ha önnek fontos az emberközpontú szolgáltatás,
Akkor vegye fel velem a kapcsolatot
KOMPASZ ingatlan tanácsadó IRODA
A megbízható iránytű az INGATLANPIACON
Monory Gyula Hitel.hu - Hasonlítsa össze a bankok lakáshitel ajánlatait

