+ 13 fotó

Eladó telephely Szentgáloskér
| |  |
| Kedvencbe | Megosztás | Árfigyelő |
- Eladó vagy kiadó:Eladó
- Település:Szentgáloskér
- Kategória:Ipari ingatlan
- Alkategória:Telephely
- Alapterület:91 m2
- Telekterület:nincs megadva
- Csere is:Nem
- Hirdető:Cég
- Élő videón megtekinthető:Nem
- Hány szintes az ingatlan:nincs megadva
- Hányadik emeleti:Földszint
- Parkolási lehetőség:nincs megadva
- Energiatanúsítvány:nincs megadva
- Villany:nincs megadva
- Víz:nincs megadva
- Gáz:nincs megadva
- Csatorna:nincs megadva

Förgeteg Melitta
Mondd meg a hirdetőnek, hogy a megveszLAK-on találtad a hirdetést.

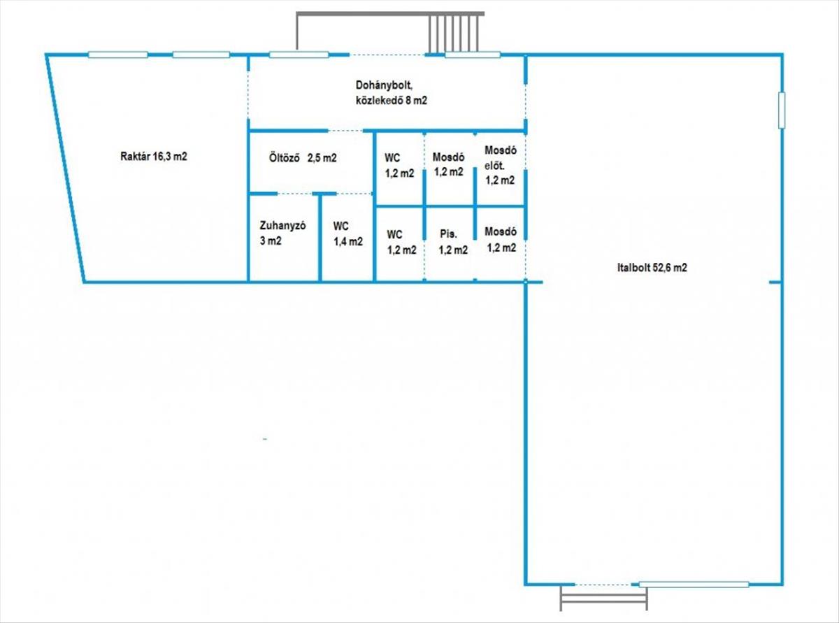
Eladó italbolt és dohánybolt!
Szentgáloskéren, Kaposvártól 20 km-re a Balaton felé kínáljuk megvételre ezt a kocsmát és a hozzá tartozó dohányboltot. Az üzlet forgalmas helyen, a főútvonal mentén, az élelmiszerbolt szomszédságában helyezkedik el, igazán jó állapotú, azonnal birtokba vehető, és az engedélyeztetést követően rögtön újra indítható. 2003-Ban lett átalakítva és felújítva, klimatizált, riasztóval felszerelt, fűtése cirkós. Szociális helyiségei mind a vendégek, mind a személyzet részére megfelelően ki lettek alakítva. Az italbolt bejárata elől, az utcafronton van, míg a dohánybolt hátul, néhány lépcsőn megközelíthető, így a két üzlet külön van, de belül a dolgozók számára átjárható. Remek lehetőség, hiszen a településen nincsen más italbolt, sem dohánybolt! Az ár a berendezést is tartalmazza!
Hitel.hu - Hasonlítsa össze a bankok lakáshitel ajánlatait Hasonló ingatlan hirdetések