Eladó termőföld, szántó - Bugyi
- INGYENES HIRDETÉS FELADÁS
Ingatlan adatai
- Eladó vagy kiadó:Eladó
- Település:Bugyi
- Kategória:Mezőgazdasági ingatlan
- Alkategória:Termőföld, szántó
- Alapterület:nincs megadva
- Telekterület:240 m2
- Csere is:Nem
- Hirdető:Cég
- Élő videón megtekinthető:Nem
- Fűtés:nincs megadva
- Bútorozottság:nincs megadva
- Fényviszony:nincs megadva
- Tájolás:nincs megadva
- Internet:nincs megadva
- Klíma:nincs megadva
- Akadálymentesített:nincs megadva
- Energiatanúsítvány:nincs megadva
- Villany:nincs megadva
- Víz:nincs megadva
- Gáz:nincs megadva
- Csatorna:nincs megadva
- Kapcsolatfelvétel

Vass Erika
+36-(20)-400-4026
Mondd meg a hirdetőnek, hogy a megveszLAK-on találtad a hirdetést.
Hitel ajánlatok
Ingatlan hirdetés leírása
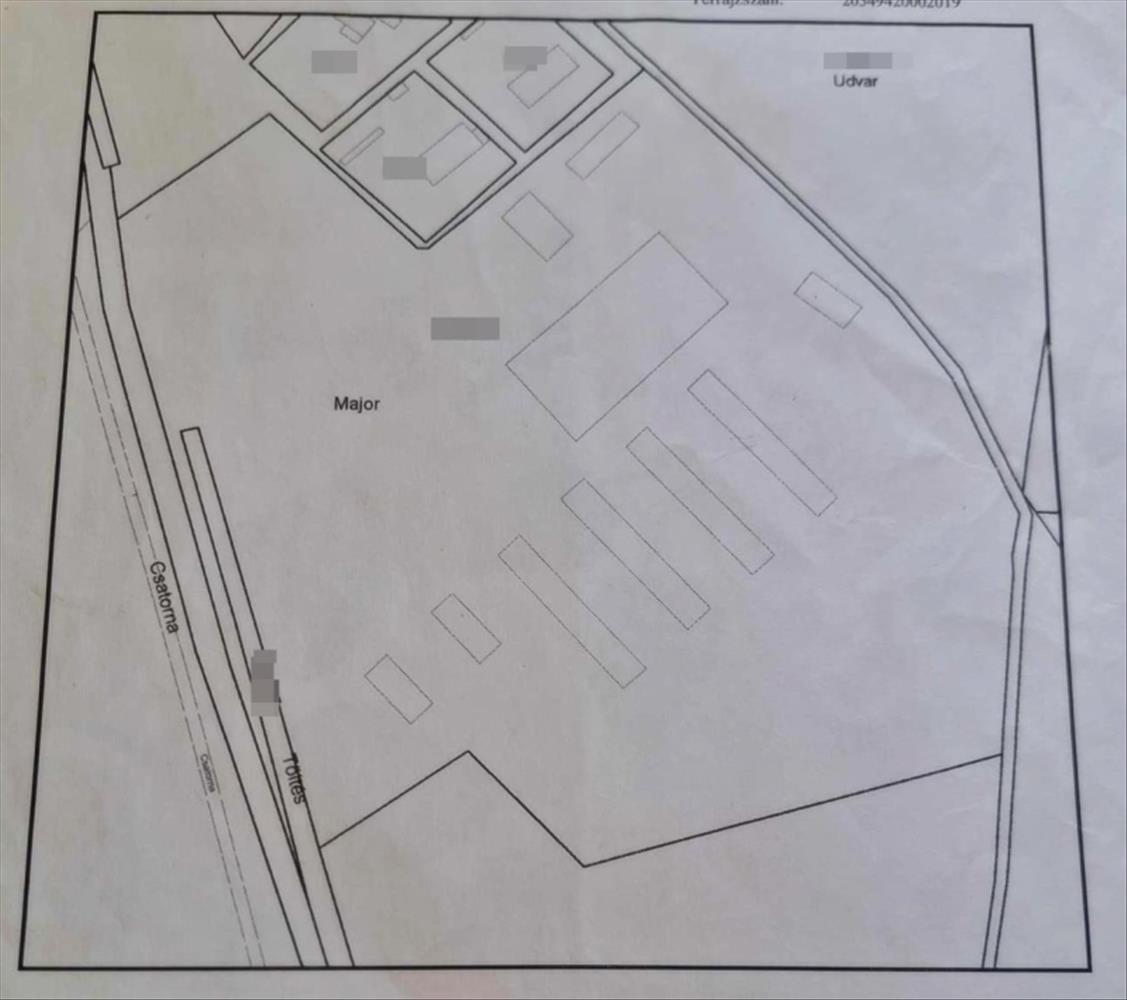
Bugyitól pár percre eladó egy több lehetőségből álló Major.Töb...
Bugyitól pár percre eladó egy több lehetőségből álló Major. Több mint 6 H területen megtalálható 3 szinten lakóépületnek kialakitható tégla építésű ház, ami szintenként 240 nm . Épületben víz, villany, zárt emésztő bevezetve. .
A területen több épület is megtalálható
Magtár:750 nm
Tető nélküli épület:2100 nm
Tároló: 4 db egyenként 620 nm
Tároló:3 db egyenként 310 nm
Ezek az épületek felújítandók. .
Sok lehetőséget rejt ez a Major mezőgazdasági, állattartásra, akár munkásszálló kialakítására, bármilyen tevékenységre kialakítható.
Beton út vezet Bugyiról Majorig, 8 perc alatt Iskola, Óvoda, vásárlási lehetőség elérhető.
Akár bútorozottan, és a tárolókban elhelyezett rengeteg bütor eszközökkel együtt.
Érdemes megnézni! Ha felkeltette érdeklődését kérem hívjon : o620/400-40-26 Vass Erika Hitel.hu - Hasonlítsa össze a bankok lakáshitel ajánlatait
Tetszett ez az eladó Bugyi mezőgazdasági ingatlan? Hívd fel a hirdetőt most, és tudj meg mindent erről az eladó mezőgazdasági ingatlanról! Ha gondolod nézelődj tovább az eladó mezőgazdasági ingatlan Bugyi oldal hirdetései között.
Az eladó mezőgazdasági ingatlanok menüpontban további hirdetések között is böngészhetsz. Ha van kedved, akkor böngészhetsz a Vass Erika összes hirdetése között, vagy akár a/az Dabas Régió összes hirdetése között is.

