Eladó újszerű állapotú nyaraló Görögország, Montepulciano
| Kedvencbe | Megosztás |
| Kedvezményes lakáshitel ajánlatok | ||
| Árért érdeklődj | ||
Ingatlan adatai
- Eladó vagy kiadó:Eladó
- Település:Montepulciano
- Kategória:Nyaraló
- Alkategória:Üdülő
- Alapterület:206 m2
- Telekterület:nincs megadva
- Csere is:Nem
- Hirdető:Cég
- Élő videón megtekinthető:Nem
- Szobaszám:nincs megadva
- Állapot:Újszerű, kitűnő
- Hány szintes az ingatlan:nincs megadva
- Tetőtér:nincs megadva
- Komfortosság:nincs megadva
- Pince:Nincs
- Parkolási lehetőség:nincs megadva
- Fűtés:nincs megadva
- Téliesített:nincs megadva
- Bútorozottság:nincs megadva
- Fényviszony:nincs megadva
- Tájolás:nincs megadva
- Kilátás:nincs megadva
- Internet:nincs megadva
- Akadálymentesített:nincs megadva
- Energiatanúsítvány:nincs megadva
- Villany:nincs megadva
- Víz:nincs megadva
- Gáz:nincs megadva
- Csatorna:nincs megadva
- Üzenetküldés
- Hívás

Eddie
Rejtett telefonszám.
Írj üzenetet a hirdetőnek.
Írj üzenetet a hirdetőnek.
Mondd meg a hirdetőnek, hogy a megveszLAK-on találtad a hirdetést.
Referencia szám: MTP2912

Hitel ajánlat
Ingatlan hirdetés leírása
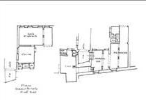
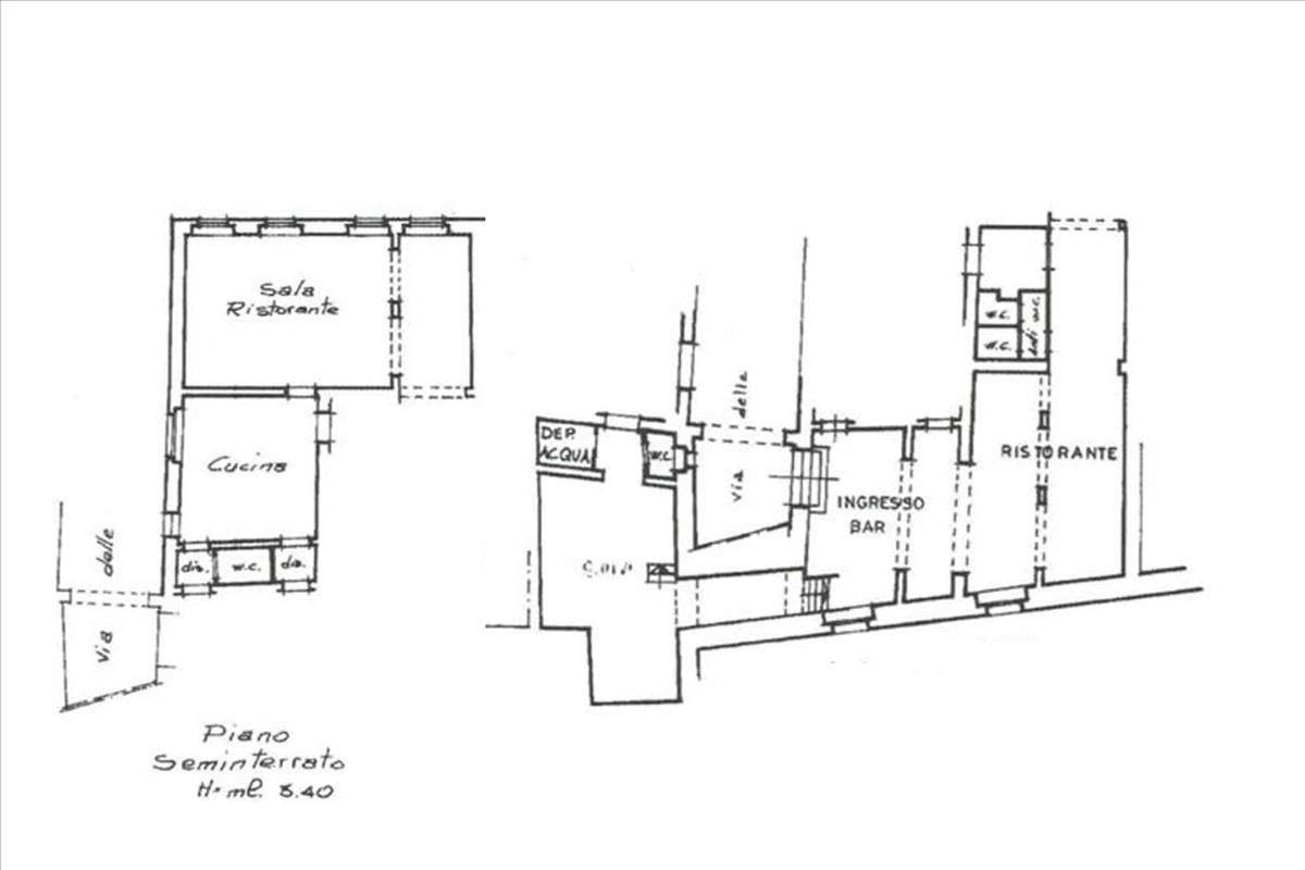
Eladó nyaraló Montepulciano
Itt találod Montepulciano történelmi belvárosának festői sikátoraiban ezt a kereskedelmi ingatlant a város egyik leghíresebb nemes palotájának pincéjében. A kínált felület 206 m²-es, több szobára osztva, és minden üzleti koncepciónak elegendő helyet biztosít.Ez a hely központi, kényelmes parkolóval és kilátással a főutcára, így te is vonzhatod a helyi és turisztikai ügyfeleket.
A környezet lenyűgöző, olyan, amit Toszkána hátországától elvársz.
Az egyik főterem kivilágított 15. századi gerendákkal és kandallóval berendezett. A pince páncélokkal és terrakotta padlóval rendelkezik, festői bejárattal megközelíthető. Legyen belőle étterem, kocsma vagy koktélbár, de te mindenekelőtt egy luxus pince Nobile város szívében.
Egyedülálló, ritka lehetőség számodra egy sikeres üzleti projekt megvalósítására Siena tartományában.
Ingatlanhivatkozás: mtp2912.
Elhelyezkedés: Montepulciano, Siena megye, Toszkána régió.
Típus: kereskedelmi ingatlan, teljes felület 206 m², két szint.
Építés éve: 1400.
Állapot: kiváló.
Elrendezés: Földszint (a főútról megközelíthető): pince, bejárat és bár, étterem és öltöző. Alagsor: étterem, folyosó és fürdőszoba.
A szolgáltatások elérhetősége és a legközelebbi repülőterek távolsága: Pertusa, Róma km. Hitel.hu - Hasonlítsa össze a bankok lakáshitel ajánlatait

