- >>
- eladó ingatlanok
- >>
- eladó telek
- >>
- eladó telek Harkány
- >>
Eladó telek - Harkány
| | |||
| Kedvencnek jelölöm | Elküldöm emailben | Megosztás | Szavazás |
| Kedvezményes lakáshitel ajánlatok | |||
| 26 700 000 HUF | |||
Ingatlan adatai
- Eladó vagy kiadó:Eladó
- Település:Harkány
- Kategória:Telek
- Alkategória:Üdülőövezeti
- Alapterület:nincs megadva
- Telekterület:222 m2
- Csere is:Nem
- Hirdető:Cég
- Élő videón megtekinthető:Nem
- Villany:nincs megadva
- Víz:nincs megadva
- Gáz:nincs megadva
- Csatorna:nincs megadva
- Üzenetküldés
- Hívás

Maratné Mészáros Edit
Mondd meg a hirdetőnek, hogy a megveszLAK-on találtad a hirdetést.
Referencia szám: M311227

Hitel ajánlat
Ingatlan hirdetés leírása
Eladó Telek, Harkány
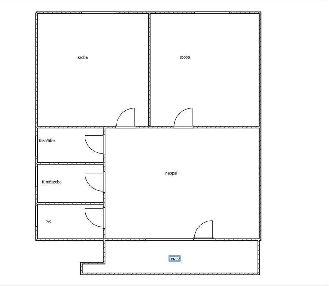
Harkányban csendes üdülőövezetben elhelyezkedő, kétszintes, iker hétvégi ház eladó. a 222 nm-es telken álló téglaépítésű ingatlan földszintjén nappali, két szoba, főzőfülke, fürdőszoba, wc és egy fedett terasz található. Az emeletre fa lépcső vezet, ahol egy erkélyes szoba kapott helyet. a ház összkomfortos, télen-nyáron lakható. 2024-Ben új kondenzációs gázkazán került beépítésre radiátoros hőleadással. a terasz ajtaja és ablaka műanyag hőszigetelt, míg a többi nyílászáró régi típusú, dupla fa keretben üvegezett. Az udvaron egy fa kisház található, amely tárolásra szolgál, valamint autóval be lehet állni az udvarba. Az ingatlan körülbelül 10 perc sétára van a Harkányi Gyógy- és Strandfürdőtől. Közeli városok, mint Pécs, Siklós és Villány, kedvező buszközlekedéssel elérhetők.Ez a ház tökéletes választás lehet azoknak, akik egy kényelmes, nyugodt, hétvégi otthont keresnek Harkány üdülő övezetében. Otthon Start Hitelprogram Ha érdekel, szívesen beszélgetünk további részletekről! Hívj bátran! M311227
Referencia szám: m311227-ml Hitel.hu - Hasonlítsa össze a bankok lakáshitel ajánlatait

