Eladó telek - Harkány
- INGYENES HIRDETÉS FELADÁS
Ingatlan adatai
- Eladó vagy kiadó:Eladó
- Település:Harkány
- Kategória:Telek
- Alkategória:Üdülőövezeti
- Alapterület:nincs megadva
- Telekterület:222 m2
- Csere is:Nem
- Hirdető:Cég
- Élő videón megtekinthető:Nem
- Villany:nincs megadva
- Víz:nincs megadva
- Gáz:nincs megadva
- Csatorna:nincs megadva
- Kapcsolatfelvétel

Szabó Ágnes
+36-(20)-509-7862
Mondd meg a hirdetőnek, hogy a megveszLAK-on találtad a hirdetést.
Referencia szám: M311227
Hitel ajánlatok
Ingatlan hirdetés leírása
Eladó ház Harkány, Eladó telek - Harkány
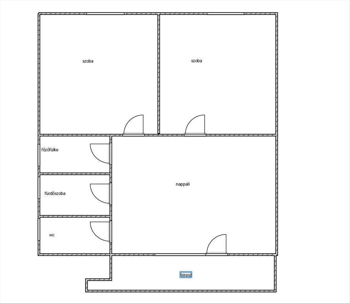
Harkányban csendes üdülőövezetben elhelyezkedő, kétszintes, iker hétvégi ház eladó. a 222 nm -es telken álló téglaépítésű ingatlan földszintjén nappali, két szoba, főzőfülke, fürdőszoba, wc és egy fedett terasz található. Az emeletre fa lépcső vezet, ahol egy erkélyes szoba kapott helyet. a ház összkomfortos, télen-nyáron lakható. 2024-Ben új kondenzációs gázkazán került beépítésre radiátoros hőleadással. a terasz ajtaja és ablaka műanyag hőszigetelt, míg a többi nyílászáró régi típusú, dupla fa keretben üvegezett. Az udvaron egy fa kisház található, amely tárolásra szolgál, valamint autóval be lehet állni az udvarba. Az ingatlan körülbelül 10 perc sétára van a Harkányi Gyógy- és Strandfürdőtől. Közeli városok, mint Pécs, Siklós és Villány, kedvező buszközlekedéssel elérhetők.
Ez a ház tökéletes választás lehet azoknak, akik egy kényelmes, nyugodt, hétvégi otthont keresnek Harkány üdülő övezetében. Ha érdekel, szívesen beszélgetünk további részletekről! Hívj bátran! M311227
Referencia szám: m311227 Hitel.hu - Hasonlítsa össze a bankok lakáshitel ajánlatait
Tetszett ez az eladó Harkányi telek? Hívd fel a hirdetőt most, és tudj meg mindent erről az eladó telekről! Ha gondolod nézelődj tovább az eladó telek Harkány oldal hirdetései között.
Az eladó telkek menüpontban további hirdetések között is böngészhetsz. Ha van kedved, akkor böngészhetsz a Szabó Ágnes összes hirdetése között, vagy akár a/az OTPip Pécs Király utca 75 - OTP Ingatlanpont Iroda összes hirdetése között is.

