Eladó telek - Lenti
- INGYENES HIRDETÉS FELADÁS
Ingatlan adatai
- Eladó vagy kiadó:Eladó
- Település:Lenti
- Kategória:Telek
- Alkategória:Üdülőövezeti
- Alapterület:nincs megadva
- Telekterület:3414 m2
- Csere is:Nem
- Hirdető:Cég
- Élő videón megtekinthető:Nem
- Villany:Van
- Víz:Van
- Gáz:Nincs
- Csatorna:Nincs
- Kapcsolatfelvétel

Laska Róbert
+36-(30)-380-0366
Mondd meg a hirdetőnek, hogy a megveszLAK-on találtad a hirdetést.
Referencia szám: 180464
Hitel ajánlatok
Ingatlan hirdetés leírása
Panoráma, nyugalom, lehetőség – Lentihegyen most a tiéd lehet
Az Openhouse Zalaegerszeg Ingatlaniroda kínálatában eladó a #180464 hivatkozási számú lenti zárt kert.
Lentihegyen panorámás zártkert eladó – nyugalom, természet, lehetőség egy helyen
Lenti egyik egyre népszerűbb, már lakott részén, a Harangláb utcában kínálunk eladásra egy igazán jó adottságokkal rendelkező zártkerti ingatlant, amely csodás, nyugati tájolású panorámával várja új tulajdonosát.
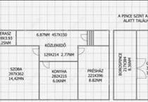
A 62 m²-es épületben jelenleg egy szoba, egy konyha, egy tágas előszoba-közlekedő, valamint egy külön présház található, amely könnyedén átalakítható akár egy második szobává vagy fürdőszobává – így az ingatlan tovább bővíthető, személyre szabható.
Az alsó szinten egy garázs és egy tároló kapott helyet, az épület folytatásában pedig egy fedett tároló vagy kocsibeálló is rendelkezésre áll.
A 3414 m²-es telek ideális választás mindazok számára, akik kertészkedni szeretnének, vagy egyszerűen csak élveznék a természet közelségét és a nyugodt környezetet.
Főbb jellemzők:
tégla épület (1976)
hullámpalás tető
kelet–nyugati tájolás
víz és villany bevezetve
gáz a telekhatáron
kályhás fűtés, villanybojleres melegvíz
aszfaltos úton könnyen megközelíthető
Az ingatlan felújítandó, de éppen ez adja meg a lehetőséget arra, hogy saját elképzeléseid szerint alakítsd ki – ráadásul már most is lakható állapotba hozható kisebb ráfordítással.
A környék igazi értéke a fekvése: a Zalai-dombság nyugati peremén, a Kerka völgyében, közel a szlovén határhoz, ahol a természet, a csend és a kikapcsolódási lehetőségek adottak. Lenti közkedvelt fürdőváros, így akár hétvégi háznak, akár állandó otthonnak is remek választás.
Fontos: zártkerti, kifüggesztéses ingatlan (30 napos eljárással).
Ha egy nyugodt, panorámás helyet keresel, ahol megvalósíthatod a saját elképzeléseidet, ezt érdemes megnézned.
Ha felkeltette érdeklődését ez az eladó lenti zárt kert, vagy bármely más zárt kert és bővebb információt szeretne, keressen bizalommal. Hivatkozási szám: #180464
Az Openhouse Zalaegerszeg Ingatlaniroda tagjaként várom Önt az országos hálózatunk teljes kínálatával.
A zárt kert vásárláshoz hitelt igényelne? Ingyenes hitelközvetítéssel segít Önnek bankfüggetlen hitelszakértőnk.
További szolgáltatásainkkal (pl. Értékbecslés, energetikai tanúsítvány, jogi háttér) is segítjük Önt a vásárlásban.
Az otthon érték. Az ingatlan üzlet.
Érd. : Laska Róbert 06305295800
Referencia szám: 180464-ml Hitel.hu - Hasonlítsa össze a bankok lakáshitel ajánlatait
Tetszett ez az eladó Lenti telek? Hívd fel a hirdetőt most, és tudj meg mindent erről az eladó telekről! Ha gondolod nézelődj tovább az eladó telek Lenti oldal hirdetései között.
Az eladó telkek menüpontban további hirdetések között is böngészhetsz. Ha van kedved, akkor böngészhetsz a Laska Róbert összes hirdetése között, vagy akár a/az Open House Openhouse Zalaegerszeg Ingatlaniroda összes hirdetése között is.

