Eladó telek - Tököl
- INGYENES HIRDETÉS FELADÁS
Ingatlan adatai
- Eladó vagy kiadó:Eladó
- Település:Tököl
- Kategória:Telek
- Alkategória:Üdülőövezeti
- Alapterület:nincs megadva
- Telekterület:1025 m2
- Csere is:Nem
- Hirdető:Cég
- Élő videón megtekinthető:Nem
- Villany:Telken belül
- Víz:Telken belül
- Gáz:Telken belül
- Csatorna:Telken belül
- Kapcsolatfelvétel

Kozák Andor
+36-30-674-6389
Mondd meg a hirdetőnek, hogy a megveszLAK-on találtad a hirdetést.
Hitel ajánlatok
Ingatlan hirdetés leírása
Tököl kedvelt, nyugodt részén eladó egy 1025 négyzetméter alap...
Tököl kedvelt, nyugodt részén eladó egy 1025 négyzetméter alapterületű, kivett beépítetlen terület besorolású építési telek, amelyhez a Fehér ház elnevezésű, teljes tervdokumentációval és érvényes építési engedéllyel rendelkező projekt tartozik.
A telek egyik legnagyobb előnye a közel 26 méteres utcafront, amely ritkaságnak számít a környéken, és ideális elrendezést tesz lehetővé akár saját célra, akár befektetési szempontból.
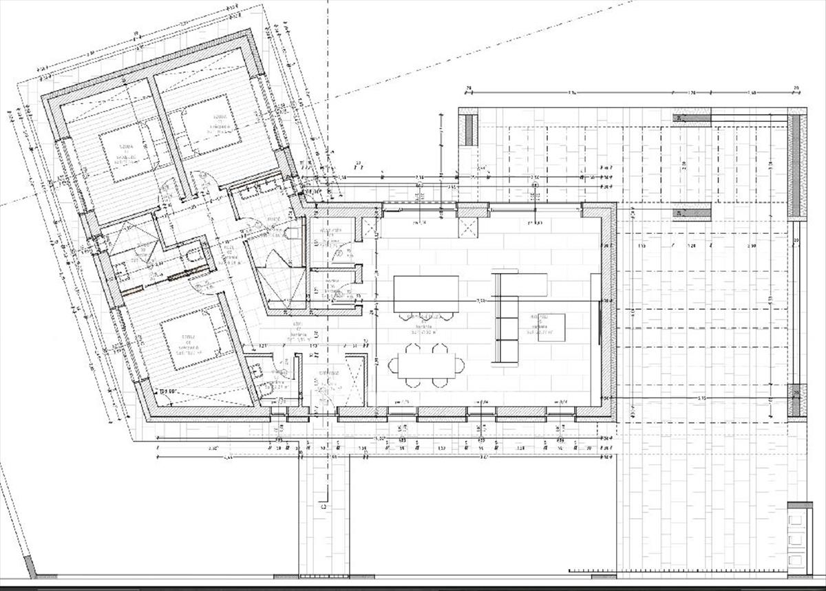
A Fehér ház egy modern, letisztult építészeti koncepció alapján készült földszintes lakóépület, amely nettó 110, 92 négyzetméter alapterülettel rendelkezik. a tervek szerint nappali-konyha-étkező egy légtérrel, három szobával és közvetlen kertkapcsolattal valósul meg. a tervezett beépített alapterület 143, 76 négyzetméter.
A telek övezeti besorolása Üh-4, amely alapján a megengedett legnagyobb beépíthetőség 15 százalék, a zöldfelületi arány minimum 70 százalék. a jelenlegi tervek ezeknek teljes mértékben megfelelnek, így a kivitelezés gyorsan és egyszerűen elindítható.
Az ingatlan kiváló választás mindazok számára, akik egy előkészített, azonnal indítható építkezési lehetőséget keresnek, de befektetőknek és kivitelezőknek is ideális, hiszen a széles utcafront és a jól alakítható telek többféle hasznosítási lehetőséget kínál.
A Fehér ház projekt különlegessége a modern megjelenés, az átgondolt alaprajz és a kertkapcsolatos nappali, amely élhető, jól értékesíthető otthont eredményez.
A vásárlást teljes körű, díjmentes tanácsadás és helyben történő, gyors és egyszerű hitelügyintézés segíti. Ne maradjon le erről a kedvező lehetőségről, érdeklődjön bizalommal. Hitel.hu - Hasonlítsa össze a bankok lakáshitel ajánlatait
Tetszett ez az eladó Tököli telek? Hívd fel a hirdetőt most, és tudj meg mindent erről az eladó telekről! Ha gondolod nézelődj tovább az eladó telek Tököl oldal hirdetései között.
Az eladó telkek menüpontban további hirdetések között is böngészhetsz. Ha van kedved, akkor böngészhetsz a Kozák Andor összes hirdetése között, vagy akár a/az Monor Kossuth Lajos utca 71 - OTP Ingatlanpont Iroda összes hirdetése között is.

