Eladó telek - Tököl
- INGYENES HIRDETÉS FELADÁS
Ingatlan adatai
- Eladó vagy kiadó:Eladó
- Település:Tököl
- Kategória:Telek
- Alkategória:Üdülőövezeti
- Alapterület:nincs megadva
- Telekterület:1045 m2
- Csere is:Nem
- Hirdető:Cég
- Élő videón megtekinthető:Nem
- Villany:Telken belül
- Víz:Telken belül
- Gáz:Telken belül
- Csatorna:Telken belül
- Kapcsolatfelvétel

Kozák Andor
+36-30-674-6389
Mondd meg a hirdetőnek, hogy a megveszLAK-on találtad a hirdetést.
Hitel ajánlatok
Ingatlan hirdetés leírása
Tököl Parkerdő egyik csendes, természetközeli részén eladó egy...
Tököl Parkerdő egyik csendes, természetközeli részén eladó egy 1045 négyzetméter alapterületű építési telek, amelyhez teljes tervdokumentáció, látványtervek és jogerős építési engedély tartozik. a telek különlegessége az elhelyezkedése: a tervezett épület nappalijából a Duna irányába nyíló kilátás érzékelhető, miközben az ingatlan nyugodt, zöld környezetben található.
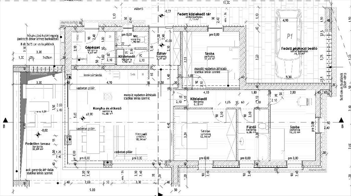
A projekt egy modern, földszintes hétvégi ház megépítésére készült. a tervek alapján egy körülbelül 130 négyzetméter nettó alapterületű, korszerű kialakítású ingatlan építhető meg, amely ideális lehet prémium hétvégi háznak vagy befektetési célú értékesítésre.
A telek 26, 14 méteres utcafronttal rendelkezik, területe 1045 négyzetméter, övezeti besorolása Üh-4. a tervezett épület földszinti bruttó alapterülete 156, 63 négyzetméter, a beépítettség megfelel a helyi szabályozásnak. a telek sík, jól kihasználható és kedvező arányú.
A villamosenergia-ellátás biztosítható 3x20 a nappali és H tarifa csatlakozással, a víz és csatorna bekötési lehetősége rendelkezésre áll. a telek könnyen megközelíthető, ugyanakkor a parkerdő közelsége és a természetközeli környezet külön értéket ad az ingatlannak.
Az ingatlan elsősorban befektetőknek és kivitelezőknek jelent kiváló lehetőséget, hiszen a projekt a szükséges engedélyekkel és tervekkel együtt kerül értékesítésre, így az építkezés azonnal megkezdhető.
A telek a teljes tervdokumentációval és látványtervekkel együtt eladó.
A vásárlást teljes körű, díjmentes tanácsadás és helyben történő, gyors és egyszerű hitelügyintézés segíti. Ne maradjon le erről a kedvező lehetőségről, érdeklődjön bizalommal. Hitel.hu - Hasonlítsa össze a bankok lakáshitel ajánlatait
Tetszett ez az eladó Tököli telek? Hívd fel a hirdetőt most, és tudj meg mindent erről az eladó telekről! Ha gondolod nézelődj tovább az eladó telek Tököl oldal hirdetései között.
Az eladó telkek menüpontban további hirdetések között is böngészhetsz. Ha van kedved, akkor böngészhetsz a Kozák Andor összes hirdetése között, vagy akár a/az Monor Kossuth Lajos utca 71 - OTP Ingatlanpont Iroda összes hirdetése között is.

