Eladó üzlethelyiség Ajka
| Kedvencbe | Megosztás | Árfigyelő |
| Kedvezményes lakáshitel ajánlatok | ||
| 49 500 000 HUF | ||
Ingatlan adatai
- Eladó vagy kiadó:Eladó
- Település:Ajka
- Kategória:Üzlethelyiség
- Alkategória:Utcafronton
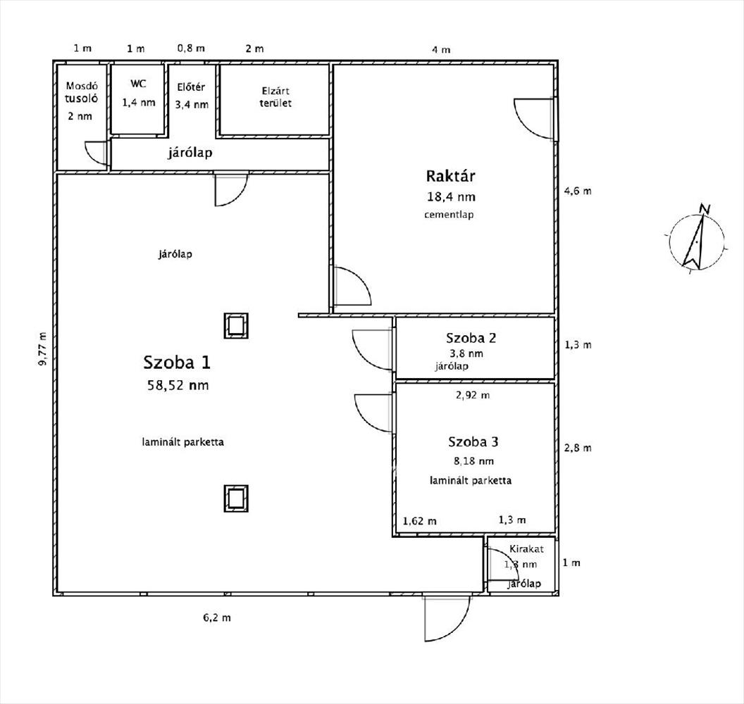
- Alapterület:97 m2
- Csere is:Nem
- Hirdető:Cég
- Élő videón megtekinthető:Nem
- Állapot:nincs megadva
- Hány szintes az ingatlan:nincs megadva
- Hányadik emeleti:nincs megadva
- Bútorozottság:nincs megadva
- Fényviszony:nincs megadva
- Tájolás:nincs megadva
- Kilátás:nincs megadva
- Internet:nincs megadva
- Akadálymentesített:nincs megadva
- Energiatanúsítvány:nincs megadva
- Üzenetküldés
- Hívás


Hitel ajánlat
Ingatlan hirdetés leírása
ÜZLETI INGATLAN ELADÓ AJKA VÁROSKÖZPONT Ajka városközpontjában...
Üzleti ingatlan eladó Ajka VÁROSKÖZPONTAjka városközpontjában, frekventált elhelyezkedéssel 97nm alapterületű üzlethelyiség tulajdonjoga eladó.
Az ingatlan a sávházban található, igényesen kialakított.
Főbb jellemzők:
97 nm hasznos alapterület
Városközponti, jól látható elhelyezkedés
Távfűtés
Igényes belső kialakítás
Azonnali használat / hasznosítás
Tulajdonjog eladó
Sokoldalú felhasználási lehetőség:
Az ingatlan kiválóan alkalmas többek között:
üzletnek
irodának
szolgáltató tevékenységre
bemutatóteremnek
befektetésnek (bérbeadás)
(A lehetséges funkciókat részletesen a Facebook tájékoztatóban mutatjuk be. )
Fontos információ:
Az eladási árat áfa terheli, ezért elsősorban vállalkozások, befektetők számára ideális lehetőség.
Érdeklődés esetén ne habozzon, hívjon:Kéri Miklós +3630 1009460
Tekintse meg az ingatlant, és tegyen vételi ajánlatot még ma. Hitel.hu - Hasonlítsa össze a bankok lakáshitel ajánlatait

