Eladó üzlethelyiség Budapest XVIII. kerület
| Kedvencbe | Megosztás | Árfigyelő |
| Kedvezményes lakáshitel ajánlatok | ||
| 199 000 000 HUF | ||
Ingatlan adatai
- Eladó vagy kiadó:Eladó
- Település:Budapest XVIII. kerület
- Kategória:Üzlethelyiség
- Alkategória:Utcafronton
- Alapterület:398 m2
- Csere is:Nem
- Hirdető:Cég
- Élő videón megtekinthető:Nem
- Állapot:nincs megadva
- Hány szintes az ingatlan:nincs megadva
- Hányadik emeleti:Földszint
- Bútorozottság:nincs megadva
- Fényviszony:nincs megadva
- Tájolás:nincs megadva
- Kilátás:nincs megadva
- Internet:nincs megadva
- Klíma:Van
- Akadálymentesített:nincs megadva
- Energiatanúsítvány:nincs megadva
- Üzenetküldés
- Hívás


Hitel ajánlat
Ingatlan hirdetés leírása
✅Sokoldalúan hasznosítható üzlethelyiség és raktárterület elad...
✅Sokoldalúan hasznosítható üzlethelyiség és raktárterület eladó a XVIII. kerület frekventált részén az Üllői úton.Irányár: 199m Ft + ÁFA
Eladásra kínálok a XVIII. kerület egyik legforgalmasabb, jól megközelíthető részén, az Üllői úton egy 980 m²-es telken elhelyezkedő, több funkciót kiszolgáló, jogilag rendezett, önálló helyrajzi számon nyilvántartott kereskedelmi ingatlant. Az ingatlan kiválóan alkalmas kereskedelmi tevékenységre, irodai működésre, raktározásra, logisztikai bázisnak vagy akár gyártói–szerelői tevékenységhez is.
Főbb paraméterek
•Telek méret: 980 m²
•Főépület: 108 m2 + 44 m2 pince; Raktár: 290 m2
•Övezeti besorolás: Vi-2 ü2 (Vegyes Intézményi Terület)
•Tulajdoni lap szerinti besorolás: kivett garázs és iroda, üzlet, raktár, udvar
•Funkció: üzlethelyiség + raktárcsarnok
•Közművek: víz, villany, gáz – mindhárom saját mérőórával
•Behajtás: kamionbehajtás megoldott
•Parkolás: belső udvari parkolóhelyek!
Épületek és helyiségkiosztás
A telken két különálló épület található: egy utcafronti, korábban lakóháznak épült, jelenleg üzletként használt főépület, valamint a telek hátsó vonalán elhelyezkedő fémszerkezetes raktárcsarnok.
1. Utcafronti főépület – 108 m² + 44m2 pince
(pince + földszint, téglából épült, jó állapotban)
Az 1970-es években épült, hőszigetelt, műanyag nyílászárókkal, drivit homlokzattal rendelkező, cserépfedésű épület.
Fűtése korszerű kondenzációs gázkazánnal, központi radiátoros rendszeren keresztül történik.
A teljes épület riasztóval és kamerarendszerrel ellátott.
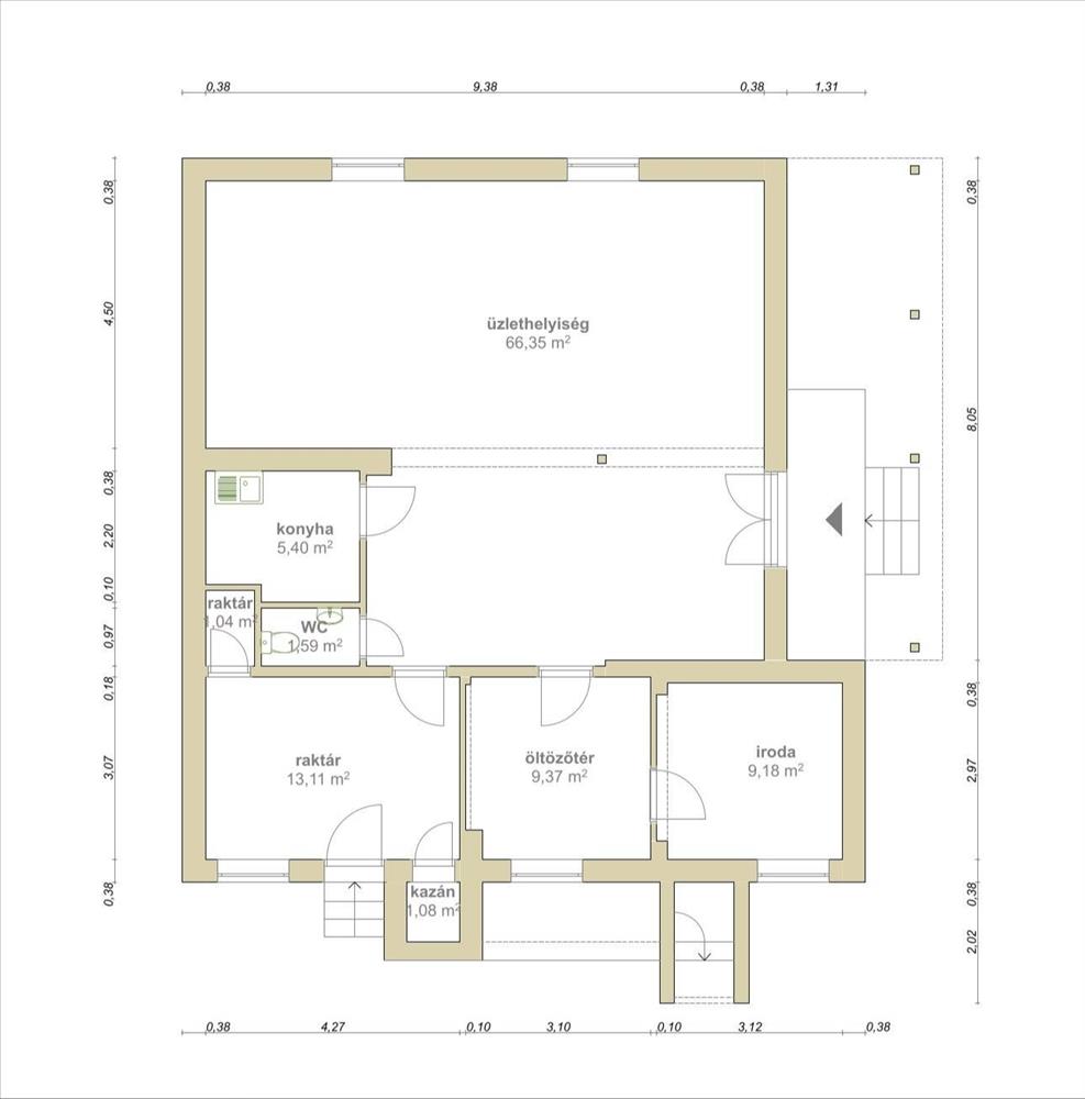
Földszint – 108 m²
•Üzlettér: 66, 35 m²
•Iroda: 9, 18 m²
•Konyha: 5, 4 m²
•Öltöző: 9, 37 m²
•Raktár: 1, 04 m²
•WC: 1, 59 m²
•Gépészeti helyiség: 1, 08 m²
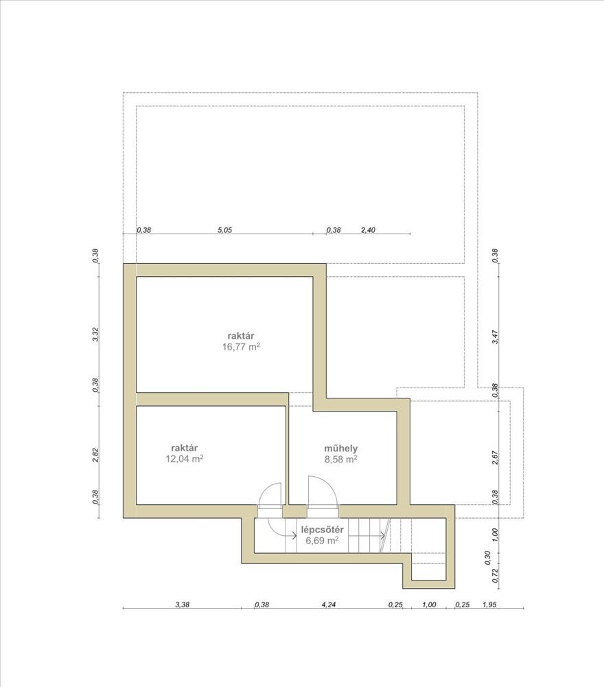
Pince – 44 m²
•Raktár 1: 16, 77 m²
•Raktár 2: 12, 04 m²
•Műhely: 8, 58 m²
•Lépcsőtér: 6, 69 m²
A pince száraz, jól használható tárolási vagy műhely célokra.
2. Fémszerkezetes raktárcsarnok – 290 m²
A telek hátsó részén elhelyezkedő, szigetelt, nagy belmagasságú, targoncázható raktárépület.
Főbb jellemzők:
•Hőszigetelt, fűtetlen, de külön, fűthető raktári iroda található benne
•Ipari polcrendszer kiépítve
•Kiválóan alkalmas logisztikai, tárolási és nagy árumozgatási tevékenységre
•Közvetlen behajtási lehetőség a raktárkapuig
Közművek, infrastruktúra, jogi helyzet
•A főépület és raktár elkülöníthető funkciókkal rendelkezik
•Az ingatlan jogilag rendezett, térképmásolaton feltüntetett, önálló egység
•Az Üllői út kiváló elhelyezkedést biztosít nagy forgalmú környezetben, gyorssztrádákhoz és repülőtérhez közel
Felhasználási lehetőségek
Ideális választás:
•Kereskedelmi központnak
•Bemutatóterem + raktár kombinációnak
•Webshop logisztikai bázisnak
•Irodának és hozzá kapcsolódó raktározásnak
•Autóalkatrész- vagy műszaki üzletnek
•Szerelőműhelynek
•Kisebb gyártóüzemnek
•Nagy mennyiséget mozgató vállalkozásoknak
A két épület és a telek mérete rendkívüli rugalmasságot biztosít a tevékenységek kombinálásában.
Ez a XVIII. kerületi, Üllői úti kereskedelmi és raktározási célokra tökéletes ingatlan ritka lehetőség a piacon.
Tágas telek, jó állapotú épületek, kiváló megközelíthetőség, kamionbehajtás, riasztó + kamera rendszer, valamint jelentős raktárkapacitás teszi kiemelkedővé.
Személyes konzultáció, piaci elemzés és tanácsadás az első alkalommal teljesen díjmentes, kötelezettség nélkül!
Ne hagyja ki ezt a kivételes lehetőséget – hívjon bizalommal, és találjuk meg együtt álmai otthonát vagy a tökéletes befektetést!
Hitelre van szüksége?
Teljes körű és díjmentes hitel ügyintézéssel, biztosításkötéssel áll rendelkezésére szakértő kollégánk. Kérje személyre szabott ajánlatunkat!
Ügyvéd? – Ingyenes tanácsadással áll rendelkezésre ingatlan szakjogászunk!
Adatbázisunkban további több ezer ingatlanból választhat, hívjon bizalommal, hogy megtaláljuk a legmegfelelőbbet!
Ne hagyja ki ezt a lehetőséget! Hitel.hu - Hasonlítsa össze a bankok lakáshitel ajánlatait

