Eladó üzlethelyiség - Mecsér
- INGYENES HIRDETÉS FELADÁS
Ingatlan adatai
- Feladva:20 napja a megveszLAK-on
- Eladó vagy kiadó:Eladó
- Település:Mecsér
- Kategória:Üzlethelyiség
- Alkategória:Utcafronton
- Alapterület:220 m2
- Csere is:Nem
- Hirdető:Cég
- Élő videón megtekinthető:Nem
- Állapot:nincs megadva
- Hány szintes az ingatlan:nincs megadva
- Hányadik emeleti:Földszint
- Bútorozottság:Bútorozott
- Fényviszony:Napfényes
- Tájolás:K
- Kilátás:Panorámás
- Internet:nincs megadva
- Klíma:nincs megadva
- Akadálymentesített:nincs megadva
- Energiatanúsítvány:nincs megadva
- Kapcsolatfelvétel

Unyatinszky-Pál Diána
+36-(70)-716-7422
Mondd meg a hirdetőnek, hogy a megveszLAK-on találtad a hirdetést.
Referencia szám: HK
Hitel ajánlatok
Ingatlan hirdetés leírása
Mosoni-Duna partjától pár lépésre, Mecséren ELADÓ PANZIÓ + 3 K...
Az Openhouse Győr - Révfalu Ingatlaniroda kínálatában eladó a #181179 hivatkozási számú mecséri családi ház.
Szigetközi családi ház + apartman komplexum – bevezetett helyszín, több épület, azonnal indítható lehetőség, valódi bevételi POTENCIÁLLAL
A Mosoni-Duna partjától pár lépésre, Mecsér csendes, zöld részén eladó egy falusi vendéglátásra kialakított, több épületből álló ingatlanegyüttes. Már működésre kialakított rendszer, komoly potenciállal!
Főépület - panzió és lakófunkció egyben:
Az 1990-ben épült, masszív szerkezetű (beton alap, 30 cm tégla falazat, vasbeton födém) épület, folyamatosan karbantartott, jó állapotban.
Földszint (145, 7 m²):
-étkező-nappali
-vendégszoba, saját fürdővel
-háztartási helyiség, teakonyha
-kialakított bár / közösségi tér
-27, 5 m²-es terasz kapcsolattal
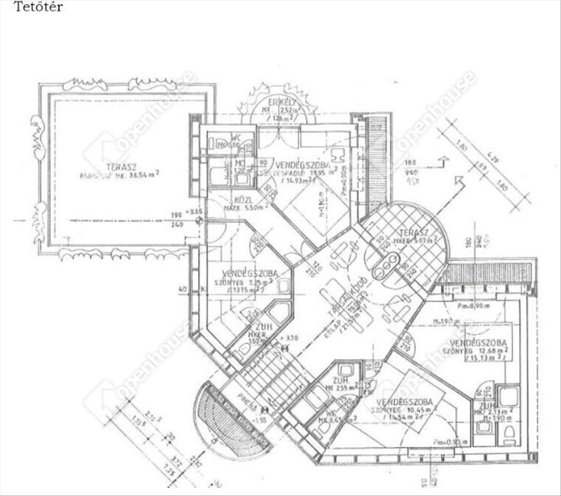
Tetőtér:
-21 m²-es társalgó
-4 db vendégszoba, saját fürdővel
-36, 5 m²-es hangulatos, fedett tetőterasz
Pince (96 m²):
-korábbi főzőkonyha
-előkészítők, technikai helyiségek
-borospince, kazánház
-3 db különálló vendégház a telken:
-külön épületek, 1996-os kivitelezés
-földszint: nappali, teakonyha, fürdő
-tetőtér: 2 szoba
-egyenként ~7 fő elszállásolására alkalmas
-fűtés: egyedi kályha
-melegvíz: villanybojler
Telek és környezet
A 2718 m²-es, sík, körbekerített telek gondozott, gyümölcsfákkal, zöldfelülettel, fúrt kúttal és tűzrakóhellyel rendelkezik. a környezet csendes, természetközeli, mégis jól megközelíthető, kiépített utcában található.
Lokáció, ami üzletileg is működik:
Mosoni-Duna: ~100 m
Lipóti termál: ~13 km
Mosonm agyaróvári termál: ~25 km
turizmus szempontból stabil, keresett térség
több épület → több bevételi láb
kialakított vendéglátó funkció
azonnal továbbvihető, vagy újragondolható koncepció
A benne rejlő lehetőségek:
-falusi vendéglátás / panzió üzemeltetés
-apartmanozás, rövid távú kiadás
-céges elvonulóhely, tréningközpont
-többgenerációs családi ingatlan
-vendégház + saját lakhatás kombináció
-turisztikai fejlesztés tovább bővíthető kapacitással
Az ilyen adottságú, komplex ingatlanok ritkán kerülnek piacra ebben a térségben!
Ha felkeltette érdeklődését ez az eladó mecséri családi ház, vagy bármely más családi ház és bővebb információt szeretne, keressen bizalommal. Hivatkozási szám: #181179
Az Openhouse Győr - Révfalu Ingatlaniroda tagjaként várom Önt az országos hálózatunk teljes kínálatával.
A családi ház vásárláshoz hitelt igényelne? Ingyenes hitelközvetítéssel segít Önnek bankfüggetlen hitelszakértőnk.
További szolgáltatásainkkal (pl. Értékbecslés, energetikai tanúsítvány, jogi háttér) is segítjük Önt a vásárlásban.
Az otthon érték. Az ingatlan üzlet. Hitel.hu - Hasonlítsa össze a bankok lakáshitel ajánlatait
Tetszett ez az eladó Mecséri üzlethelyiség? Hívd fel a hirdetőt most, és tudj meg mindent erről az eladó üzlethelyiségről! Ha gondolod nézelődj tovább az eladó üzlethelyiség Mecsér oldal hirdetései között.
Az eladó üzlethelyiségek menüpontban további hirdetések között is böngészhetsz. Ha van kedved, akkor böngészhetsz a Unyatinszky-Pál Diána összes hirdetése között, vagy akár a/az Open House Openhouse Győr - Révfalu Ingatlaniroda összes hirdetése között is.

