Eladó üzlethelyiség Vecsés
| Kedvencbe | Megosztás | Árfigyelő |
| Kedvezményes lakáshitel ajánlatok | ||
| 370 000 000 HUF | ||
Ingatlan adatai
- Eladó vagy kiadó:Eladó
- Település:Vecsés
- Kategória:Üzlethelyiség
- Alkategória:Utcafronton
- Alapterület:173 m2
- Csere is:Nem
- Hirdető:Cég
- Élő videón megtekinthető:Nem
- Állapot:nincs megadva
- Hány szintes az ingatlan:nincs megadva
- Hányadik emeleti:Földszint
- Bútorozottság:nincs megadva
- Fényviszony:nincs megadva
- Tájolás:nincs megadva
- Kilátás:nincs megadva
- Internet:nincs megadva
- Akadálymentesített:nincs megadva
- Energiatanúsítvány:nincs megadva
- Üzenetküldés
- Hívás

Referencia szám: UZ066633

Hitel ajánlat
Ingatlan hirdetés leírása
Eladó Üzlethelyiség, Vecsés
Exkluzív Üzleti Lehetőség Vecsésen, a Liszt Ferenc Repülőtér Közvetlen Közelében!BEVÉTEL, üzlet már HOLNAPTÓL!
Frekventált, forgalmas helyszín,
5 km-re a Liszt Ferenc Nemzetközi Repülőtértől
ez az üzleti ingatlan nem csak ingatlan, hanem működő, jól bejáratott vendéglátó-üzem.
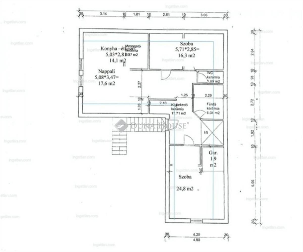
Főbb paraméterek:247 m² (2 szint + 50 m² terasz)173 m² telek
Saját 5 autós parkolóIpari áram (3×125 a) + külön trafó
Fúrt kút a gépek hűtéséhez
Teherlift az emeletre
Nagy hűtőkamra két fakkal
Jelenlegi használat:Alsó szint: cukrászda eladótérrel és vendégtérrel, cukrászüzem, fagyasztó- és hűtőkamrával
Emelet: amerikai konyhás nappali + 2 hálószoba, fürdő, wc (lakórészként is használható, de visszaalakítható üzemi részre)
Jelenlegi használat:
Alsó szint: cukrászda eladótérrel és vendégtérrel, cukrászüzem, fagyasztó- és hűtőkamrával
Emelet: amerikai konyhás nappali + 2 hálószoba, fürdő, wc (lakórészként is használható, de visszaalakítható üzemi részre)
Tiszta jogi háttér: per-, teher- és köztartozásmentes
Az emeleti rész lakásként vagy további üzemi területként is használható
Évtizedes, biztos vevők: kisker + nagyker partnerekÁtvehető márkanév, receptek, ügyfélkör, beszállítók, know-how Hitel.hu - Hasonlítsa össze a bankok lakáshitel ajánlatait

