Eladó felújítandó üzlethelyiség - Szentgyörgyvár
- INGYENES HIRDETÉS FELADÁS
Ingatlan adatai
- Feladva:6 hónapnál régebbi hirdetés
- Eladó vagy kiadó:Eladó
- Település:Szentgyörgyvár
- Kategória:Üzlethelyiség
- Alkategória:Üzletházban
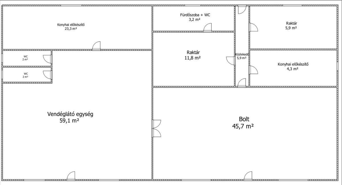
- Alapterület:163 m2
- Csere is:Nem
- Hirdető:Cég
- Élő videón megtekinthető:Nem
- Állapot:Felújítandó
- Hány szintes az ingatlan:nincs megadva
- Hányadik emeleti:nincs megadva
- Bútorozottság:nincs megadva
- Fényviszony:nincs megadva
- Tájolás:nincs megadva
- Kilátás:nincs megadva
- Internet:nincs megadva
- Klíma:nincs megadva
- Akadálymentesített:nincs megadva
- Energiatanúsítvány:nincs megadva
- Kapcsolatfelvétel

Bonczföldi Bianka
+36-(70)-428-2918
Mondd meg a hirdetőnek, hogy a megveszLAK-on találtad a hirdetést.
Hitel ajánlatok
Ingatlan hirdetés leírása
Eladó üzlethelyiség Szentgyörgyváron! Kiváló befektetés!
A lido home Keszthely eladásra kínálja a 163603292-es szentgyörgyvári ÜZLETHELYISÉG.
A lido home Keszthely által kínált szentgyörgyvári üzlethelyiség jellemzői:
- az üzlethelyiség Szentgyörgyvár központjában található
- az ingatlan 2016-ig kisboltként és kávézóként üzemelt, jelenleg azonban nincs a településen élelmiszerbolt és vendéglátó egység sem ezáltal kiváló befektetés
- a telek területe 200 m², a ház 163 m², melyhez tartozik még 3 melléképület
- az egyszintes, tégla építésű ingatlanhoz egy külső terasz is tartozik
- az ingatlan vendéglátó egységnek kialakított részén: egy 59 m²-es kávézó, egy tágas konyha, illetve konyhai előkészítő és 2 wc lett kialakítva
- a kisboltként működő részen egy 45, 7 m²-es bolt, konyhai előkészítő és 2 raktár van
- összközműves, fűtése kályhával megoldott
- jó állapotú pala teteje van
- az épületben fa nyílászárók vannak, melyek biztonsági ráccsal felszereltek
Szentgyörgyvár Hévíztől 5 km-re, a Balatontól 13 km-re a Hévíz- Balaton Repülőtértől pedig 6 km-re található csendes, nyugodt település.
Amennyiben a 163603292-es számú a lido home által kínált szentgyörgyvári üzlethelyiség, vagy bármely a kínálatunkban található ingatlan felkeltette érdeklődését, hívjon bizalommal a megadott telefonszámon.
Amennyiben ingatlant keres díjmentes keresőszolgálattal állok rendelkezésére.
Vásárolna, de nincs rá keret? Kollégám díjmentes, bank semleges hitelügyintézéssel áll rendelkezésére.
LIDO home - Ingatlanok egy életen át! Hitel.hu - Hasonlítsa össze a bankok lakáshitel ajánlatait
Tetszett ez az eladó Szentgyörgyvári felújítandó üzlethelyiség? Hívd fel a hirdetőt most, és tudj meg mindent erről az eladó üzlethelyiségről! Ha gondolod nézelődj tovább az eladó üzlethelyiség Szentgyörgyvár oldal hirdetései között.
Az eladó üzlethelyiségek menüpontban további hirdetések között is böngészhetsz. Ha van kedved, akkor böngészhetsz a Bonczföldi Bianka összes hirdetése között, vagy akár a/az Lido Home Keszthely összes hirdetése között is.

