Eladó átlagos állapotú üzlethelyiség - Budapest IX. kerület
- INGYENES HIRDETÉS FELADÁS
Ingatlan adatai
- Eladó vagy kiadó:Eladó
- Település:Budapest IX. kerület
- Kategória:Üzlethelyiség
- Alkategória:Egyéb
- Alapterület:30 m2
- Csere is:Nem
- Hirdető:Cég
- Élő videón megtekinthető:Nem
- Állapot:Átlagos állapotú
- Hány szintes az ingatlan:nincs megadva
- Hányadik emeleti:Földszint
- Bútorozottság:Bútorozatlan
- Fényviszony:nincs megadva
- Tájolás:nincs megadva
- Kilátás:nincs megadva
- Internet:nincs megadva
- Klíma:nincs megadva
- Akadálymentesített:nincs megadva
- Energiatanúsítvány:nincs megadva
- Kapcsolatfelvétel

Vass Attila
+36-(30)-526-4996
Mondd meg a hirdetőnek, hogy a megveszLAK-on találtad a hirdetést.
Hitel ajánlatok
Ingatlan hirdetés leírása
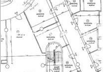
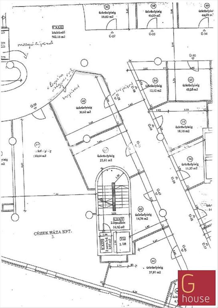
30 négyzetméteres, jó állapotú, eladó üzlethelyiség
Ez az üzlet a Duna Ház Bevásárlóközpont szíve!
A legjobb adottságokkal rendelkezik. Nagyszerű üzleti lehetőség annak, aki kevés üzemeltetési költséggel, könnyen megközelíthető tömegközlekedéssel, valamint prémium helyen, közvetlen a Duna partján szeretné elindítani, vagy működtetni vállalkozását.
Az üzlet a mozgólépcsőtől jobbra található az első emeleten. Két bejárata van. Egyedi tervezésű üvegportállal rendelkezik.
Az üzlethez a földszinten álló kirakatot adunk ajándékba. Hitel.hu - Hasonlítsa össze a bankok lakáshitel ajánlatait
Tetszett ez az eladó Budapest IX. kerületi átlagos állapotú üzlethelyiség? Hívd fel a hirdetőt most, és tudj meg mindent erről az eladó üzlethelyiségről! Ha gondolod nézelődj tovább az eladó üzlethelyiség Budapest IX. kerület oldal hirdetései között.
Az eladó üzlethelyiségek menüpontban további hirdetések között is böngészhetsz. Ha van kedved, akkor böngészhetsz a Vass Attila összes hirdetése között, vagy akár a/az Gold House Ingatlan- és Hitelcentrum összes hirdetése között is.

