Eladó üzlethelyiség - Budapest VI. kerület
- INGYENES HIRDETÉS FELADÁS
Ingatlan adatai
- Eladó vagy kiadó:Eladó
- Település:Budapest VI. kerület
- Kategória:Üzlethelyiség
- Alkategória:Egyéb
- Alapterület:331 m2
- Csere is:Nem
- Hirdető:Cég
- Élő videón megtekinthető:Nem
- Állapot:nincs megadva
- Hány szintes az ingatlan:nincs megadva
- Hányadik emeleti:nincs megadva
- Bútorozottság:nincs megadva
- Fényviszony:nincs megadva
- Tájolás:nincs megadva
- Kilátás:nincs megadva
- Internet:nincs megadva
- Klíma:nincs megadva
- Akadálymentesített:nincs megadva
- Energiatanúsítvány:nincs megadva
- Közös költség:83 000 Ft
- Kapcsolatfelvétel

Nádaski Szabina
+36-(30)-617-4042
Mondd meg a hirdetőnek, hogy a megveszLAK-on találtad a hirdetést.
Hitel ajánlatok
Ingatlan hirdetés leírása
Budapest egyik legforgalmasabb üzleti csomópontján, a Nyugati ...
Budapest egyik legforgalmasabb üzleti csomópontján, a Nyugati pályaudvar közvetlen közelében kínálunk megvételre egy 331 m² összterületű, sokoldalúan hasznosítható üzleti ingatlant.
Négyzetméterár: ~601. 000 Ft/m², amely a környék adottságaihoz és a kiemelkedő utcai megjelenéshez képest kifejezetten kedvező befektetési lehetőség.
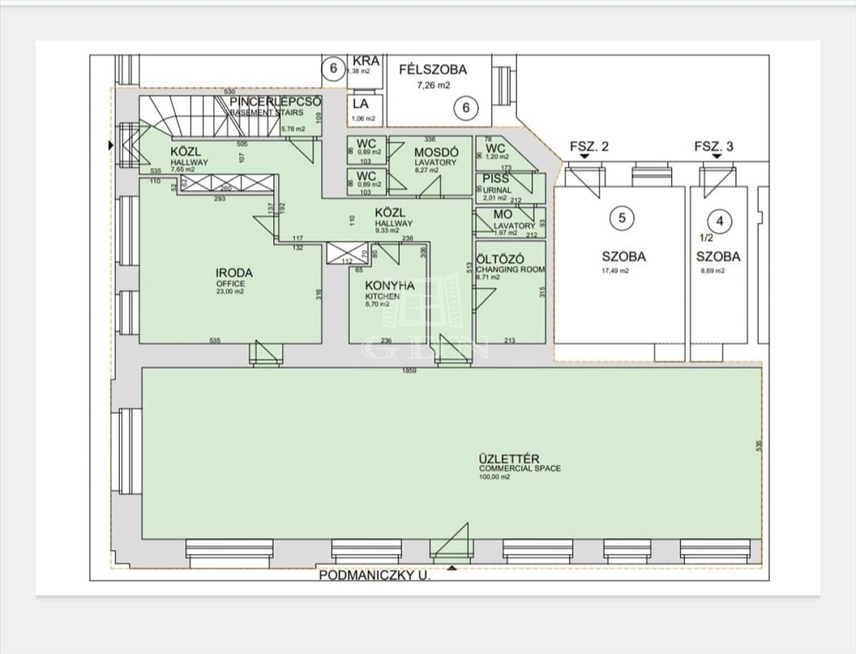
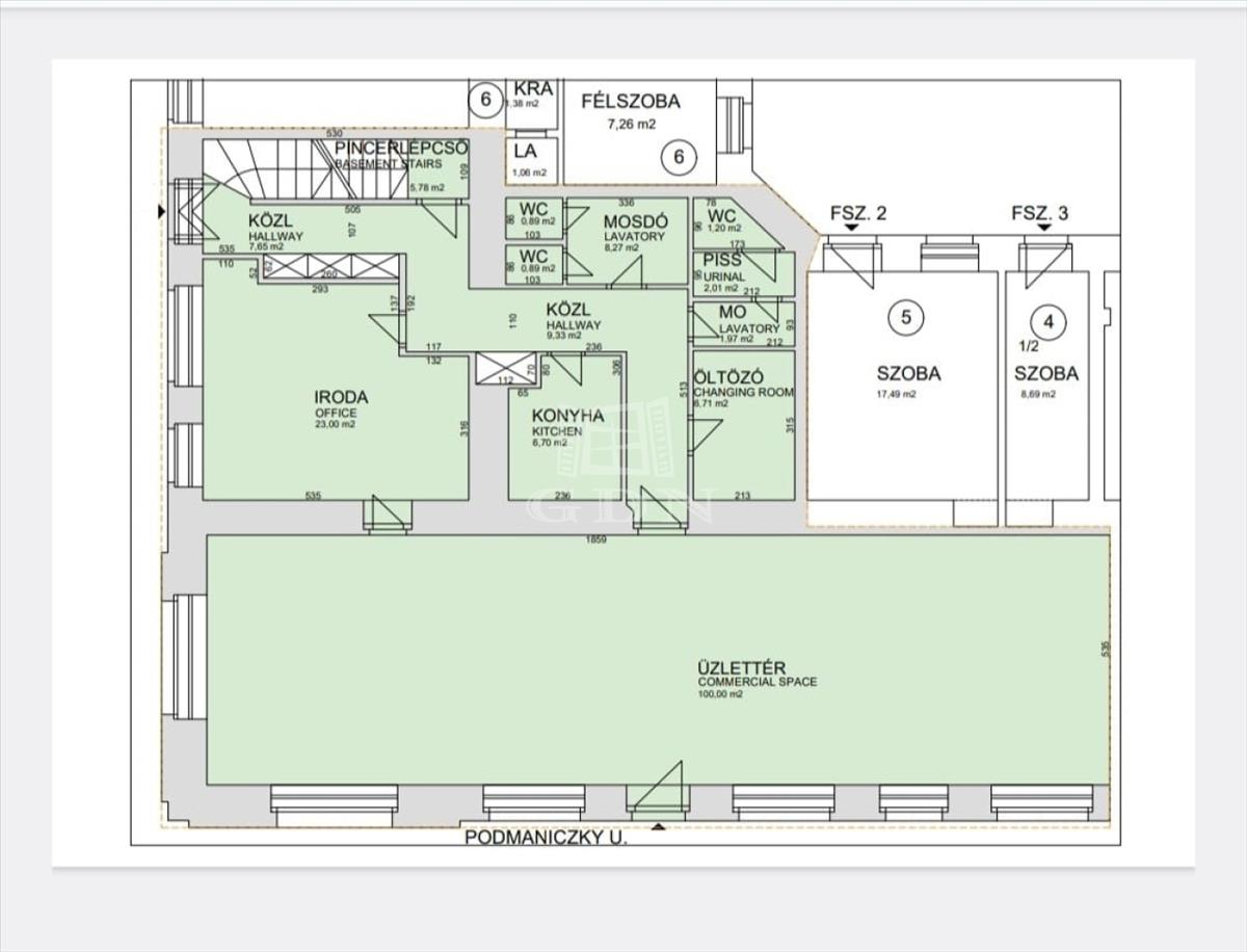
Területek megoszlása:
Földszint: 175 m²
Belső félemelet (galéria/tárgyaló): 41 m²
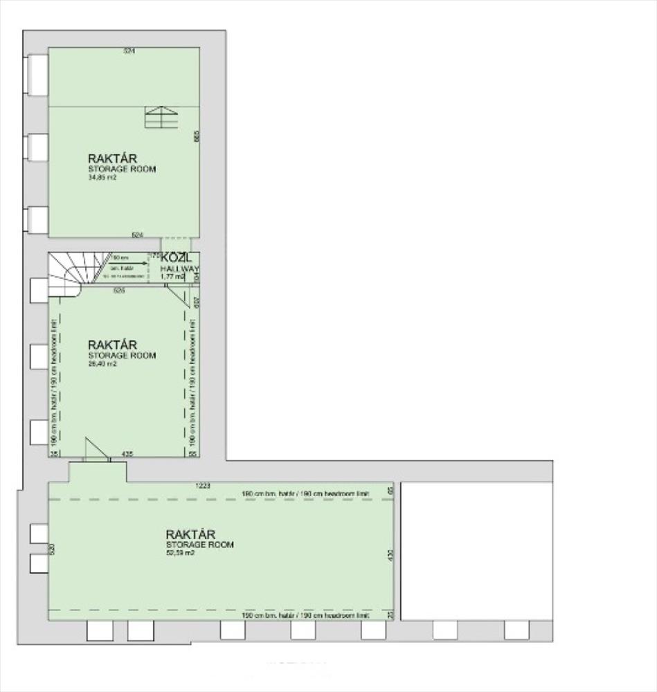
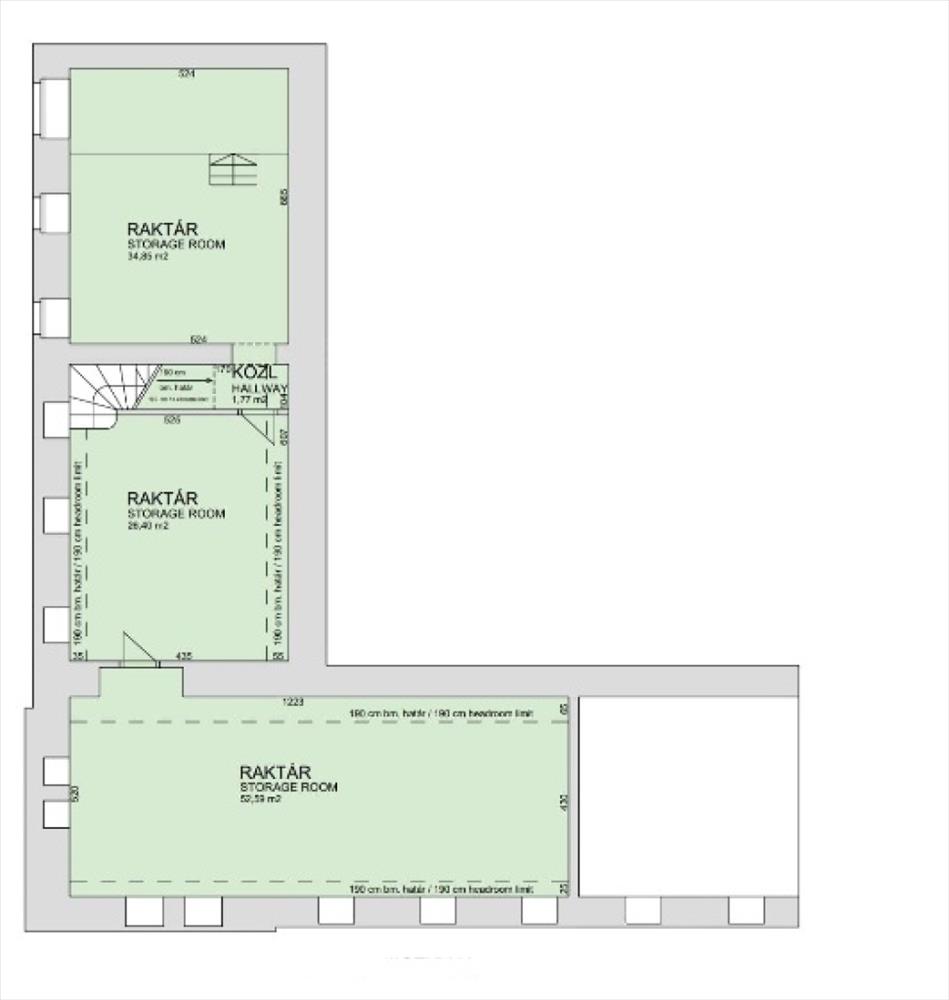
Alagsor (raktár, irattár): 115 m²
Összesen: 331 m²
Főbb jellemzők:
- Sarki elhelyezkedés, kiváló utcai jelenlét
- Két külön utcai bejárat
- Hét nagyméretű kirakati portál
- Több funkcióra bontható belső tér
- Nagy belmagasság, kiváló térérzet
Alkalmas lehet többek között:
üzlethelyiségnek, irodának, bankfióknak, cégképviseletnek, edzőteremnek, hostelnek, kulturális vagy tánctérnek, bemutatóteremnek.
Területek:
Földszint: 175 m² - reprezentatív, utcai kapcsolattal
Belső félemelet: 41 m² - téglaépítésű, teljes értékű galéria vagy tárgyaló, 2, 2 m belmagassággal, akár önálló megközelítéssel
Alagsor: 115 m² - raktár- és irattárblokkok, utcai árucsúszdával
Műszaki és egyéb információk:
- Részben klimatizált
- Kiépített kamera- és riasztórendszer
- Saját vízóra
- Elektromos áram: 3 fázis, 3×32 A
- Közös költség: 83. 000 Ft/hó
- a homlokzat 7–8 éve teljes felújításon esett át
- Rendezett társasház, stabil lakóközösség
Befektetők figyelmébe:
A környéken tervezett, állami szintű városfejlesztések – különösen a Nyugati pályaudvar átalakítása – jelentős hosszú távú értéknövekedési potenciált biztosítanak.
Az ingatlan az Andrássy út világörökségi helyszín védőövezetében helyezkedik el, Budapest műemlék jelentőségű területén található, tömegközlekedéssel is kiválóan megközelíthető.
Tulajdonjog és vásárlás:
Az ingatlan cég tulajdonában áll, megvásárolható céggel vagy cég nélkül is, az értékesítés ÁFA-mentes.
Megtekintés:
Rugalmasan, előzetes egyeztetést követően, akár hétvégén is. Hitel.hu - Hasonlítsa össze a bankok lakáshitel ajánlatait
Tetszett ez az eladó Budapest VI. kerületi üzlethelyiség? Hívd fel a hirdetőt most, és tudj meg mindent erről az eladó üzlethelyiségről! Ha gondolod nézelődj tovább az eladó üzlethelyiség Budapest VI. kerület oldal hirdetései között.
Az eladó üzlethelyiségek menüpontban további hirdetések között is böngészhetsz. Ha van kedved, akkor böngészhetsz a Nádaski Szabina összes hirdetése között, vagy akár a/az GDN Ingatlanhálózat összes hirdetése között is.

