- >>
- eladó ingatlanok
- >>
- eladó üzlethelyiség
- >>
- eladó üzlethelyiség Budapest XI. kerület
- >>
Eladó üzlethelyiség - Budapest XI. kerület
| | |||
| Kedvencnek jelölöm | Elküldöm emailben | Megosztás | Szavazás |
| Kedvezményes lakáshitel ajánlatok | |||
| 199 000 000 HUF | |||
Ingatlan adatai
- Eladó vagy kiadó:Eladó
- Település:Budapest XI. kerület
- Kategória:Üzlethelyiség
- Alkategória:Egyéb
- Alapterület:252 m2
- Csere is:Nem
- Hirdető:Cég
- Élő videón megtekinthető:Nem
- Állapot:nincs megadva
- Hány szintes az ingatlan:nincs megadva
- Hányadik emeleti:nincs megadva
- Bútorozottság:nincs megadva
- Fényviszony:nincs megadva
- Tájolás:nincs megadva
- Kilátás:nincs megadva
- Internet:nincs megadva
- Akadálymentesített:nincs megadva
- Energiatanúsítvány:nincs megadva
- Üzenetküldés
- Hívás


Hitel ajánlat
Ingatlan hirdetés leírása
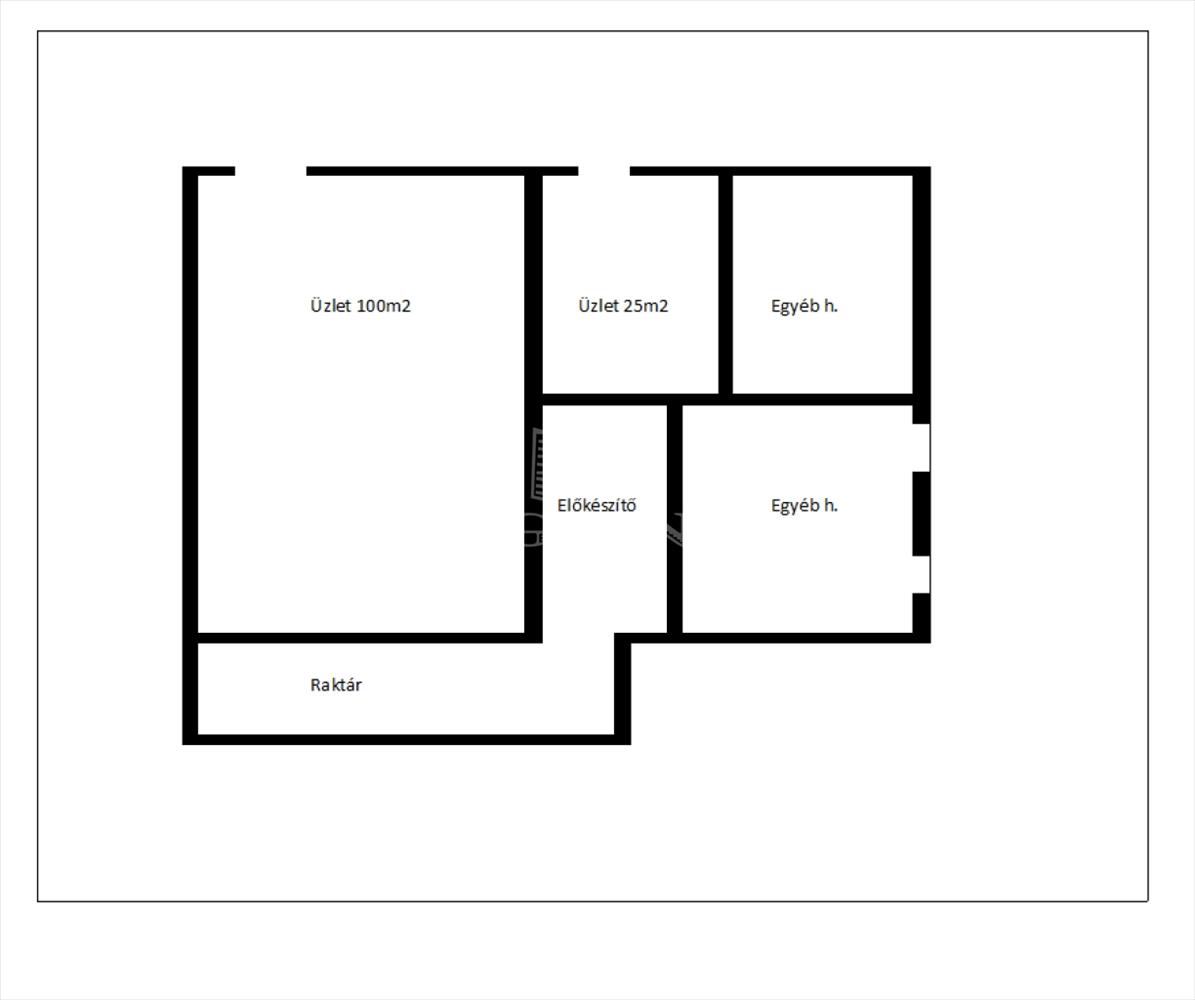
Eladó élelmiszerüzlet a XI. kerületben!
Az üzlet frekventált ...
Eladó élelmiszerüzlet a XI. kerületben! Az üzlet frekventált helyen van közel 724m2 telekterületen helyezkedik el. Jó parkolási lehetőség és közvetlen buszmegálló közelséggel rendelkezik.
Alapterület: 252m2 -270m2
•Üzlet: 120m2
•Raktár: 150m2
•Egyedi: 60m2
Az élelmiszerüzlet 35 éve folyamatos működését a bejáratott vásárlóközönség és az átmenő forgalom biztosítja.
A kereskedelmi egység nyereségesen működik, alkalmas a jelenlegi tevékenység folytatására vagy más kereskedelmi tevékenység működtetésére.
Az ingatlan fejlesztés estén ipari célű felhasználás esetén 3 – lakóingatlan estén 1 szinttel bővíthető.
Az eladási ár tartalmazza az üzletberendezését is.
Az ingatlan részletes ismertetése és bemutatása előre egyeztetett időpontban lehetséges, melyet nagyon rugalmasan kezelünk, akár hétvégén is.
Amennyiben felkeltette az érdeklődését, további kérdéseivel kapcsolatban várom jelentkezését! Hitel.hu - Hasonlítsa össze a bankok lakáshitel ajánlatait

