Eladó üzlethelyiség - Budapest XI. kerület
- INGYENES HIRDETÉS FELADÁS
Ingatlan adatai
- Feladva:4 hónapja a megveszLAK-on
- Eladó vagy kiadó:Eladó
- Település:Budapest XI. kerület
- Kategória:Üzlethelyiség
- Alkategória:Egyéb
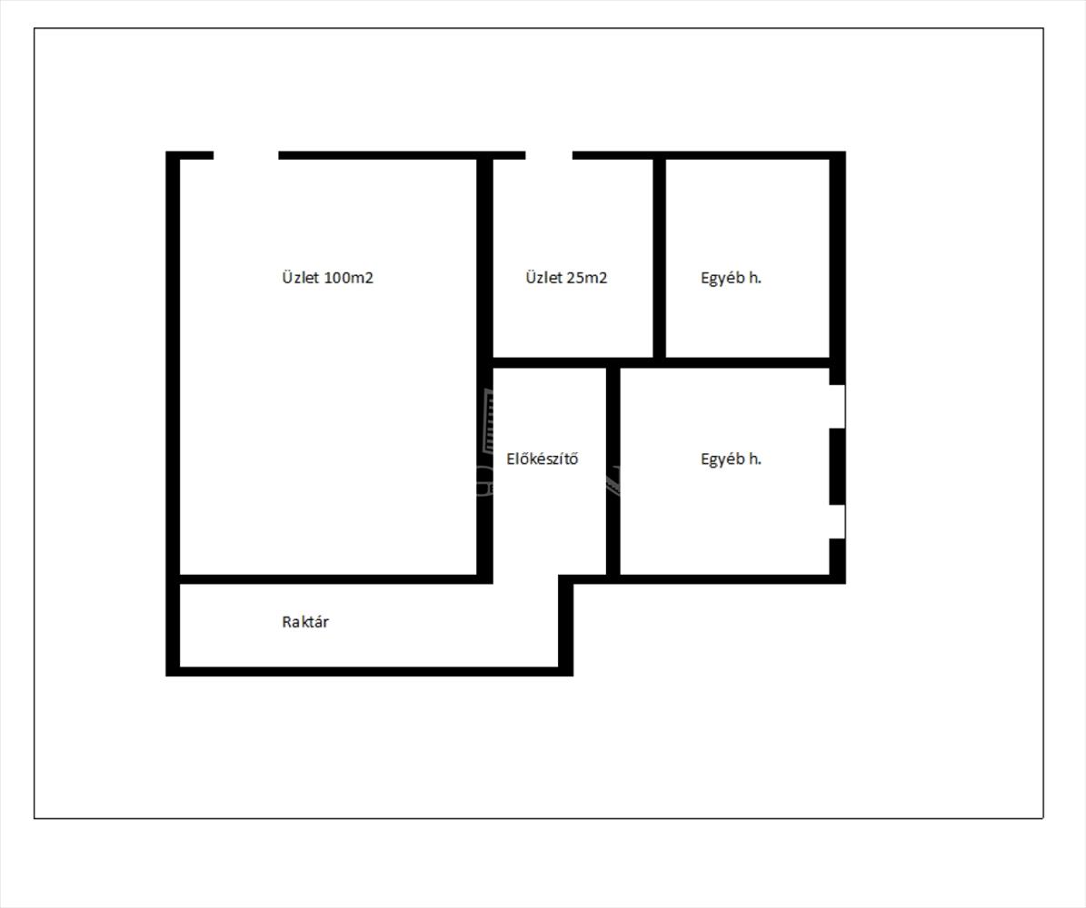
- Alapterület:252 m2
- Csere is:Nem
- Hirdető:Cég
- Élő videón megtekinthető:Nem
- Állapot:nincs megadva
- Hány szintes az ingatlan:nincs megadva
- Hányadik emeleti:nincs megadva
- Bútorozottság:nincs megadva
- Fényviszony:nincs megadva
- Tájolás:nincs megadva
- Kilátás:nincs megadva
- Internet:nincs megadva
- Klíma:nincs megadva
- Akadálymentesített:nincs megadva
- Energiatanúsítvány:nincs megadva
- Kapcsolatfelvétel

László István
+36-(30)-638-1550
Mondd meg a hirdetőnek, hogy a megveszLAK-on találtad a hirdetést.
Hitel ajánlatok
Ingatlan hirdetés leírása
Eladó élelmiszerüzlet a XI. kerületben! Az üzlet frekventált ...
Eladó élelmiszerüzlet a XI. kerületben!
Az üzlet frekventált helyen van közel 724m2 telekterületen helyezkedik el. Jó parkolási lehetőség és közvetlen buszmegálló közelséggel rendelkezik.
Alapterület: 252m2 -270m2
•Üzlet: 120m2
•Raktár: 150m2
•Egyedi: 60m2
Az élelmiszerüzlet 35 éve folyamatos működését a bejáratott vásárlóközönség és az átmenő forgalom biztosítja.
A kereskedelmi egység nyereségesen működik, alkalmas a jelenlegi tevékenység folytatására vagy más kereskedelmi tevékenység működtetésére.
Az ingatlan fejlesztés estén ipari célű felhasználás esetén 3 – lakóingatlan estén 1 szinttel bővíthető.
Az eladási ár tartalmazza az üzletberendezését is.
Az ingatlan részletes ismertetése és bemutatása előre egyeztetett időpontban lehetséges, melyet nagyon rugalmasan kezelünk, akár hétvégén is.
Amennyiben felkeltette az érdeklődését, további kérdéseivel kapcsolatban várom jelentkezését! Hitel.hu - Hasonlítsa össze a bankok lakáshitel ajánlatait
Tetszett ez az eladó Budapest XI. kerületi üzlethelyiség? Hívd fel a hirdetőt most, és tudj meg mindent erről az eladó üzlethelyiségről! Ha gondolod nézelődj tovább az eladó üzlethelyiség Budapest XI. kerület oldal hirdetései között.
Az eladó üzlethelyiségek menüpontban további hirdetések között is böngészhetsz. Ha van kedved, akkor böngészhetsz a László István összes hirdetése között, vagy akár a/az GDN Ingatlanhálózat összes hirdetése között is.

