Eladó üzlethelyiség - Gárdony
- INGYENES HIRDETÉS FELADÁS
Ingatlan adatai
- Feladva:85 napja a megveszLAK-on
- Eladó vagy kiadó:Eladó
- Település:Gárdony
- Kategória:Üzlethelyiség
- Alkategória:Egyéb
- Alapterület:128 m2
- Csere is:Nem
- Hirdető:Cég
- Élő videón megtekinthető:Nem
- Állapot:nincs megadva
- Hány szintes az ingatlan:nincs megadva
- Hányadik emeleti:nincs megadva
- Bútorozottság:nincs megadva
- Fényviszony:nincs megadva
- Tájolás:nincs megadva
- Kilátás:nincs megadva
- Internet:nincs megadva
- Klíma:nincs megadva
- Akadálymentesített:nincs megadva
- Energiatanúsítvány:nincs megadva
- Kapcsolatfelvétel

Kruller Petra
+36-(20)-583-7555
Mondd meg a hirdetőnek, hogy a megveszLAK-on találtad a hirdetést.
Hitel ajánlatok
Ingatlan hirdetés leírása
Vip-004751. Gárdonyban, a Velencei-tó partjától mindössze 100 ...
Vip-004751. Gárdonyban, a Velencei-tó partjától mindössze 100 méterre új építésű társasház földszintjén 103m2-es, utcafronti üzlethelyiség/irodahelyiség 24, 3m2-es terasszal eladó!
Az ingatlan kiváló elhelyezkedésű: mindössze 100 méterre található a Velencei-tó partjától, valamint a vasúti megálló is pár perc sétatávolságra elérhető.
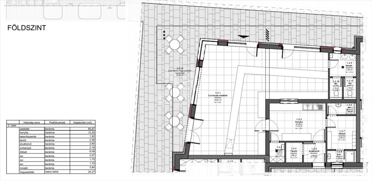
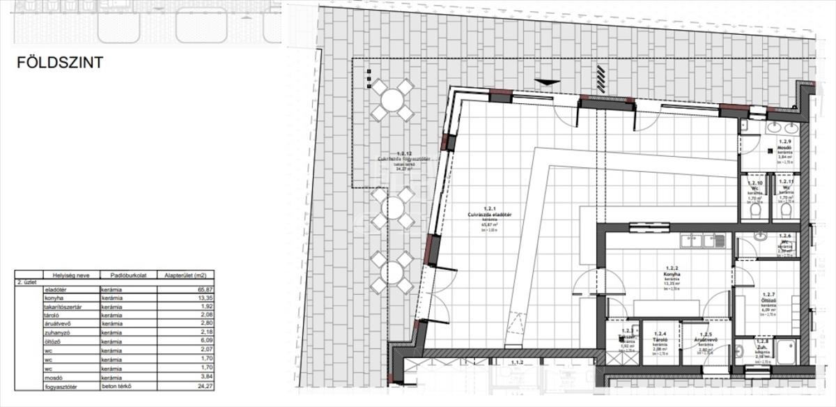
Beltéri elosztás:
Eladótér (nettó)65, 87 m²
Fogyasztótér(nettó)24, 27 m²
Konyha(nettó)13, 35 m²
Takarítószertár(nettó)1, 92 m²
Tároló(nettó)2, 08 m²
Árúátvevő(nettó)2, 80 m²
Zuhanyzó(nettó)2, 18 m²
Öltöző(nettó)6, 09 m²
WC(nettó)2, 07 m²
WC(nettó)1, 70 m²
WC(nettó)1, 70 m²
Mosdó(nettó)3, 84 m²
Összesen103, 6 m²
+ Kültér
Erkély / Terasz (nettó)24, 27 m²
Tájolása: É
Minden közmű önállóan mérhető, fogyasztás alapján fizetendő.
A fűtést hőszivattyú biztosítja padlófűtéses hőleadással, klíma előkészítés kialakított.
Ingyenes parkolási lehetőség rendelkezésre áll a társasház környezetében, illetve lehetőség van felszíni parkolóhely megvásárlására a lakópark területén 2, 5 M Ft-tól.
A társasház összesen 12 lakásból és 4 üzlethelyiségből áll –
tervezett műszaki átadás: 2026. Szeptember.
Főbb műszaki paraméterek:
– padlófűtés
– klíma előkészítés
– egyéni mérőórák
– minőségi anyagok felhasználása
– felsőkategóriás belsőépítészeti kialakítás
– motoros redőnyök
– nyílászárók 3 rétegű üveggel
– választható hideg- és melegburkolat
– cpl fóliás beltéri ajtó választható színben
(Részletes műszaki leírás kérés esetén elérhető)
Eladási ár: 130 M Ft +Áfa
Az üzlethelyiség bérelhető is, bérleti díja: 540. 000, - Ft + Áfa/ hó + rezsiköltség, illetve 2 havi kaució
Elérhető földszinti, utcafronti irodák/üzlethelyiségek melyek megvásárolhatók, vagy kibérelhetők:
1. Számú helyiség: 43m2 Eladási ára: 51. 000. 000. - Forint / Bérleti díja: 250. 000, - Ft + Áfa/ hó + rezsiköltség, illetve 2 havi kaució
2. Számú helyiség: 127, 9m2 Eladási ára: 130. 000. 000. - Forint / Bérleti díja: 540. 000, -Ft + Áfa/ hó + rezsiköltség, illetve 2 havi kaució
3. Számú helyiség: 38m2 Eladási ára: 44. 500. 000. - Forint / Bérleti díja: 220. 000, -Ft + Áfa/ hó + rezsiköltség, illetve 2 havi kaució
4. Számú helyiség: 36m2 Eladási ára: 45. 000. 000. - Forint / Bérleti díja: 250. 000, -Ft + Áfa/ hó + rezsiköltség, illetve 2 havi kaució
Ha felkeltette érdeklődését, hívja irodánkat bizalommal, éljen ingyenes, személyre szabott hitelügyintézés szolgáltatásunkkal. Segítünk továbbá adásvételhez szükséges ügyvédi közreműködésben, energetikai tanúsítvány, valamint értékbecslés elkészítésében.
For English details please send us a message or an e-mail, thank you. Hitel.hu - Hasonlítsa össze a bankok lakáshitel ajánlatait
Tetszett ez az eladó Gárdonyi üzlethelyiség? Hívd fel a hirdetőt most, és tudj meg mindent erről az eladó üzlethelyiségről! Ha gondolod nézelődj tovább az eladó üzlethelyiség Gárdony oldal hirdetései között.
Az eladó üzlethelyiségek menüpontban további hirdetések között is böngészhetsz. Ha van kedved, akkor böngészhetsz a Kruller Petra összes hirdetése között, vagy akár a/az GDN Ingatlanhálózat összes hirdetése között is.

