Eladó átlagos állapotú üzlethelyiség - Keszthely
- INGYENES HIRDETÉS FELADÁS
Ingatlan adatai
- Eladó vagy kiadó:Eladó
- Település:Keszthely
- Kategória:Üzlethelyiség
- Alkategória:Egyéb
- Alapterület:420 m2
- Csere is:Nem
- Hirdető:Cég
- Élő videón megtekinthető:Nem
- Állapot:Átlagos állapotú
- Hány szintes az ingatlan:nincs megadva
- Hányadik emeleti:Földszint
- Bútorozottság:nincs megadva
- Fényviszony:nincs megadva
- Tájolás:nincs megadva
- Kilátás:nincs megadva
- Internet:nincs megadva
- Klíma:nincs megadva
- Akadálymentesített:nincs megadva
- Energiatanúsítvány:nincs megadva
- Kapcsolatfelvétel

Visontai Ferenc
+36-(70)-282-4545
Mondd meg a hirdetőnek, hogy a megveszLAK-on találtad a hirdetést.
Hitel ajánlatok
Ingatlan hirdetés leírása
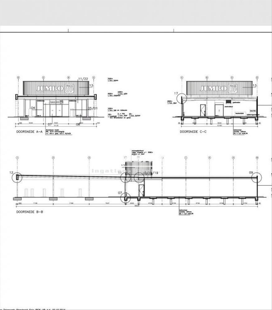
Nyugat-Európából származó, bontott, fémszerkezetes,420 m2-es c...
Nyugat-Európából származó, bontott, fémszerkezetes, 420 m2-es csarnok+300 m2-es előtetővel eladó.
Méretek:Teljes hossz. 48 M Szélesség 15 m Főépület hossza: 28 m
Főépület szélessége: 15 m
Előtetős rész hossza: 20 m
Előtetős rész szélessége: 15 m
Teljes magasság: 4 m
Az eladó értékegyeztetéssel, külön díjazással tudja vállalni a csarnok felépítését.
Ár: 37, 8 millió Ft, azaz 92. 000, - Euró
Hitel.hu - Hasonlítsa össze a bankok lakáshitel ajánlatait
Tetszett ez az eladó Keszthelyi átlagos állapotú üzlethelyiség? Hívd fel a hirdetőt most, és tudj meg mindent erről az eladó üzlethelyiségről! Ha gondolod nézelődj tovább az eladó üzlethelyiség Keszthely oldal hirdetései között.
Az eladó üzlethelyiségek menüpontban további hirdetések között is böngészhetsz. Ha van kedved, akkor böngészhetsz a Visontai Ferenc összes hirdetése között, vagy akár a/az LAKÁSKULCS - direct Ingatlan és Hiteliroda összes hirdetése között is.

