Eladó üzlethelyiség Pécel
| Kedvencbe | Megosztás | Árfigyelő |
| Kedvezményes lakáshitel ajánlatok | ||
| 40 000 000 HUF | ||
Ingatlan adatai
- Eladó vagy kiadó:Eladó
- Település:Pécel
- Kategória:Üzlethelyiség
- Alkategória:Egyéb
- Alapterület:78 m2
- Csere is:Nem
- Hirdető:Cég
- Élő videón megtekinthető:Nem
- Állapot:nincs megadva
- Hány szintes az ingatlan:nincs megadva
- Hányadik emeleti:nincs megadva
- Bútorozottság:nincs megadva
- Fényviszony:nincs megadva
- Tájolás:nincs megadva
- Kilátás:nincs megadva
- Internet:nincs megadva
- Akadálymentesített:nincs megadva
- Energiatanúsítvány:nincs megadva
- Üzenetküldés
- Hívás
Fenyvesi Marianna
Mondd meg a hirdetőnek, hogy a megveszLAK-on találtad a hirdetést.

Hitel ajánlat
Ingatlan hirdetés leírása
AKCIÓ!!!
KIVÁLÓ ÜZLETI LEHETŐSÉG!
Pécel forgalmas főútja me...
AKCIÓ! ! ! KIVÁLÓ üzleti lehetőség!
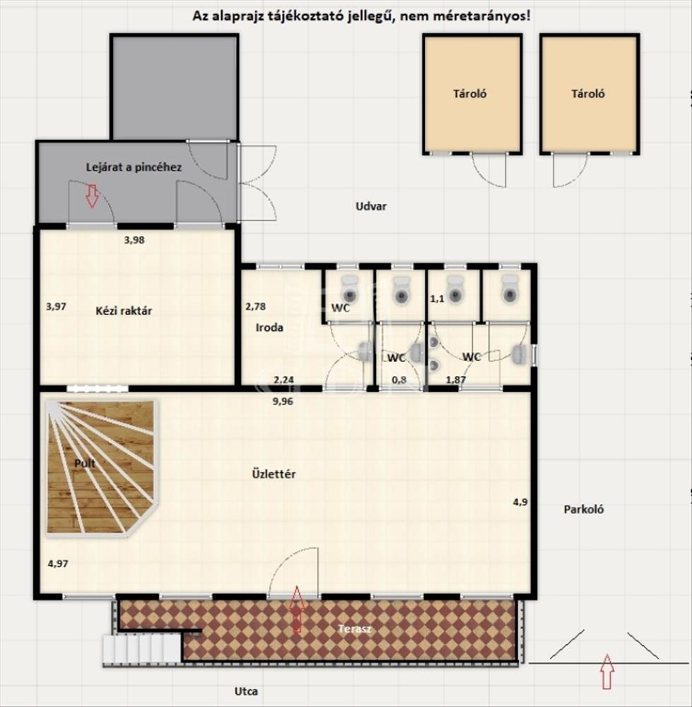
Pécel forgalmas főútja mellett, kiváló megközelíthetőséggel, eladó egy összközműves, nettó 78, 7 m², bruttó 98, 7 m² alapterületű, üzlet, 23, 8 m² terasszal.
A telek 482 m², melyen a tégla falazatú üzlet, és a 2 db beton elemekből épült tároló van.
A telek mérete lehetővé teszi, akár az áruszállító gépjárművek rakodását, és akár a Vendégek részére kialakítható parkoló építését.
A tulajdoni lapon „Kivett italbolt, gazdasági épület, udvar „ szerepel.
A fő épület az 1950 -es években épült. Falazata kisméretű tégla.
Az épület tetejét az utcafronti részen pala fedi, az udvar felől cserép. a mellékhelységek tetejét és a pincelejáró felett lévő tetőt hullámpala borítja.
A melléképületek teteje is hullámpalából készült.
A kiszolgálótér egy része és a kéziraktár alatt egy 40 m² nagyságú pince húzódik.
A külső nyílászárók, fa ablakok, rajtuk rács védelemmel.
A fűtést konvektorokkal oldják meg. a melegvizet gáz bojler adja.
Az épületet riasztó védi.
A villanyáram 3x16A.
A berendezési tárgyak nem képezik a vételár részét, de opcionálisan megvásárolhatók!
Helységlista:
-49, 5 m² üzlettér,
-15, 8 m² kézi raktár,
-6 m² iroda, melyben egy 0, 8 m² személyzeti wc van,
-2, 24 m² Női WC,
-4, 38 m² Ffi WC,
-40 m² pince,
-23, 8 m² külső terasz,
-2 db tároló,
HA szeretné újra éleszteni, az egykor kedvelt italboltot, akkor nem kell mást tennie, csak hívjon bátran.
Az ár, 27 % ÁFÁ-t tartalmaz!
Az ingatlan, per – teher – és igény MENTES! !
Ha a hirdetésem felkeltette az érdeklődését, várom a hívását!
Az ingatlan rugalmasan megtekinthető.
JÖJJÖN el, nézze meg, szeressen bele, tegyen ajánlatot!
A GDN HitelCentrum, kötelezettség mentesen és díjmentesen, versenyezteti Önért a bankok hitelajánlatait. Ismerje meg a vissza nem térítendő állami támogatásokat!
NÁLUNK személyre szabott egyedi ajánlatot kaphat!
• Babaváró,
• CSOK+
• hitel,
• megtakarítás,
• és egyéb banki tranzakcióban segítségére lehetünk!
• Igény esetén, ügyvédi segítséget nyújtunk, megfizethető áron!
Ha az ingatlannal kapcsolatban bővebb felvilágosításra lenne szüksége, hívjon bizalommal, állok rendelkezésére!
F. M Hitel.hu - Hasonlítsa össze a bankok lakáshitel ajánlatait

