Eladó üzlethelyiség Szeged
| Kedvencbe | Megosztás | Árfigyelő |
| Kedvezményes lakáshitel ajánlatok | ||
| 100 000 000 HUF | ||
Ingatlan adatai
- Eladó vagy kiadó:Eladó
- Település:Szeged
- Kategória:Üzlethelyiség
- Alkategória:Egyéb
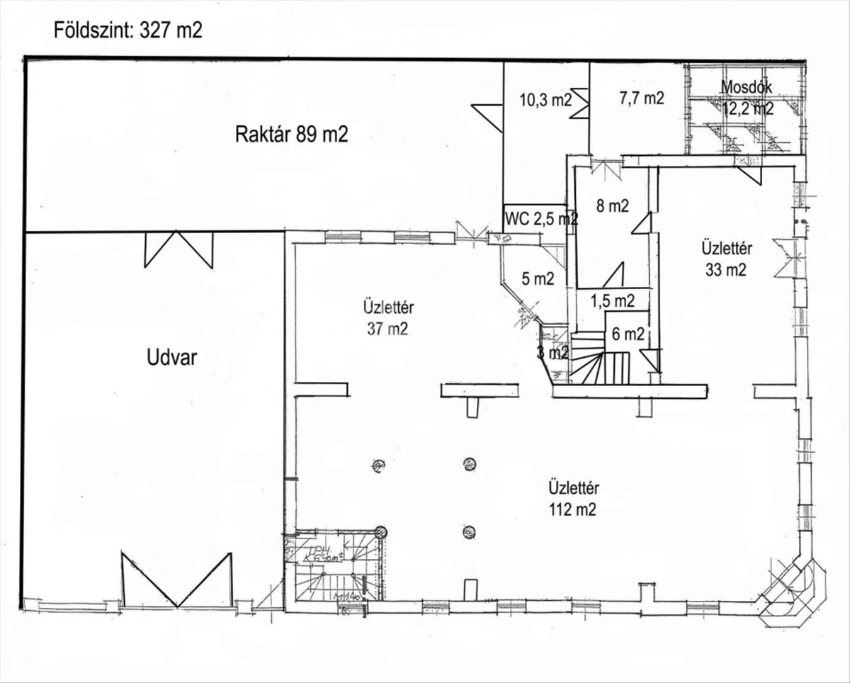
- Alapterület:500 m2
- Csere is:Nem
- Hirdető:Cég
- Élő videón megtekinthető:Nem
- Állapot:nincs megadva
- Hány szintes az ingatlan:nincs megadva
- Hányadik emeleti:nincs megadva
- Bútorozottság:nincs megadva
- Fényviszony:nincs megadva
- Tájolás:nincs megadva
- Kilátás:nincs megadva
- Internet:nincs megadva
- Akadálymentesített:nincs megadva
- Energiatanúsítvány:nincs megadva
- Üzenetküldés
- Hívás


Hitel ajánlat
Ingatlan hirdetés leírása
SZŐREGEN VÁLLALKOZÁSRA ALKALMAS 500 M2-ES INGATLAN ELADÓ!
Sző...
Szőregen vállalkozásra alkalmas 500 m2-es ingatlan ELADÓ! Szőreg központjához közel eladóvá vált egy vállakozásra alkalmas, kétszintes ingatlan. a földszinti részen egy kisebb vendéglátó egységet találunk hozzá kapcsolódó 70 fő befogadására alkalmas, tágas étterem résszel, hideg-meleg konyhával és több raktárhelyiséggel.
Az emeleten pedig egy 70 m2-es, 2 szobás lakás került kialakításra, ami bármikor kiadható, de irodaként is funkcionálhat.
Az ingatlan 2006 évben felújításra került.
A fűtésről 2 db kombi kazán gondoskodik, a hűtésről pedig klímák.
A 3 fázis bekötése megtörtént.
Az ingatlan számos lehetőséget tartogat új tulajdonosa számára legyen szó vendéglátásról, edzőteremről, bemutatóteremről vagy apartmanházról.
NÉZZE meg ajánlatunkat személyesen is! Hitel.hu - Hasonlítsa össze a bankok lakáshitel ajánlatait

