Eladó vendéglátási ingatlan - Budaörs
- INGYENES HIRDETÉS FELADÁS
Ingatlan adatai
- Eladó vagy kiadó:Eladó
- Település:Budaörs
- Kategória:Vendéglátás
- Alkategória:Egyéb
- Alapterület:nincs megadva
- Telekterület:nincs megadva
- Csere is:Nem
- Hirdető:Cég
- Élő videón megtekinthető:Nem
- Szobaszám:nincs megadva
- Hány szintes az ingatlan:nincs megadva
- Hányadik emeleti:nincs megadva
- Parkolási lehetőség:nincs megadva
- Bútorozottság:nincs megadva
- Fényviszony:nincs megadva
- Tájolás:nincs megadva
- Kilátás:nincs megadva
- Internet:nincs megadva
- Klíma:nincs megadva
- Akadálymentesített:nincs megadva
- Energiatanúsítvány:nincs megadva
- Kapcsolatfelvétel

Takács Zsuzsanna
+36-(30)-495-3819
Mondd meg a hirdetőnek, hogy a megveszLAK-on találtad a hirdetést.
Referencia szám: M322471
Hitel ajánlatok
Ingatlan hirdetés leírása
Eladó Étterem, Budaörs
Befektetők figyelem! Kiváló fejlesztési projekt Budaörs szívében!
Eladó egy 1. 515 Nm-es telken fekvő, 900 nm összterületű ingatlanegyüttes Budaörs központi részén! Az ingatlan sokoldalú hasznosítási lehetőségeivel, kiemelkedő bérleti hozamával és stratégiai elhelyezkedésével remek befektetési lehetőséget kínál.
Főbb jellemzők:
Épületek összesen: 900 nm
Elhelyezkedés: m1-m7 csomópont közelében, Budapest könnyen elérhető
Funkciók: szálló, munkásszálló, irodák, bemutatóterem, raktár
Épületek és kapacitás:
A épület: 221 nm , kétszintes szálló, 30 fő elszállásolására
B épület: Közös használatú teakonyha
C épület: 221 nm , földszintes szálló, 18 fő kapacitással
D & E épületek: Tárolók, irodák, bemutatóterem, összesen 278 nm
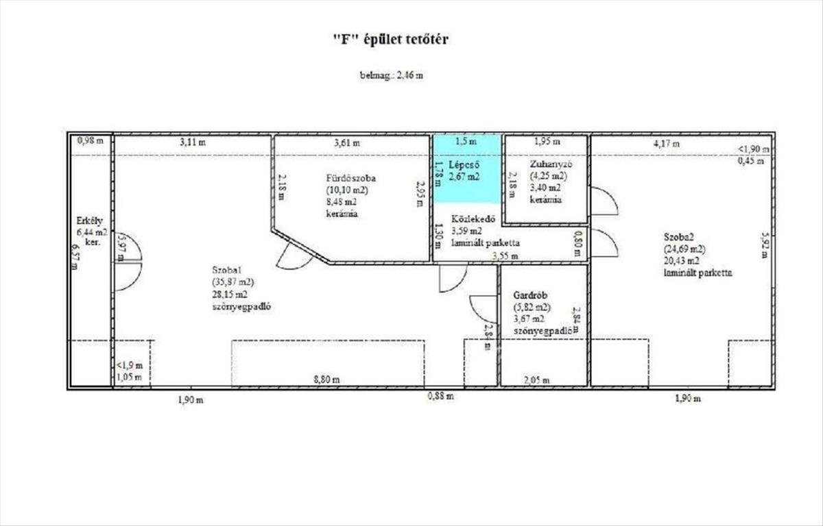
F épület: 183 nm lakóház, 12 fő befogadására, saját terasszal
Kiemelt előnyök:
Jövedelmező befektetés: az ingatlan jelenleg is bérbe van adva
Rugalmas hasznosítás: szállás, irodák, raktárak, üzleti célok
Kiváló közlekedés: buszmegálló 5 perc sétára, autópálya pár percre
Teljes közműellátottság: víz, villany, gáz, csatorna
Biztonság: kamerarendszerrel felszerelt
M322471
Az OTP Ingatlanpont, mint egyetlen közvetlen banki hátterű ingatlanközvetítő társaság teljes körű ügyintézéssel áll az eladók és a vevők rendelkezésére! a kínálatunkból választott ingatlan finanszírozásához minősített fogyasztóbarát, piaci és kedvezményes hitel- és lízingkonstrukciókat kínálunk (lakásvásárlási hitel, CSOK plusz, szabad felhasználású hitel, babaváró hitel, céges hitelek, pályázatok, amennyiben az ügyfél és az ingatlan megfelel a feltételeknek). Az adásvételi szerződés megkötéséhez igény szerint megbízható ügyvédi közreműködést biztosítunk, és segítséget nyújtunk az adásvételhez kapcsolódó egyéb ügyek intézéséhez.
Ha az új ingatlana megvásárlásához a jelenlegi ingatlanát el kell adnia, abban is szívesen segítünk.
Referencia szám: m322471-ml Hitel.hu - Hasonlítsa össze a bankok lakáshitel ajánlatait
Tetszett ez az eladó Budaörsi vendéglátási ingatlan? Hívd fel a hirdetőt most, és tudj meg mindent erről az eladó vendéglátási ingatlanról! Ha gondolod nézelődj tovább az eladó vendéglátási ingatlan Budaörs oldal hirdetései között.
Az eladó vendéglátási ingatlanok menüpontban további hirdetések között is böngészhetsz. Ha van kedved, akkor böngészhetsz a Takács Zsuzsanna összes hirdetése között, vagy akár a/az OTPip Budapest XIII. kerület Lehel utca 50 - OTP Ingatlanpont Iroda összes hirdetése között is.

