Eladó vendéglátási ingatlan Gerjen
| Kedvencbe | Megosztás | Árfigyelő |
| Kedvezményes lakáshitel ajánlatok | ||
| 75 000 000 HUF | ||
Ingatlan adatai
- Eladó vagy kiadó:Eladó
- Település:Gerjen
- Kategória:Vendéglátás
- Alkategória:Egyéb
- Alapterület:nincs megadva
- Telekterület:nincs megadva
- Csere is:Nem
- Hirdető:Cég
- Élő videón megtekinthető:Nem
- Hány szintes az ingatlan:nincs megadva
- Hányadik emeleti:nincs megadva
- Parkolási lehetőség:nincs megadva
- Bútorozottság:nincs megadva
- Fényviszony:nincs megadva
- Tájolás:nincs megadva
- Internet:nincs megadva
- Akadálymentesített:nincs megadva
- Energiatanúsítvány:nincs megadva
- Üzenetküldés
- Hívás

Referencia szám: 3620596

Hitel ajánlat
Ingatlan hirdetés leírása
Gerjenben a Duna partján, nagy lehetőségekkel teli ingatlan el...
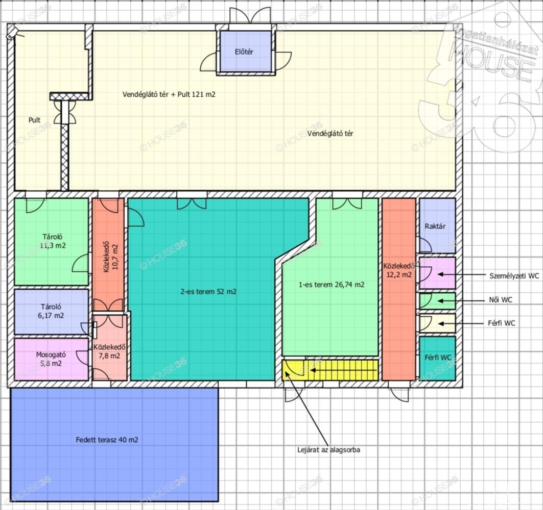
Tökéletes befektetés azok számára, akik a fejlődő Gerjenben szeretnének üzletet nyitni! Ez a 347 m2-es 2 szintes ( földszint, alagsor) ingatlan 560 m2-es telken helyezkedik el a falu központjában.Főbb jellemzők:
-kiemelt elhelyezkedés a paksi beruházások és a Kalocsa-Gerjen híd miatt
-121 m2-es vendéglátó tér és további, külön megközelíthető privát termek (27 m2 és 52 m2)
- további helyiségek: raktár, konyha, személyzeti és vendég WC-k, mosogató
-75 m2-es alagsor kazánházzal és raktárhelyiségekkel
-fűtése vegyes tüzelésű kazánról és gázkazánról, melegvíz ellátása gázbojlerrel biztosított
-2 db hűtő-fűtő klíma (2022-ben beszerelve)
-nyílászárói műanyagszerkezet, hőszigetelő üvegezéssel
-teljes felszereléssel együtt megvásárolható (hűtőkamra, hűtőpult, stb. )
-Mobilgarázs az udvaron, benne a vételárban!
Az ingatlan ideális vendéglátó egység, rendezvényközpont vagy más üzleti célra.
A house36 kínálatában található összes ingatlannal kapcsolatban tudok felvilágosítást nyújtani!
További képekért és információért hívjon bizalommal!
Szolgáltatásaink Kereső ügyfeleink számára INGYENESEK!
Az iroda legfrissebb, aktuális kínálatát a house36 saját weboldalán találja! Hitel.hu - Hasonlítsa össze a bankok lakáshitel ajánlatait

