- >>
- eladó ingatlanok
- >>
- eladó vendéglátási ingatlan
- >>
- eladó vendéglátási ingatlan Mindszentgodisa
- >>
Eladó vendéglátási ingatlan - Mindszentgodisa
| | |||
| Kedvencnek jelölöm | Elküldöm emailben | Megosztás | Szavazás |
| Kedvezményes lakáshitel ajánlatok | |||
| 15 950 000 HUF | |||
Ingatlan adatai
- Eladó vagy kiadó:Eladó
- Település:Mindszentgodisa
- Kategória:Vendéglátás
- Alkategória:Egyéb
- Alapterület:380 m2
- Telekterület:1288 m2
- Csere is:Nem
- Hirdető:Cég
- Élő videón megtekinthető:Nem
- Építés éve:1980
- Hány szintes az ingatlan:nincs megadva
- Hányadik emeleti:nincs megadva
- Parkolási lehetőség:nincs megadva
- Bútorozottság:nincs megadva
- Fényviszony:nincs megadva
- Tájolás:nincs megadva
- Internet:nincs megadva
- Akadálymentesített:nincs megadva
- Energiatanúsítvány:nincs megadva
- Üzenetküldés
- Hívás


Hitel ajánlat
Ingatlan hirdetés leírása
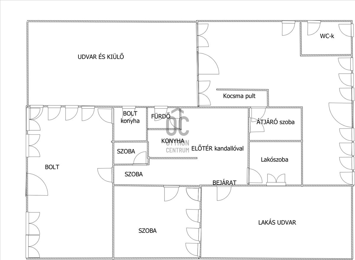
Mindszentgodisán, a templom mögött eladó két épületből álló la...
Mindszentgodisán, a templom mögött eladó két épületből álló lapostetős, 380 négyzetméteres üzlethelyiség, melyben egy lakás is kialakításra került. 1288 Négyzetméteres telken.Az üzletekben a 130 négyzetméteres kocsma, és a 120 négyzetméteres helyi bolt működött nem is olyan régen, kis kiülős helyiséggel is rendelkezik.
A hátsó részben elhelyezkedő, 90 négyzetméteres lakásban 3 és fél szoba, konyha, fürdőszoba található, egy zárt kis udvarral.
Az üzletekben a meleget vegyestüzelésű kazán szolgáltatja.
Előtte parkolók találhatók.
Igény esetén a teljes berendezés is maradhat az üzletekben.
Az épületek többféle hasznosításra alkalmasak, a falu központi részén találhatók, közel a buszmegállóhoz. Lakóházaknak is, de valamilyen termék gyártására alkalmas üzem is lehet.
A faluban munkaerő is van mindenhez.
Az épület tehermentes, és hamar birtokba vehető.
Hívjon, ha felkeltettem érdeklődését!
Egyeztessünk időpontot, és nézzük meg!
Regisztrációs szám: uz016946 Hitel.hu - Hasonlítsa össze a bankok lakáshitel ajánlatait

