Eladó vendéglátási ingatlan Szekszárd
| Kedvencbe | Megosztás | Árfigyelő |
| Kedvezményes lakáshitel ajánlatok | ||
| 135 000 000 HUF | ||
Ingatlan adatai
- Eladó vagy kiadó:Eladó
- Település:Szekszárd
- Kategória:Vendéglátás
- Alkategória:Egyéb
- Alapterület:253 m2
- Telekterület:1316 m2
- Csere is:Nem
- Hirdető:Cég
- Élő videón megtekinthető:Nem
- Építés éve:1995
- Hány szintes az ingatlan:nincs megadva
- Hányadik emeleti:nincs megadva
- Parkolási lehetőség:nincs megadva
- Bútorozottság:nincs megadva
- Fényviszony:nincs megadva
- Tájolás:nincs megadva
- Internet:nincs megadva
- Akadálymentesített:nincs megadva
- Energiatanúsítvány:nincs megadva
- Üzenetküldés
- Hívás


Hitel ajánlat
Ingatlan hirdetés leírása
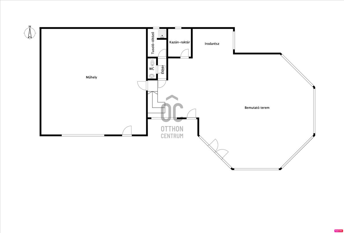
Frekventált helyen, korábban autó- és motor-szalonként működő ...
Frekventált helyen, korábban autó- és motor-szalonként működő üzlethelyiség várja új tulajdonosát.Az épület szigetelt, lindab szerkezetű csarnok.
Az épület fűtése gázkazánnal megoldott, a bemutató terem részen padló fűtéssel, a műhely részen radiátoros fűtéssel.
A nyári melegebb időszak klímával hűsíthető a bemutató teremnél.
A műhely 2 beállásos, egyik szerelőaknás, ipari árammal, 100 m2 alapterületű.
Menjünk, nézzük meg ezt a nem mindennapi ajánlatot!
Teljes körű pénzügyi megoldások ügyintézése díjmentesen.
Minden élethelyzetre végzünk pénzügyi elemzést - ha vásárolni szeretne, segítünk, hogy ezt a legjobb feltételek mellett tegye; ha eladni szeretné ingatlanát, nézzük meg, hátha érdemes meglévő hitelét átváltani.
Keressen bizalommal, szakértők vagyunk! Hitel.hu - Hasonlítsa össze a bankok lakáshitel ajánlatait

