Eladó telek - Balatonalmádi
- INGYENES HIRDETÉS FELADÁS
Ingatlan adatai
- Eladó vagy kiadó:Eladó
- Település:Balatonalmádi
- Kategória:Telek
- Alkategória:Zártkert
- Alapterület:nincs megadva
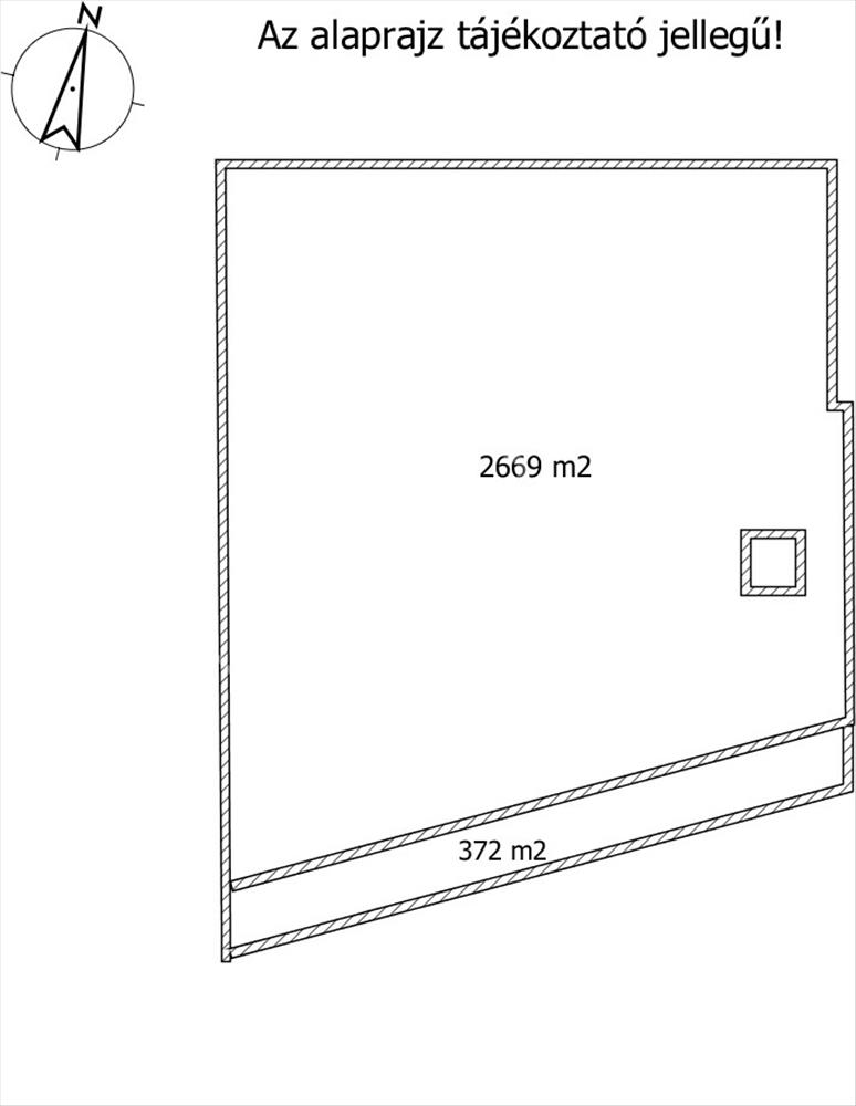
- Telekterület:3041 m2
- Csere is:Nem
- Hirdető:Cég
- Élő videón megtekinthető:Nem
- Villany:Van
- Víz:Van
- Gáz:nincs megadva
- Csatorna:Van
- Kapcsolatfelvétel

Pannon Ingatlan és Hit...
+36-(30)-244-5988
Mondd meg a hirdetőnek, hogy a megveszLAK-on találtad a hirdetést.
Hitel ajánlatok
Ingatlan hirdetés leírása
Eladó zártkert Balatonalmádi
Balatonalmádiban aszfaltos úton megközelíthető balatoni panorámás telek eladó!
Ritka lehetőség Balatonalmádi, Vörösberény városrész közvetlen belterülete mellett!
Jelenleg még 2 helyrajzi számon nyilvántartott terület vált eladóvá, amely összesen 3041 m2 nagyságú és megtalálható rajta a víz, villany és a CSATORNA!
Az ingatlan jelenleg gyümölcsös besorolású, körbekerített illetve van rajta egy bejegyzett gazdasági épület!
Kifüggesztés után azonnal birtokba vehető.
A kertes mezőgazdasági terület fontos tudnivalói a helyi építési szabályzat szerint:
- a minimum telek nagyság: 1500 m2
- a beépíthető telek legkisebb szélessége 16 m
- a beépítési mód: szabadonálló
- Beépíthetősége: 3%
- Terepszint alatti beépíthetősége: 5%
- Építménymagasság: 4 méter
- Az építmény legmagasabb pontja a rendezett tereptől mérve: 6 méter
Az övezetben legalább 80 %-ban szőlő, gyümölcsös vagy kertműveléssel hasznosított kertészetileg művelt telken szabad építeni.
További információkért forduljon hozzám bizalommal. :) Hitel.hu - Hasonlítsa össze a bankok lakáshitel ajánlatait
Tetszett ez az eladó Balatonalmádi telek? Hívd fel a hirdetőt most, és tudj meg mindent erről az eladó telekről! Ha gondolod nézelődj tovább az eladó telek Balatonalmádi oldal hirdetései között.
Az eladó telkek menüpontban további hirdetések között is böngészhetsz. Ha van kedved, akkor böngészhetsz a Pannon Ingatlan és Hiteliroda összes hirdetése között, vagy akár a/az Pannon Ingatlan és Hiteliroda összes hirdetése között is.

