Eladó telek Miskolc
| Kedvencbe | Megosztás | Árfigyelő |
| Kedvezményes lakáshitel ajánlatok | ||
| 3 500 000 HUF | ||
Ingatlan adatai
- Eladó vagy kiadó:Eladó
- Település:Miskolc
- Kategória:Telek
- Alkategória:Zártkert
- Alapterület:nincs megadva
- Telekterület:3297 m2
- Csere is:Nem
- Hirdető:Cég
- Élő videón megtekinthető:Nem
- Villany:nincs megadva
- Víz:nincs megadva
- Gáz:nincs megadva
- Csatorna:nincs megadva
- Üzenetküldés
- Hívás


Hitel ajánlat
Ingatlan hirdetés leírása
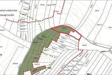
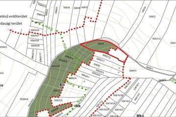
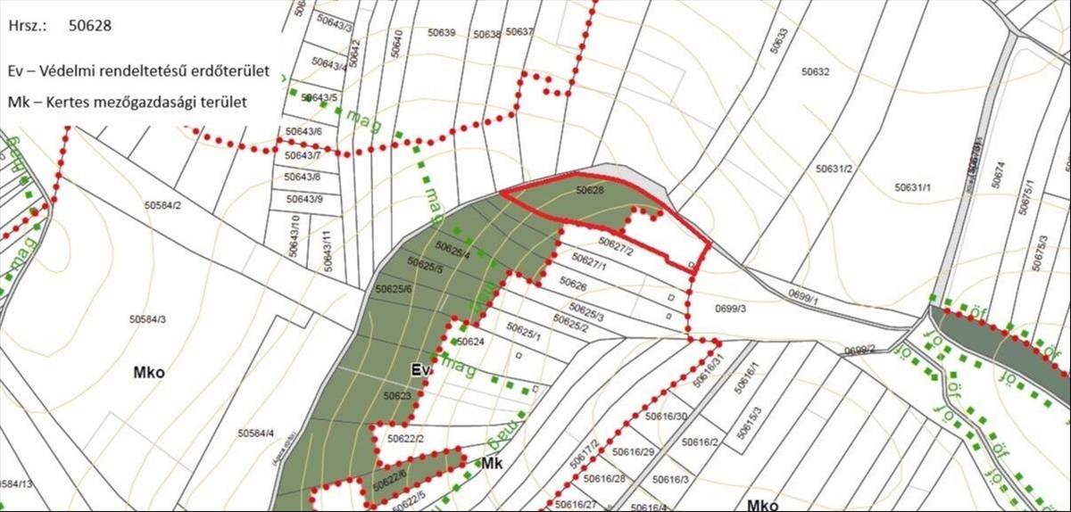
Eladó kertes mezőgazdasági zártkerti telek Miskolc Bábonyibérc...
Eladó kertes mezőgazdasági zártkerti telek Miskolc Bábonyibérci részén!Eladó egy kertes mezőgazdasági zártkerti telek Miskolc Bábonyibérci városrészében, ideális választás mindazok számára, akik szeretnének egy csendes, természetközeli helyen gazdálkodni, kertészkedni, vagy akár egy nyugodt pihenőhelyet kialakítani.
Jellemzők:
•Telek mérete: 3297 m²
•Kertes mezőgazdasági telek: Nagyobb kert, gyümölcsfák, szőlőtermesztésre vagy egyéb mezőgazdasági tevékenységre alkalmas terület
•Elhelyezkedés: Csendes, zöldövezeti környezet, ideális kertészeti vagy mezőgazdasági célra
•Közművek: a telek közművekkel nem rendelkezik, és a környéken sem elérhetők (víz, áram, gáz)
Vevőink részére ingyenes, banksemleges hiteltanácsadást és ügyintézést tudunk biztosítani.
Párhuzamosan a vásárlással eladná az ingatlanát, de nem tudja, hol kezdje?
Hívjon bizalommal! Hitel.hu - Hasonlítsa össze a bankok lakáshitel ajánlatait

