Eladó telek Veszprém
| Kedvencbe | Megosztás | Árfigyelő |
| Kedvezményes lakáshitel ajánlatok | ||
| | 9 900 000 HUF | |
Ingatlan adatai
- Eladó vagy kiadó:Eladó
- Település:Veszprém
- Kategória:Telek
- Alkategória:Zártkert
- Alapterület:nincs megadva
- Telekterület:1911 m2
- Csere is:Nem
- Hirdető:Cég
- Élő videón megtekinthető:Nem
- Villany:nincs megadva
- Víz:nincs megadva
- Gáz:nincs megadva
- Csatorna:nincs megadva
- Üzenetküldés
- Hívás

Hitel ajánlat
Ingatlan hirdetés leírása
Eladó zártkert Veszprém
Nagy üvegfal, terasz és erkély a déli panoráma felé!ELADÓ panorámás telek Csatár könnyen megközelíthető ZSÁKUTCÁJÁBAN!
A látványtervek a hész szerint készültek, tájékoztató jelleggel!
FIGYELEM!
Az ár irányár, tehát alkuképes!
A TELEK:
Övezeti besorolása: Mk-02
Beépítés módja: (sz), mint szabadon álló
Legnagyobb beépítettsége: 3% - 2x57 m2 (földszint+tetőtér)
Az épületmagasság megengedett legnagyobb mértéke: 3 m
Kialakítható legkisebb telek területe: 1. 500 m2
Kertes mezőgazdasági terület (Mk)
Mk-02 övezet területére vonatkozó előírások:
(1) Csatár-hegyen a beépíthető legkisebb földrészlet területe 720m2.
(2) 1500 m2-nél kisebb földrészleten legfeljebb 3%-os beépítéssel, egy darab legfeljebb 30 m2-es
gazdasági épület és egy darab, legfeljebb a gazdasági épület alapterületével megegyező méretű
pinceszinti helyiség helyezhető el.
(3) 1500 m2-nél nagyobb földrészleten legfeljebb 3%-os beépítéssel, egy darab legfeljebb 60 m2-es
gazdasági épület és egy darab, legfeljebb a gazdasági épület alapterületével megegyező méretű
pinceszinti helyiség helyezhető el.
(4) Az övezet földrészletein az épületeket szabadonállóan, minimum 5, 0 m-es előkerttel és min. 3, 0
M-es oldalkerttel kell elhelyezni.
(5) Az övezet földrészletein tilos a természetes talajszint 1, 5 m-nél nagyobb mértékú megváltoztatása.
A tervek SZERINT:
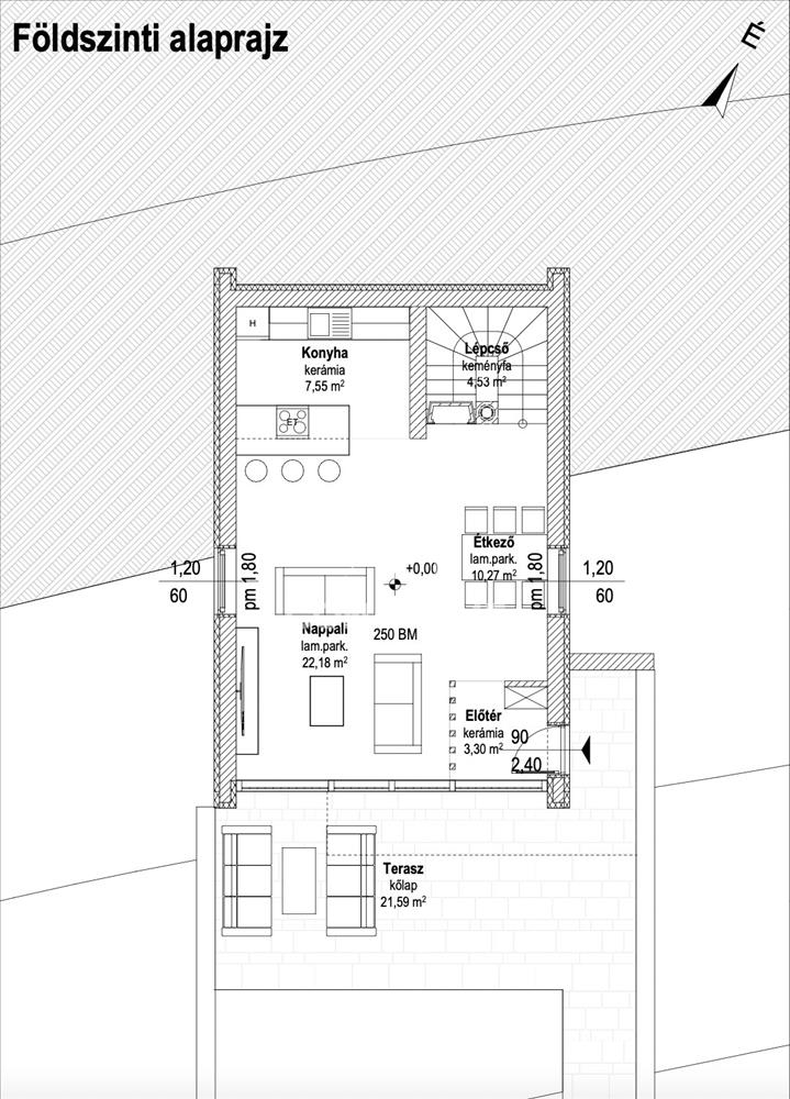
A főbejárat oldalról lenne - ahol a kinyúló erkély fedést is ad a bejáratnak -, így nem bontja meg a nagy üvegfelületet.
Az ajtón belépve egy kis előszoba és cipős szekrény kapna kialakítást. a nappalit csak egy fa oszlopsor választja el, hogy az üvegfelület felől minél kisebb legyen az árnyékolás.
A konhya hátul kapna kialakítást. Elég mélyen van és a föld alatt, de a nagy üvegfelületeken keresztül bőven jut be természetes fény. Két oldalra került be két kis ablak is, hogy minél több fény jusson be és lehessen szellőztetni keresztbe is.
A kandalló a lépcső alá kerül beépítésre, a kémény pedig a lépcső orsóterében van. a kémény mögött lehet egy légcsatorna az orsótérben, amiben a meleg levegő fel tud menni a felső szintre is, így adott esetben mind a 2 szint fűtött lenne!
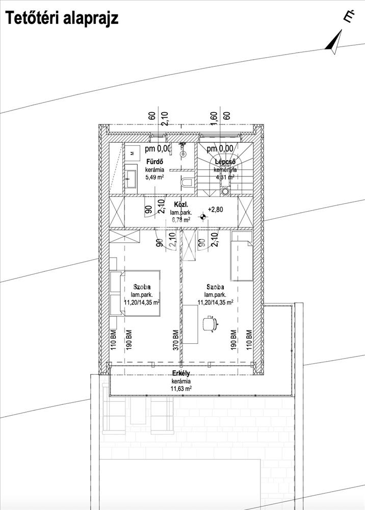
Fent 2 szoba kapott kialakítást, mind a kettő erkély kapcsolattal. a közlekedő két végén, két beépített szekrény lenne elhelyezve.
A fürdőszobában épített zuhanyzó + tágas mosdó + wc és mosógép kerülne beépítésre, a természetes fény pedig földig érő ablakon jönne be!
A tetőtérben nyitott fedélszéket terveztek. Nem lenne lezárva padlásfödémmel, hanem felmenne a belmagasság a taréjszelemenig. a nagy üvegfelület igazából csak így nézne ki jól, így a gerinc közelében a tetőtéri belmagasság 3, 70 m lenne. Szép tágas és fényes!
Amennyiben az ingatlan megvásárlásához el kell adnia jelenlegi otthonát, úgy annak és a teljes folyamatnak a lebonyolításában is állok rendelkezésre!
További információkért forduljon hozzám bizalommal, hívjon a megadott telefonszámon - akár hétvégén is!
TOVÁBBI SZOLGÁLTATÁSAINK:
- Megbízható ügyvédi háttér
- ingyenes, független hitelügyintézés
- ingyenes, független biztosítási tanácsadás
- Energetikai tanúsítvány és ingatlan értékbecslés készítése
- Közművek és szolgáltatók átírása
- Birtokbaadás lebonyolítása
- Felújítások/Teljes kivitelezés
- Riasztó rendszerek kiépítése
- Kert- és tereprendezés
- Ingatlan takarítás
- Költöztetés
10 éves szakmai TAPASZTALATTAL!
#Gonahome #tegyelprobara #keressbizalommal #mindenamiingatlan Hitel.hu - Hasonlítsa össze a bankok lakáshitel ajánlatait

