Kiadó felújítandó ház Budapest III. kerület
| Kedvencbe | Megosztás | Árfigyelő |
| Kedvezményes lakáshitel ajánlatok | ||
| 550 000 HUF/Hó | ||
Ingatlan adatai
- Eladó vagy kiadó:Kiadó
- Település:Budapest III. kerület
- Kategória:Ház
- Alkategória:Családi ház
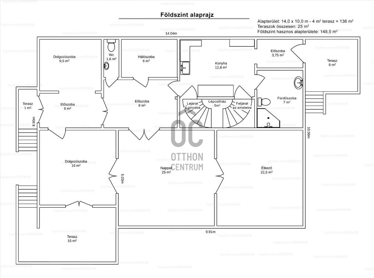
- Alapterület:215 m2
- Telekterület:1047 m2
- Csere is:Nem
- Hirdető:Cég
- Élő videón megtekinthető:Nem
- Építés éve:1970
- Szobaszám:8
- Állapot:Felújítandó
- Hány szintes az ingatlan:nincs megadva
- Tetőtér:nincs megadva
- Komfortosság:nincs megadva
- Parkolási lehetőség:nincs megadva
- Fűtés:Gáz (cirko)
- Bútorozottság:nincs megadva
- Fényviszony:nincs megadva
- Tájolás:DK
- Kilátás:nincs megadva
- Internet:nincs megadva
- Akadálymentesített:nincs megadva
- Energiatanúsítvány:nincs megadva
- Villany:Van
- Víz:Van
- Gáz:Van
- Csatorna:Van
- Üzenetküldés
- Hívás


Hitel ajánlat
Ingatlan hirdetés leírása
Kiadó ház Testvérhegy – kerttel, fedett tárolóval és garázzsal...
Kiadó ház Testvérhegy – kerttel, fedett tárolóval és garázzsalBudapest III. kerületében, Testvérhegy kiváló elhelyezkedésű részén kínálunk bérbeadásra egy önálló családi házat, amely ideális választás hosszú távra cégeknek dolgozói elszállásolásra, vagy nagyobb családok számára kényelmes otthonként.
A házhoz saját kert, fedett kerti tároló és garázs is tartozik, így a mindennapi használat kényelmes és jól szervezhető.
A környék infrastruktúrája és közlekedése kiemelkedő: a közelben üzletek, szolgáltatások, éttermek, valamint buszmegálló található, így könnyen elérhető a város bármely pontja.
A stabil környezet és a jó megközelíthetőség miatt a ház hosszú távú, megbízható bérleti lehetőséget kínál.
KKV Hitelezéssel akár bérlemény felújítására is tudunk segítséget nyújtani, így akár apartmanház is kialakítható egy hosszútávú rugalmas bérleti konstrukció mellett. Ha bármi kérdése van kérem jelezzen, hogy mihamarabb tudjunk segíteni. Hitel.hu - Hasonlítsa össze a bankok lakáshitel ajánlatait
Tetszett ez a kiadó Budapest III. kerületi felújítandó 8 szobás családi ház? Hívd fel a hirdetőt most, és tudj meg mindent erről a kiadó családi házról! Ha gondolod nézelődj tovább a kiadó albérlet Budapest III. kerület oldal hirdetései között.
A kiadó ház menüpontban további hirdetések között is böngészhetsz. Ha van kedved, akkor böngészhetsz a Pongrácz László összes hirdetése között, vagy akár a/az Otthon Centrum XIV. kerület - Bosnyák utca összes hirdetése között is.

