Kiadó átlagos állapotú ház - Gyöngyöshalász
- INGYENES HIRDETÉS FELADÁS
Ingatlan adatai
- Feladva:4 hónapja a megveszLAK-on
- Eladó vagy kiadó:Kiadó
- Település:Gyöngyöshalász
- Kategória:Ház
- Alkategória:Családi ház
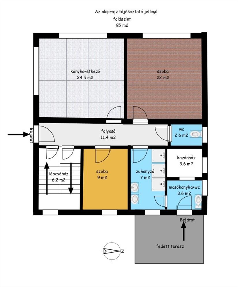
- Alapterület:180 m2
- Telekterület:1204 m2
- Csere is:Nem
- Hirdető:Cég
- Élő videón megtekinthető:Nem
- Építés éve:1970
- Szobaszám:6
- Állapot:Átlagos állapotú
- Hány szintes az ingatlan:nincs megadva
- Tetőtér:nincs megadva
- Komfortosság:nincs megadva
- Pince:nincs megadva
- Parkolási lehetőség:nincs megadva
- Fűtés:Gáz (cirko)
- Bútorozottság:nincs megadva
- Fényviszony:nincs megadva
- Tájolás:nincs megadva
- Kilátás:nincs megadva
- Internet:nincs megadva
- Klíma:nincs megadva
- Akadálymentesített:nincs megadva
- Energiatanúsítvány:nincs megadva
- Villany:nincs megadva
- Víz:nincs megadva
- Gáz:nincs megadva
- Csatorna:nincs megadva
- Kapcsolatfelvétel

Bóta Gábor
+36-(70)-678-7292
Mondd meg a hirdetőnek, hogy a megveszLAK-on találtad a hirdetést.
Hitel ajánlatok
Ingatlan hirdetés leírása
Munkaerő közvetítök figyelmébe
Gyöngyös központjától 4 km-re, Gyöngyöshalász főutcáján kiadó egy 16 főre kialakított munkásszálló, amely igény szerint bővíthető.
Gyöngyös központjától 4 km-re, Gyöngyöshalász főutcáján kiadó egy 16 főre kialakított munkásszálló, amely igény szerint bővíthető.
A 180 m²-es, kétszintes családi ház munkásszállónak lett átalakítva. a szálláshely Gyöngyöshalász település központi részén, csendes, nyugodt, barátságos környezetben helyezkedik el, ami nagyban megkönnyíti mind a munkavállalók, mind a munkáltatók életét. Akár helyi, akár céges buszjárattal percek alatt eljuthatnak a munkavállalók a munkahelyükre (Braun, Apolló gumigyár, p&g, Jászárokszállás Rósenberger Kft. Stb. ) És onnan vissza a pihentető otthonukba.
Az ingatlan 200 méteres körzetében található a helyközi és céges buszmegálló, valamint egy dohánybolt, ami komfortossá teszi a munkavállalók hétköznapi életét. Továbbá 300 méteres körzetben található hamburgeres, gyrosos és pizzéria is. a gyöngyösi Tesco, Lidl, kfc és McDonalds pár percen belül elérhető. a parkolási lehetőséget privát parkoló biztosítja az épület udvarán.
Miért válasszon minket?
Az igényeknek megfelelően alakítjuk az ingatlan felszereltségét.
Modern kialakítású, felújított ingatlanba költözhetnek munkatársai.
Kiváló lokáció.
A villamosenergia költsége "0", a telepített napelemeknek köszönhetően.
Rugalmas tulajdonosok.
Az ingatlant modern fűtési rendszerrel szerelték fel.
Az ingatlanban 6 szoba, 2 fürdőszoba, 3 zuhanyzó, 4 wc, 1 hatalmas konyha+étkező és egyéb helyiségek találhatók.
Az ingatlan havi bérleti díja 16 főre 900. 000 Ft/hó + rezsiköltség.
Munkásszállás Gyöngyös környéke, # kiadó szálláshely Gyöngyös, # munkásszálló (hivatkozási szám: m117179) Hitel.hu - Hasonlítsa össze a bankok lakáshitel ajánlatait
Tetszett ez a kiadó Gyöngyöshalászi átlagos állapotú 6 szobás családi ház? Hívd fel a hirdetőt most, és tudj meg mindent erről a kiadó családi házról! Ha gondolod nézelődj tovább a kiadó albérlet Gyöngyöshalász oldal hirdetései között.
A kiadó házak menüpontban további hirdetések között is böngészhetsz. Ha van kedved, akkor böngészhetsz a Bóta Gábor összes hirdetése között.

