- >>
- albérletek
- >>
- kiadó ház
- >>
- kiadó ház Fadd
- >>
Kiadó ház - Fadd
| | |||
| Kedvencnek jelölöm | Elküldöm emailben | Megosztás | Szavazás |
| Kedvezményes lakáshitel ajánlatok | |||
| 3 915 000 HUF/Hó | |||
Ingatlan adatai
- Eladó vagy kiadó:Kiadó
- Település:Fadd
- Kategória:Ház
- Alkategória:Egyéb
- Alapterület:400 m2
- Telekterület:nincs megadva
- Csere is:Nem
- Hirdető:Cég
- Élő videón megtekinthető:Nem
- Szobaszám:11
- Állapot:nincs megadva
- Hány szintes az ingatlan:nincs megadva
- Tetőtér:nincs megadva
- Komfortosság:nincs megadva
- Parkolási lehetőség:nincs megadva
- Fűtés:nincs megadva
- Bútorozottság:nincs megadva
- Fényviszony:nincs megadva
- Tájolás:nincs megadva
- Kilátás:nincs megadva
- Internet:nincs megadva
- Akadálymentesített:nincs megadva
- Energiatanúsítvány:nincs megadva
- Villany:nincs megadva
- Víz:nincs megadva
- Gáz:nincs megadva
- Csatorna:nincs megadva
- Üzenetküldés
- Hívás


Ingatlan hirdetés leírása
A szálláshely Dombori üdülőövezet központi helyén található, P...
A szálláshely Dombori üdülőövezet központi helyén található, Pakstól alig 25 km-es távolságban. a 2 szintes épület közművekkel, ***-os panzió minősítéssel, működési engedéllyel rendelkezik.Férőhelyek száma: 29 fő
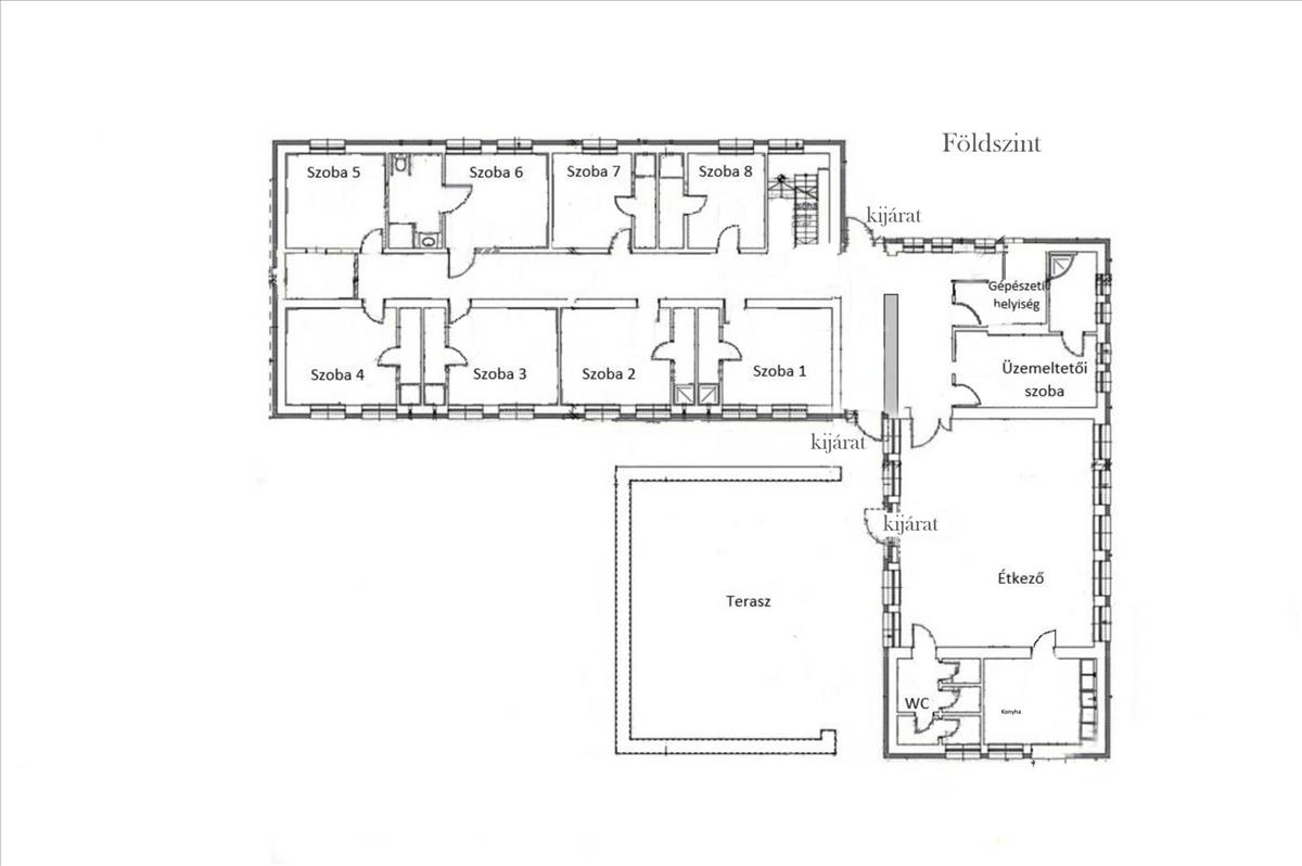
Szobák
Földszint:
1. 3 Ágyas szoba
2. 3 Ágyas szoba
3. 3 Ágyas szoba
4. 3 Ágyas szoba
5. 2 Ágyas szoba
6. 2 Ágyas szoba
7. 2 Ágyas szoba
8. 2 Ágyas szoba
Emelet:
9. 2 Ágyas szoba
10. 3 Ágyas apartman konyhával, terasszal
11. 4 Ágyas apartman konyhával, terasszal (2 külön hálószobával, nappalival)
Épület paraméterei:
• 9 szoba saját fürdőszobával
• 2 apartman saját fürdőszobával, konyhával
• étkező
• konyha (edényekkel és étkészlettel felszerelt, 2 db hűtő fagyasztóval, 2 db mikro, 1 db kávéfőző, 1 db vízforraló, 1 db kenyérpirító, 1 db gáztűzhely)
• 1 közös mosdó (2 WC-vel) mosókonyhával (mosógép, szárítógép)
• nyílászárók 3 rétegű üveggel, redőnnyel, szúnyoghálóval
• saját zárt parkoló max. 10 Autó részére
• elektromos kapunyitás
• riasztórendszer
• kamerarendszer
• füstjelző rendszer
• légkondicionált minden helyiség, központi vrf rendszer
• központi fűtés (radiátor és padlófűtés)
• kábeltévé, internet
• parkosított udvar
• az épület belső és külső részein mozgásérzékelő lámpák és hangulatvilágítás
• szemétszállítás heti 1 alkalommal
• takarítás és ágyneműcsere heti 1 alkalommal
• igény esetén hétfőtől péntekig menü házhozszállítás igényelhető min. 10 Adagtól. Ennek költsége nincs benne a bérletidíjban. ( Domboriban júniustól augusztusig nyitva tartó egységek: élelmiszerbolt, pizzéria, büfék. Itt lehetőség van kisebb bevásárlásra, friss ételek fogyasztására a nyári szezonban. )
A szálláshely bérleti díja: 4. 500, - Ft/fő/éj +27%áfa+ rezsi.
Az szálláshely bérlésének feltételei: a bérlő az ingatlant 1 éves szerződéssel, 1 havi bérleti díj és 2 havi kaució szerződéskötéskor törénő megfizetésével veheti bérbe. Bérleti szerződés minimum 20 fő bentlakása, vagy ennek megfelelő összegű bérelti díj megfizetése eseten köthető.
Előzetes telefonos egyeztetés után bármikor megtekinthető, hívjon bizalommal!
Adatbázisunkban további ingatlanokból! Hitelre van szüksége? Teljes körű, bankfüggetlen, díjmentes hitelügyintézéssel állunk rendelkezésére. Ügyfeleinknek megbízható ügyvédi háttér, energetikai tanúsítvány készítése, ingyenes kiemelt ingatlan keresési szolgáltatás áll a rendelkezésre.
Ezúton tájékoztatjuk, hogy Ön mint érdeklődő, a hirdetésben megjelölt telefonszám felhívásával hozzájárul személyes adatai – így különösen neve és telefonszáma -, a hirdetést feladó Boroni Design Kft. Általi - biztonságos és körültekintő - kezeléséhez, nyilvántartásához. Az Immo1 weboldalának Adatvédelmi aloldalán találja a teljes körű tájékoztatást. Hitel.hu - Hasonlítsa össze a bankok lakáshitel ajánlatait


